Back to results 5LDK Investment House for Sale in Amagasaki, Hyogo

Verified Listing

This property was checked recently and confirmed to still be available. Tap for details.

Verified Listing

This property has been verified in the last month. Our system regularly checks listings to ensure they are still available.

Last verified: April 10, 2026

5LDK Investment House for Sale in Amagasaki, Hyogo

Know someone who would love this? Gift them a subscription

¥62,000,000

1 Chome-20-10 Shimozakabe, Amagasaki, Hyogo Prefecture

兵庫県尼崎市下坂部1丁目20-10

Sign in to save properties

Work with our partners to help you search, evaluate, and purchase property in Japan.

Book a Consultation
Buy Move-in Ready Near Station House Parking Suburban Universal Studios Stadium Aquarium Reinforced Concrete

Unlock the full description with a free trial

Includes AI translation, hazard data, cost estimates & nearby amenities

3 days free · cancel anytime

Start Free Trial

Owner-Change Investment Property in Amagasaki City

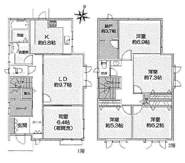
This property is a two-story, steel-reinforced concrete (SRC) detached house built in July 1999, offering a total floor area of 131.54 square meters on a generous 269.99 square meter plot. The layout is a spacious 5LDK, providing ample room for a large family or investment purposes. The property is currently tenanted, generating a monthly rental income of 462,000 yen, making it an attractive owner-change investment opportunity.

The house features a south-facing orientation and is equipped with a comprehensive range of modern amenities. Key equipment includes a system kitchen with a counter, an IH cooktop, a bath with a reheating function and a bathroom dryer, a washbasin with a shower attachment, a bidet toilet seat, a walk-in closet, storage in all rooms, a TV monitor-equipped doorphone, and underfloor heating. The property is fully electrified (all-electric) and incorporates barrier-free design elements. It also comes with a parking space.

Located approximately a 13-minute walk from JR Amagasaki Station on the Tokaido Main Line, the property offers convenient train access. The surrounding area is well-serviced, with Amagasaki Municipal Shimozakabe Elementary School within a 280-meter (4-minute walk) radius. Other nearby amenities include a convenience store (590m), supermarket (560m), general hospital (600m), park (380m), drugstore (640m), and bank (520m). The property was constructed by Sekisui House, a major Japanese homebuilder.

An additional service offered by the listing agent, RENOWISE, includes property viewings accompanied by a qualified architect who can provide professional advice on the spot. They also offer a home inspection (building condition survey) service to ensure a smooth and secure purchase process for this second-hand home.

This description was AI-generated from the original Japanese listing and may contain inaccuracies. Please verify details with the source listing.

Summary

Bedrooms: 5
Parking: 1
Year built: 1999
Land size: 270 / 2,906sqft
House size: 132 / 1,416sqft

Short-Term Rental (Minpaku)

Transport

ITM

Osaka International Airport — 5 km away

Nearby Konbini

Seven Eleven Seven Eleven — 4 min walk

Internet Connectivity

Natural Hazard Assessment

Flood Risk Low Risk
Landslide Risk Moderate
Tsunami Risk Low Risk
Earthquake Hazard Moderate

Unlock hazard data with a free trial

Flood, landslide, tsunami & earthquake risk for this property

3 days free · cancel anytime

Start Free Trial

Purchase Cost & Tax Estimates

Agent fees, acquisition tax, registration costs & annual property tax

Airbnb Revenue Estimate

Projected nightly rate, occupancy & net income for this property

Investment ROI

Annual yield, break-even timeline & 10-year return projection

Map & Street View

Map loading...

Location Accuracy Notice: Although we try to make the map accurate with coordinates or address details provided, the location data is provided by the agent. This map data should be used as reference for the surrounding area foremost.

Location Type Beds Price Land House View

* Sold properties shown for price comparison only. Prices reflect historical sale data.

Location Type Beds Rent/Month Land House View

* Rental prices shown are monthly rates. Contact property owner for current availability.