Back to results Sieria Tower Namba 3LDK Apartment for Sale in Osaka Chuo Ward
Added 5 days ago

Know someone who would love this? Gift them a subscription

¥268,000,000

3-chome Takatsu, Chuo Ward, Osaka City, Osaka Prefecture

大阪府大阪市中央区高津3丁目

Sign in to save properties

Work with our partners to help you search, evaluate, and purchase property in Japan.

Book a Consultation
Buy Move-in Ready Near Station Apartment Modern House Terrace Quiet Area Universal Studios Stadium Aquarium Reinforced Concrete

Unlock the full description with a free trial

Includes AI translation, hazard data, cost estimates & nearby amenities

3 days free · cancel anytime

Start Free Trial

Modern High-Rise Living in Osaka's Central Ward

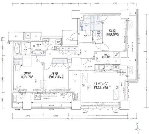
This property is a spacious 3LDK apartment located on the 30th floor of the 30-story Sieria Tower Namba, offering a commanding position in Osaka's vibrant Chuo Ward. The unit features a generous private area of 121.79 square meters, complemented by a 14.15 square meter south-facing balcony that provides excellent natural light and views. The building is a reinforced concrete structure completed in December 2020, housing a total of 220 units.

The apartment is well-equipped with modern amenities. Facilities include: Water Supply: Public; Drainage Type: Sewer; Two or more bathrooms; Shampoo dresser; Shower toilet; Kitchen: System kitchen; Intercom: Available; Building Manager: Daytime; Elevator; Corner room; Parcel delivery box; Bathroom ventilation dryer; All-electric; Shoe closet; Balcony; Countertop; Disposer; Dishwasher/dryer; Water purifier; South-facing balcony; Storage in all rooms.

Accessibility is a key feature, with three train lines within walking distance: Nippombashi Station on the Sennichimae Line is an 8-minute walk, Tanimachi Kyuchome Station is 9 minutes away, and Namba Station on the Nankai Main Line is a 10-minute walk. The immediate neighborhood offers daily conveniences, with supermarkets like C&C End Yuhigaoka-ten (320m) and Super Tamade Nippombashi-ten (480m) nearby, along with convenience stores such as 7-Eleven and FamilyMart. The property is also close to Ikutama Park (475m) and local schools.

The property is currently occupied, so prior inquiry is required for viewings. The Century 21 Proudest Residence Group specializes in home searches within Chuo Ward.

This description was AI-generated from the original Japanese listing and may contain inaccuracies. Please verify details with the source listing.

Summary

Bedrooms: 3
Year built: 2020
House size: 122 / 1,311sqft
Balcony size: 14 / 151sqft

Short-Term Rental (Minpaku)

Transport

ITM

Osaka International Airport — 15 km away

Nearest Konbini

seven_eleven Seven Eleven — 2 min walk

Internet Connectivity

Natural Hazard Assessment

Flood Risk Low Risk
Landslide Risk Moderate
Tsunami Risk Low Risk
Earthquake Hazard Moderate

Unlock hazard data with a free trial

Flood, landslide, tsunami & earthquake risk for this property

3 days free · cancel anytime

Start Free Trial

Purchase Cost & Tax Estimates

Agent fees, acquisition tax, registration costs & annual property tax

Airbnb Revenue Estimate

Projected nightly rate, occupancy & net income for this property

Investment ROI

Annual yield, break-even timeline & 10-year return projection

Map & Street View

Map loading...

Location Accuracy Notice: Although we try to make the map accurate with coordinates or address details provided, the location data is provided by the agent. This map data should be used as reference for the surrounding area foremost.

Location Type Beds Price Land House View

* Sold properties shown for price comparison only. Prices reflect historical sale data.

Location Type Beds Rent/Month Land House View

* Rental prices shown are monthly rates. Contact property owner for current availability.