Back to results 5LDK Detached House in Chuo Ward, Fukuoka City
Added 4 days ago
¥69,990,000

1-chome Kosa, Chuo Ward, Fukuoka City, Fukuoka Prefecture

福岡県福岡市中央区小笹1丁目

Buy Garden House Large Garden Terrace Renovated Quiet Area Stadium

Know someone who would love this? Gift them a subscription

This property has more to show

Earthquake & flood hazard assessment
Purchase cost & tax estimates
Full AI-translated description

Trusted by property buyers worldwide

Start 3-Day Free Trial

$5/month after trial · Cancel anytime

Spacious Detached House in a Quiet, Elevated Neighborhood of Chuo Ward, Fukuoka

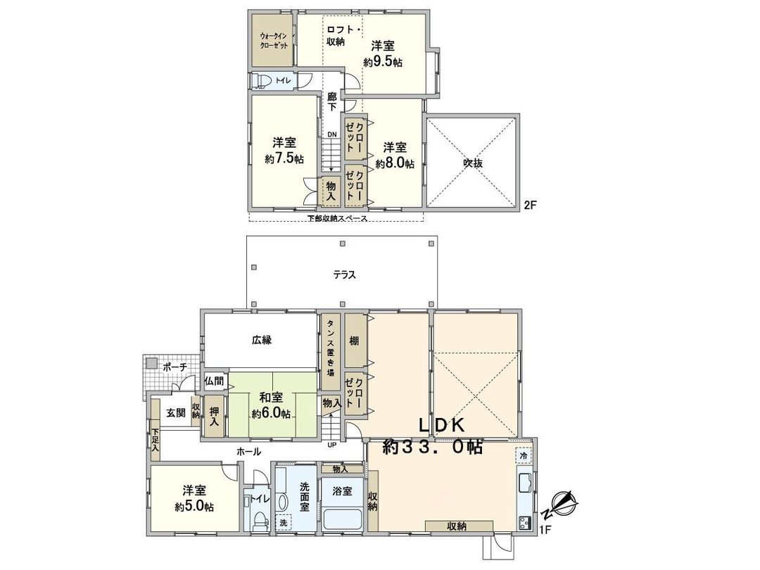
This detached house is located in a quiet, elevated neighborhood within Fukuoka's Chuo Ward. The property underwent a major extension and renovation in 2006, which involved rebuilding the second and third floors, leaving only the original foundation. The total floor area is approximately 198.41 square meters (about 60.01 tsubo), offering a spacious living environment.

The living, dining, and kitchen area is a combined space of approximately 33 tatami mats, featuring a distinctive double-height ceiling with a skylight that fills the room with abundant natural light. The property includes ample storage space, including loft storage and a walk-in closet. For leisure, there is a spacious terrace perfect for relaxing on weekends. The land area is approximately 255.17 square meters (about 77.18 tsubo), providing a generous plot.

Parking is available for two cars, with one indoor flat parking space and one outdoor flat parking space. The property is conveniently located within a 10-minute walk of a supermarket and an elementary school. Access is available via two train lines: the Subway Nanakuma Line's Sakurazaka Station (a 5-minute bus ride plus a 7-minute walk from the Kosa bus stop, or a 28-minute walk directly) and the Nishitetsu Tenjin Omuta Line's Nishitetsu Hirao Station (a 10-minute bus ride plus a 7-minute walk from the Kosa bus stop).

This description was AI-generated from the original Japanese listing and may contain inaccuracies. Please verify details with the source listing.

Summary

Bedrooms: 5
Parking: 2
Year built: 1976
Land size: 255 / 2,747sqft
House size: 198 / 2,136sqft

Short-Term Rental (Minpaku)

Transport

FUK

Fukuoka Airport — 6 km away

Nearest Konbini

family_mart Family Mart — 4 min walk

Internet Connectivity

Natural Hazard Assessment

Hazard data is a subscriber feature

Know the flood, landslide & tsunami risks before you buy

View Plans
¥69,990,000
Purchase Cost & Tax Estimates
Subscribe
Agent fee (3% + tax)¥000,000
Acquisition tax¥000,000
Registration & stamp¥000,000
Property tax (annual)¥00,000/yr
Subscribe to view cost & tax estimates →
Nightly Rate
Occupancy Rate
Max operating days/year
Est. booked nights/year
Gross annual revenue
Expenses breakdown
Cleaning
Platform fees (3%)
Management (20%)
Supplies
Insurance
Utilities
Total expenses
Net annual income
Monthly equivalent

Actual revenue varies by location, property quality, season, and management. Adjust sliders to model different scenarios.

Renovation Budget
Annual Rental Income

Auto-filled from Airbnb estimate

Purchase price
Renovation
Transaction costs
Total investment
Property tax
Insurance
Maintenance
Annual yield
Break-even
5-year return
10-year return
0 yr5101520+

Estimates only. Actual returns depend on rental demand, management quality, renovation scope, and market conditions. Adjust sliders to model scenarios.

1-chome Kosa, Chuo Ward, Fukuoka City, Fukuoka Prefecture

福岡県福岡市中央区小笹1丁目

Get Started

Sign in to save properties

Map & Street View

Map loading...

Location Accuracy Notice: Although we try to make the map accurate with coordinates or address details provided, the location data is provided by the agent. This map data should be used as reference for the surrounding area foremost.

Location Type Beds Price Land House View

* Sold properties shown for price comparison only. Prices reflect historical sale data.

Location Type Beds Rent/Month Land House View

* Rental prices shown are monthly rates. Contact property owner for current availability.