Back to results 4LDK House for Sale in Chigasaki, Kanagawa | 85.29㎡

Needs Verification

This listing hasn't been verified recently. Tap to request a priority check!

Know someone who would love this? Gift them a subscription

¥22,800,000

Enzo 2-chome, Chigasaki City, Kanagawa Prefecture

神奈川県茅ヶ崎市円蔵2丁目

Sign in to save properties

Work with our partners to help you search, evaluate, and purchase property in Japan.

Book a Consultation
Buy Seaside Property Move-in Ready Near Station House Gas Heating/Cooking Beach Access

Unlock the full description with a free trial

Includes AI translation, hazard data, cost estimates & nearby amenities

3 days free · cancel anytime

Start Free Trial

Spacious 4LDK Family Home in Chigasaki, Kanagawa

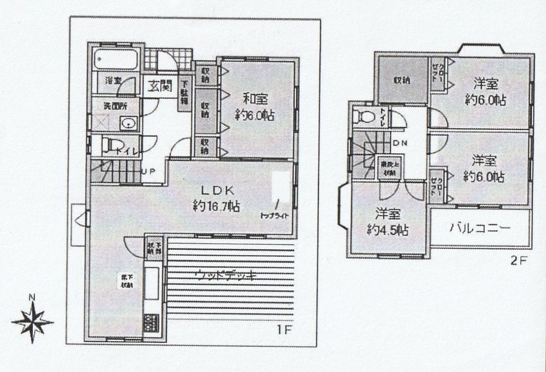
This well-maintained single-family house, built in September 2000, offers a comfortable and practical living space in the popular coastal city of Chigasaki. The property features a generous total floor area of 85.29㎡ (approximately 25.8 tsubo) arranged over two stories in a 4LDK layout. The interior includes a mix of Japanese and Western-style rooms: one 6.0-tatami mat Japanese room, three Western-style rooms (6.0, 6.0, and 4.5 tatami mats respectively), and a spacious 16.7-tatami mat combined Living-Dining-Kitchen area. The main living spaces benefit from a southern exposure, ensuring ample natural light.

Key equipment and features include city gas, a complete water supply and sewage system, and a balcony with a wooden deck. While the property does not include a private parking space, parking is available in the vicinity. The land, with a registered area of 102.77㎡ (approx. 31.08 tsubo), is flat and situated in a Category I Medium-to-High-Rise Residential Zone within a city planning area. The building is a wooden structure with a floor-area ratio of 60% and a volume ratio of 180%. The property is offered for sale under a general intermediary transaction.

Located in the Enzo 2-chome district of Chigasaki, the home is within walking distance of local amenities and schools. It is approximately a 12-minute walk from Kita-Chigasaki Station on the Sagami Line and about a 29-minute walk from the major JR Chigasaki Station on the Tokaido Main Line. The area is known for its relaxed, surf-friendly atmosphere and beautiful coastline. A notable nearby landmark is the scenic Chigasaki Beach, a famous spot for surfing, sunsets, and leisurely walks, deeply associated with the musician Yuzo Kayama and his song "Kimi to Itsumademo" (Forever with You).

This description was AI-generated from the original Japanese listing and may contain inaccuracies. Please verify details with the source listing.

Summary

Bedrooms: 4
Year built: 2000
Land size: 103 / 1,106sqft
House size: 85 / 918sqft

Short-Term Rental (Minpaku)

Transport

HND

Haneda Airport — 41 km away

Nearest Konbini

seven_eleven Seven Eleven — 3 min walk

Internet Connectivity

Natural Hazard Assessment

Flood Risk Low Risk
Landslide Risk Moderate
Tsunami Risk Low Risk
Earthquake Hazard Moderate

Unlock hazard data with a free trial

Flood, landslide, tsunami & earthquake risk for this property

3 days free · cancel anytime

Start Free Trial

Purchase Cost & Tax Estimates

Agent fees, acquisition tax, registration costs & annual property tax

Airbnb Revenue Estimate

Projected nightly rate, occupancy & net income for this property

Investment ROI

Annual yield, break-even timeline & 10-year return projection

Map & Street View

Map loading...

Location Accuracy Notice: Although we try to make the map accurate with coordinates or address details provided, the location data is provided by the agent. This map data should be used as reference for the surrounding area foremost.

Location Type Beds Price Land House View

* Sold properties shown for price comparison only. Prices reflect historical sale data.

Location Type Beds Rent/Month Land House View

* Rental prices shown are monthly rates. Contact property owner for current availability.