Back to results 19,639 sqm Land for Sale in Hirafu, Kutchan with Mt. Yotei Views
New Today
¥340,000,000

Hirafu, Kutchan, Abuta District, Hokkaido, Japan

北海道虻田郡倶知安町字比羅夫

Buy Mountain Property Near Station Land Ski Resort Area Panoramic View Rural

Know someone who would love this? Gift them a subscription

This property has more to show

Earthquake & flood hazard assessment
Purchase cost & tax estimates
Full AI-translated description

Trusted by property buyers worldwide

Start 3-Day Free Trial

$5/month after trial · Cancel anytime

Expansive Land Parcel with Mt. Yotei Views in Hirafu, Kutchan

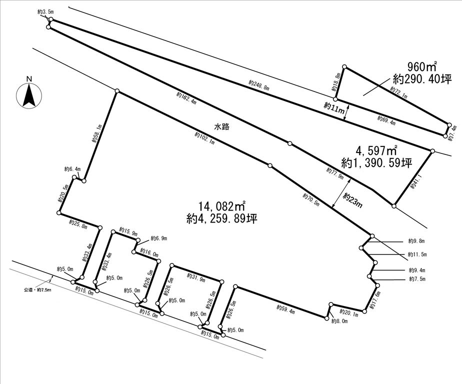
This substantial land offering in the sought-after Hirafu area of Kutchan, Hokkaido, presents a rare opportunity. The property comprises a total registered land area of 19,639 square meters (approximately 5,940 tsubo), offering significant space for development. A key feature is the panoramic view of Mt. Yotei (Mt. Shiribeshi) visible to the west from the front road adjacent to the site.

The property is conveniently located approximately 1.3km from Hirafu Station on the JR Hakodate Main Line, roughly a 3-minute drive, providing good access to public transport. The land is designated as forest land (山林) and fronts a public road approximately 7.5 meters wide on its southwest side.

Critical agent notes provide essential details: The total site area includes two separate, non-contiguous parcels (飛び地). Parcel ① measures 4,597 sqm and is located about 23 meters from the main lot. Parcel ② measures 960 sqm and is located about 11 meters away. Importantly, the sale of this land is based on the registered (公簿) area. There will be no price adjustment or settlement based on any increase or decrease found during an actual land survey.

Utilities are available, with electricity provided by Hokkaido Electric Power Co., water by public water supply, and drainage via an individual septic tank system. LP gas is available on an individual basis. The land is vacant and ready for handover. The property falls outside a city planning area but is within a quasi-city planning zone with specific use restrictions. Building regulations include a floor area ratio of 50%, a building coverage ratio of 30%, and a height restriction of under 15 meters.

This description was AI-generated from the original Japanese listing and may contain inaccuracies. Please verify details with the source listing.

Summary

Land size: 19,639 / 211,394sqft

Short-Term Rental (Minpaku)

Transport

CTS

New Chitose Airport — 78 km away

Nearby Konbini

Seicomart Seicomart — 32 min walk
Lawson Lawson — 36 min walk

Internet Connectivity

Natural Hazard Assessment

Hazard data is a subscriber feature

Know the flood, landslide & tsunami risks before you buy

View Plans
¥340,000,000
Purchase Cost & Tax Estimates
Subscribe
Agent fee (3% + tax)¥000,000
Acquisition tax¥000,000
Registration & stamp¥000,000
Property tax (annual)¥00,000/yr
Subscribe to view cost & tax estimates →
Nightly Rate
Occupancy Rate
Max operating days/year
Est. booked nights/year
Gross annual revenue
Expenses breakdown
Cleaning
Platform fees (3%)
Management (20%)
Supplies
Insurance
Utilities
Total expenses
Net annual income
Monthly equivalent

Actual revenue varies by location, property quality, season, and management. Adjust sliders to model different scenarios.

Renovation Budget
Annual Rental Income

Auto-filled from Airbnb estimate

Purchase price
Renovation
Transaction costs
Total investment
Property tax
Insurance
Maintenance
Annual yield
Break-even
5-year return
10-year return
0 yr5101520+

Estimates only. Actual returns depend on rental demand, management quality, renovation scope, and market conditions. Adjust sliders to model scenarios.

Hirafu, Kutchan, Abuta District, Hokkaido, Japan

北海道虻田郡倶知安町字比羅夫

Get Started

Sign in to save properties

How It Works

1

Search - Browse properties across Japan

2

Save - Add favorites to your list

3

Contact Teritoru - Click "Get Started" above. Teritoru is our broker partner who will help you contact the selling agent or seller.

Teritoru handles all communication with Japanese agencies on your behalf in English.

Map & Street View

Map loading...

Location Accuracy Notice: Although we try to make the map accurate with coordinates or address details provided, the location data is provided by the agent. This map data should be used as reference for the surrounding area foremost.

Location Type Beds Price Land House View

* Sold properties shown for price comparison only. Prices reflect historical sale data.

Location Type Beds Rent/Month Land House View

* Rental prices shown are monthly rates. Contact property owner for current availability.