Back to results 5LDK House for Sale in Shimoshakujii, Nerima, Tokyo - 208.95m2
Added 3 days ago

Know someone who would love this? Gift them a subscription

¥148,000,000

4-chome Shimoshakujii, Nerima-ku, Tokyo

東京都練馬区下石神井4丁目

Sign in to save properties

Work with our partners to help you search, evaluate, and purchase property in Japan.

Book a Consultation
Buy Near Station House Quiet Area Reinforced Concrete

Unlock the full description with a free trial

Includes AI translation, hazard data, cost estimates & nearby amenities

3 days free · cancel anytime

Start Free Trial

Property Overview: 5LDK Mixed-Use Residential Building in Shimoshakujii, Nerima

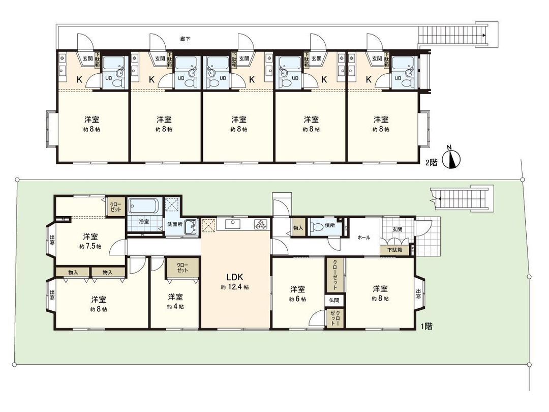
This reinforced concrete two-story building is located in the quiet residential area of Shimoshakujii 4-chome, Nerima-ku, Tokyo. The property is a 5-minute walk from Kamiigusa Station on the Seibu Shinjuku Line, providing convenient access to central Tokyo. The building offers a unique layout with a 5LDK residential unit on the first floor and five 1K rental units on the second floor, making it suitable for owner-occupancy with rental income.

The property features a total floor area of 208.95 square meters (approximately 63.2 tsubo) on a land area of 231.4 square meters (approximately 69.99 tsubo). Built in September 1991, the building is constructed of reinforced concrete (RC) and is situated in a first-class low-rise residential zone. The first-floor living area includes a spacious entrance, a living-dining room, and four rooms facing south, along with a system kitchen equipped with a built-in dishwasher. The interior has been well-maintained by the current occupants. The second floor comprises five individual 1K units. The property has all ownership rights (shoyuken) to the land, which is classified as residential land. The building coverage ratio is 50% and the floor area ratio is 100%.

The surrounding area is a quiet, established residential neighborhood. A supermarket is within a 5-minute walk, and an elementary school is within a 10-minute walk. The property also benefits from access to multiple train lines, including the Seibu Shinjuku Line and the Seibu Ikebukuro Line (via bus to Shimoigusa Station). The property is currently occupied and details regarding transfer timing are negotiable.

This description was AI-generated from the original Japanese listing and may contain inaccuracies. Please verify details with the source listing.

Summary

Bedrooms: 5
Year built: 1991
Land size: 231 / 2,491sqft
House size: 209 / 2,249sqft

Short-Term Rental (Minpaku)

Transport

HND

Haneda Airport — 26 km away

Nearby Konbini

Family Mart Family Mart — 1 min walk

Internet Connectivity

Natural Hazard Assessment

Flood Risk Low Risk
Landslide Risk Moderate
Tsunami Risk Low Risk
Earthquake Hazard Moderate

Unlock hazard data with a free trial

Flood, landslide, tsunami & earthquake risk for this property

3 days free · cancel anytime

Start Free Trial

Purchase Cost & Tax Estimates

Agent fees, acquisition tax, registration costs & annual property tax

Airbnb Revenue Estimate

Projected nightly rate, occupancy & net income for this property

Investment ROI

Annual yield, break-even timeline & 10-year return projection

Map & Street View

Map loading...

Location Accuracy Notice: Although we try to make the map accurate with coordinates or address details provided, the location data is provided by the agent. This map data should be used as reference for the surrounding area foremost.

Location Type Beds Price Land House View

* Sold properties shown for price comparison only. Prices reflect historical sale data.

Location Type Beds Rent/Month Land House View

* Rental prices shown are monthly rates. Contact property owner for current availability.