Back to results Panasonic Homes Land Plots in Yufu City, Oita - New Development

Needs Verification

This listing hasn't been verified recently. Tap to request a priority check!

¥11,960,000

328 Kono, Hasamacho, Yufu City, Oita Prefecture

大分県由布市挾間町古野328番地他

Buy Mountain Property Land New Build Panoramic View Quiet Area Onsen

Know someone who would love this? Gift them a subscription

This property has more to show

Earthquake & flood hazard assessment
Purchase cost & tax estimates
Full AI-translated description

Trusted by property buyers worldwide

Start 3-Day Free Trial

$5/month after trial · Cancel anytime

Panasonic Homes Yufu: A New Development in the Serene Foothills

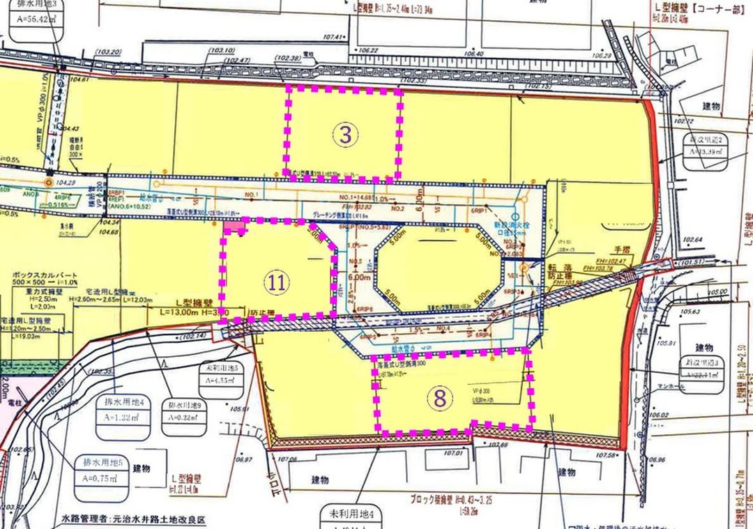
This is a rare opportunity to acquire a plot in the new "Kono" subdivision in Yufu City, Oita Prefecture. Currently under development with an expected completion date of November 2025, this project offers three exclusive building lots for custom homes constructed by Panasonic Homes. The land parcels range in size from approximately 197.77 to 226.91 square meters, each fronting a wide 6-meter road and situated on elevated ground for excellent views and privacy.

The property is sold with a construction condition, meaning the purchase is contingent upon signing a building contract with the designated builder, Panasonic Homes, within a specified period. This ensures a seamless, coordinated process from land acquisition to moving into your new, custom-designed home. The sale includes ownership rights, and no brokerage fees are required from the buyer.

According to the agent's notes, the main utilities are provided by Kyushu Electric Power and public waterworks. A critical piece of administrative information is the development permit number: Directive Metropolitan No. 6-2 (指令都第6-2号). The land is zoned as a Category II Medium-to-High-Rise Exclusive Residential District within a city planning area, with a building-to-land ratio of 60% and a floor area ratio of 200%.

The location in Hasama-cho, Yufu City, offers a peaceful residential setting with excellent daily conveniences. Yufugawa Elementary School is within a short 460-meter walk, a Lawson convenience store is about 590 meters away, and the larger AEON Hasama store is approximately 1.9km from the site. For healthcare, the prestigious Oita University Faculty of Medicine Hospital is roughly 1km away. An interesting local fact is that Yufu City, formed from the merger of Yufuin and Hasama towns, is famous for its hot springs and stunning rural scenery dominated by the twin peaks of Mount Yufu. The area is a gateway to the natural beauty of central Oita. The closest major tourist attraction is the iconic Mount Yufu itself, a beloved hiking destination known for its distinctive silhouette, often called "Bungo Fuji."

This description was AI-generated from the original Japanese listing and may contain inaccuracies. Please verify details with the source listing.

Summary

Land size: 198 / 2,129sqft

Short-Term Rental (Minpaku)

Transport

FUK

Fukuoka Airport — 108 km away

Nearest Konbini

every_one Every One — 6 min walk

Internet Connectivity

Natural Hazard Assessment

Hazard data is a subscriber feature

Know the flood, landslide & tsunami risks before you buy

View Plans
¥11,960,000
Purchase Cost & Tax Estimates
Subscribe
Agent fee (3% + tax)¥000,000
Acquisition tax¥000,000
Registration & stamp¥000,000
Property tax (annual)¥00,000/yr
Subscribe to view cost & tax estimates →
Nightly Rate
Occupancy Rate
Max operating days/year
Est. booked nights/year
Gross annual revenue
Expenses breakdown
Cleaning
Platform fees (3%)
Management (20%)
Supplies
Insurance
Utilities
Total expenses
Net annual income
Monthly equivalent

Actual revenue varies by location, property quality, season, and management. Adjust sliders to model different scenarios.

Renovation Budget
Annual Rental Income

Auto-filled from Airbnb estimate

Purchase price
Renovation
Transaction costs
Total investment
Property tax
Insurance
Maintenance
Annual yield
Break-even
5-year return
10-year return
0 yr5101520+

Estimates only. Actual returns depend on rental demand, management quality, renovation scope, and market conditions. Adjust sliders to model scenarios.

328 Kono, Hasamacho, Yufu City, Oita Prefecture

大分県由布市挾間町古野328番地他

Get Started

Sign in to save properties

Map & Street View

Map loading...

Location Accuracy Notice: Although we try to make the map accurate with coordinates or address details provided, the location data is provided by the agent. This map data should be used as reference for the surrounding area foremost.

Location Type Beds Price Land House View

* Sold properties shown for price comparison only. Prices reflect historical sale data.

Location Type Beds Rent/Month Land House View

* Rental prices shown are monthly rates. Contact property owner for current availability.