Back to results 1928 5LDK Wooden House in Osaka Sumiyoshi Konohama

Needs Verification

This listing hasn't been verified recently. Tap to request a priority check!

Know someone who would love this? Gift them a subscription

¥27,600,000

Konohama 2-chome, Sumiyoshi Ward, Osaka City, Osaka Prefecture

大阪府大阪市住之江区粉浜2丁目

Sign in to save properties

Work with our partners to help you search, evaluate, and purchase property in Japan.

Book a Consultation
Buy Near Station House Historic Universal Studios Stadium Aquarium

Unlock the full description with a free trial

Includes AI translation, hazard data, cost estimates & nearby amenities

3 days free · cancel anytime

Start Free Trial

Historic 1928 Wooden Home in Osaka's Sumiyoshi Ward

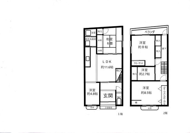
This property is a distinctive wooden-built detached house located in Osaka's Sumiyoshi Ward, offering a generous 5LDK layout across two stories. Built in January 1928, this home presents a rare opportunity to own a piece of Osaka's architectural history. The total building area is 82.04 sqm (approximately 24.81 tsubo), situated on a land area of 67.76 sqm (approximately 20.49 tsubo) with a balcony of 5 sqm. The property is currently vacant, and the handover timing is negotiable.

Key details from the agent's notes include important clarifications on the property's measurements. The registered land area is 67.76 sqm, while a provisional survey indicates an area of 70.30 sqm. The registered building floor area is 69.02 sqm, but the official certificate of public charges confirms the building area as 82.04 sqm. The layout diagram prioritizes the current condition of the property. The land is designated as residential land within a City Planning Area (Urbanization Promotion Area) and falls under the First Category Residential District. The building-to-land ratio is 80% with a floor area ratio of 200%. The land is flat and fronts a 5.5m wide public road to the south, with a road frontage of 5.8m. There are legal restrictions regarding rebuilding. The transaction is handled as a general intermediary.

The location in Konohama 2-chome is highly convenient, with multiple transport options within walking distance. It is a 6-minute walk to Konohama Station on the Nankai Main Line, 7 minutes to Sumiyoshi Station on the Hankai Line, and 11 minutes to Tamade Station on the Osaka Metro Yotsubashi Line. The immediate vicinity offers daily necessities with supermarkets, a shopping street, and a pharmacy all within a few minutes' walk.

The surrounding Sumiyoshi area is rich in culture and history. A notable landmark is the iconic Sumiyoshi Taisha, one of Japan's oldest Shinto shrines, famous for its unique architectural style and the picturesque Sorihashi bridge. This area provides a blend of traditional atmosphere with the practical conveniences of city living in Osaka.

This description was AI-generated from the original Japanese listing and may contain inaccuracies. Please verify details with the source listing.

Summary

Bedrooms: 5
Year built: 1928
Land size: 68 / 729sqft
House size: 82 / 883sqft
Balcony size: 5 / 54sqft

Short-Term Rental (Minpaku)

Transport

ITM

Osaka International Airport — 19 km away

Nearby Konbini

Family Mart Family Mart — 3 min walk

Internet Connectivity

Natural Hazard Assessment

Flood Risk Low Risk
Landslide Risk Moderate
Tsunami Risk Low Risk
Earthquake Hazard Moderate

Unlock hazard data with a free trial

Flood, landslide, tsunami & earthquake risk for this property

3 days free · cancel anytime

Start Free Trial

Purchase Cost & Tax Estimates

Agent fees, acquisition tax, registration costs & annual property tax

Airbnb Revenue Estimate

Projected nightly rate, occupancy & net income for this property

Investment ROI

Annual yield, break-even timeline & 10-year return projection

Map & Street View

Map loading...

Location Accuracy Notice: Although we try to make the map accurate with coordinates or address details provided, the location data is provided by the agent. This map data should be used as reference for the surrounding area foremost.

Location Type Beds Price Land House View

* Sold properties shown for price comparison only. Prices reflect historical sale data.

Location Type Beds Rent/Month Land House View

* Rental prices shown are monthly rates. Contact property owner for current availability.