Back to results New 3-Storey 2SLDK House in Nagoya Mizuho Ward

Needs Verification

This listing hasn't been verified recently. Tap to request a priority check!

Know someone who would love this? Gift them a subscription

¥41,900,000

Tsugatamachi 3-chome, Mizuho Ward, Nagoya City, Aichi Prefecture

愛知県名古屋市瑞穂区津賀田町3丁目

Sign in to save properties

Work with our partners to help you search, evaluate, and purchase property in Japan.

Book a Consultation
Buy Move-in Ready Near Station House New Build Gas Heating/Cooking Modern House Parking Legoland Stadium Aquarium

Unlock the full description with a free trial

Includes AI translation, hazard data, cost estimates & nearby amenities

3 days free · cancel anytime

Start Free Trial

Newly Built 3-Storey House in Nagoya's Mizuho Ward

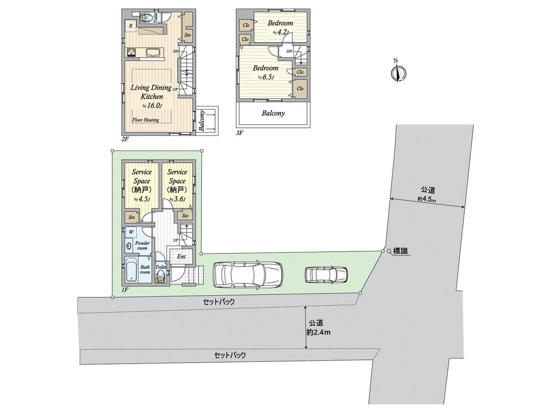
This newly constructed detached house, completed in December 2025, offers a modern and comfortable lifestyle in the desirable Mizuho Ward of Nagoya. The property features a 2SLDK layout with a spacious approximately 16.0-jo (tatami mat) combined living, dining, and kitchen area. The south-facing road ensures excellent sunlight, while the south-facing balcony on the second floor creates a bright and airy living space.

Key building and room features include the use of two subway lines, with Mizuho Undojo Nishi Station on the Sakura-dori Line just a 4-minute walk away and Shin-Mizubashi Station (serving both the Meijo and Sakura-dori Lines) within an 8-minute walk. The house is a three-story wooden structure with a total building area of 86.69 sqm (approx. 26.22 tsubo) and a land area of 83.97 sqm (approx. 25.4 tsubo), including a set-back of about 11.55 sqm. Two parking spaces are available (tandem parking, subject to vehicle type).

The property is equipped with a range of modern amenities. The face-to-face kitchen encourages family interaction. Gas hot water floor heating is installed in the living and dining areas for comfort. Ample storage is provided with a kitchen-side storage area and two closets (service rooms). The home also features energy-efficient Low-E double-glazed windows and an Eco-Jose energy-saving water heater. Additional equipment includes underfloor heating, a bathroom dryer, and a TV monitor-equipped intercom.

This description was AI-generated from the original Japanese listing and may contain inaccuracies. Please verify details with the source listing.

Summary

Bedrooms: 2
Parking: 2
Year built: 2025
Land size: 84 / 904sqft
House size: 87 / 933sqft

Short-Term Rental (Minpaku)

Transport

Nearest Konbini

seven_eleven Seven Eleven — 2 min walk

Internet Connectivity

Natural Hazard Assessment

Flood Risk Low Risk
Landslide Risk Moderate
Tsunami Risk Low Risk
Earthquake Hazard Moderate

Unlock hazard data with a free trial

Flood, landslide, tsunami & earthquake risk for this property

3 days free · cancel anytime

Start Free Trial

Purchase Cost & Tax Estimates

Agent fees, acquisition tax, registration costs & annual property tax

Airbnb Revenue Estimate

Projected nightly rate, occupancy & net income for this property

Investment ROI

Annual yield, break-even timeline & 10-year return projection

Map & Street View

Map loading...

Location Accuracy Notice: Although we try to make the map accurate with coordinates or address details provided, the location data is provided by the agent. This map data should be used as reference for the surrounding area foremost.

Location Type Beds Price Land House View

* Sold properties shown for price comparison only. Prices reflect historical sale data.

Location Type Beds Rent/Month Land House View

* Rental prices shown are monthly rates. Contact property owner for current availability.