Back to results 4LDK House Near JR Eikokuji Station in Kakogawa

Verified Listing

This property was checked recently and confirmed to still be available. Tap for details.

Verified Listing

This property has been verified in the last month. Our system regularly checks listings to ensure they are still available.

Last verified: April 28, 2026

Know someone who would love this? Gift them a subscription

¥6,900,000

8-28 Hachimancho Funamachi, Kakogawa City, Hyogo Prefecture

兵庫県加古川市八幡町船町8-28

Sign in to save properties

Work with our partners to help you search, evaluate, and purchase property in Japan.

Book a Consultation
Buy House Castle Town

Unlock the full description with a free trial

Includes AI translation, hazard data, cost estimates & nearby amenities

3 days free · cancel anytime

Start Free Trial

A Spacious Family Home Near JR Eikokuji Station

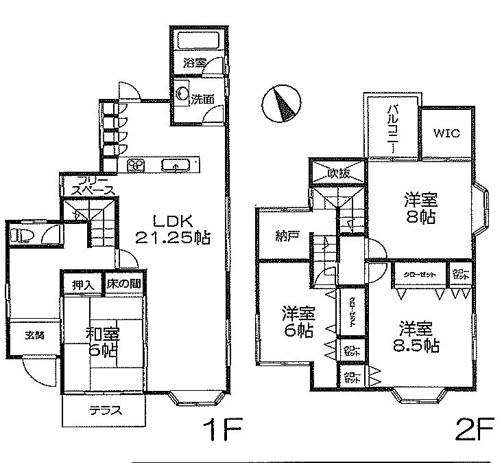
This well-maintained 4LDK house in Kakogawa City offers 126.46㎡ of living space, perfect for families seeking comfort and convenience. Built in 1993, the property features a generous 21-tatami LDK, ample storage including a walk-in closet, and an all-electric kitchen. The location provides easy access to JR Eikokuji Station, just a 4-minute walk away.

The nearest major landmark is Himeji Castle, approximately 15 kilometers west of the property. This UNESCO World Heritage Site, often called the White Heron Castle for its elegant appearance, makes for an excellent day trip destination and represents one of Japan's best preserved feudal-era castles.

This description was AI-generated from the original Japanese listing and may contain inaccuracies. Please verify details with the source listing.

Summary

Bedrooms: 4
Parking: 1
Year built: 1993
Land size: 137 / 1,470sqft
House size: 126 / 1,361sqft

Short-Term Rental (Minpaku)

Transport

ITM

Osaka International Airport — 48 km away

Nearby Konbini

Seven Eleven Seven Eleven — 12 min walk

Internet Connectivity

Natural Hazard Assessment

Flood Risk Low Risk
Landslide Risk Moderate
Tsunami Risk Low Risk
Earthquake Hazard Moderate

Unlock hazard data with a free trial

Flood, landslide, tsunami & earthquake risk for this property

3 days free · cancel anytime

Start Free Trial

Purchase Cost & Tax Estimates

Agent fees, acquisition tax, registration costs & annual property tax

Airbnb Revenue Estimate

Projected nightly rate, occupancy & net income for this property

Investment ROI

Annual yield, break-even timeline & 10-year return projection

Map & Street View

Map loading...

Location Accuracy Notice: Although we try to make the map accurate with coordinates or address details provided, the location data is provided by the agent. This map data should be used as reference for the surrounding area foremost.

Location Type Beds Price Land House View

* Sold properties shown for price comparison only. Prices reflect historical sale data.

Location Type Beds Rent/Month Land House View

* Rental prices shown are monthly rates. Contact property owner for current availability.