Back to results 6DK House with Garage & Warehouse for Sale in Hakui, Ishikawa
Marked sold 3 days ago
¥2,000,000

Ishikawa Prefecture, Hakui City, Shimodecho

石川県羽咋市島出町

Sold House Ski Resort Area Gas Heating/Cooking

Know someone who would love this? Gift them a subscription

This property has more to show

Earthquake & flood hazard assessment
Purchase cost & tax estimates
Full AI-translated description

Trusted by property buyers worldwide

Start 3-Day Free Trial

$5/month after trial · Cancel anytime

Spacious Family Home with Investment Potential in Hakui, Ishikawa

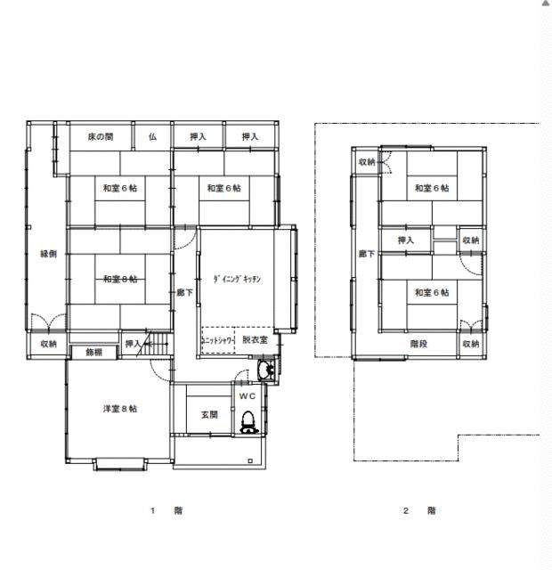
This substantial property in Hakui City, Ishikawa Prefecture, offers a rare combination of a large family home and significant income-generating potential. The main house is a two-story wooden structure built in April 1972, offering a generous 127.39 sqm (approximately 38.53 tsubo) of living space across a 6DK layout. The land parcel is equally impressive at 321.15 sqm (approximately 97.14 tsubo), providing ample outdoor space.

The property's equipment includes propane gas, city water supply, sewerage, and electricity. A critical special note details the road access: the property fronts a 2.8-meter wide public road to the east, with a frontage of 14 meters, accessible from one side only.

Remarkably, the listing includes two unregistered auxiliary buildings that present a compelling investment opportunity. There is a CB-construction garage with a total floor area of 17.32 sqm (5.23 tsubo), and a separate single-story wooden warehouse measuring 16.52 sqm (5.00 tsubo). Both of these structures were also built in 1972 (Showa 47). The agent's notes project an estimated annual rental income of 360,000 yen from these buildings, suggesting a surface yield of 18%.

Located in Hakui City, the area is known for its rich cultural history and coastal scenery. An interesting local fact is that Hakui is home to the 'Cosmo Isle Hakui' observatory and space science museum, a nod to the region's clear skies. The closest major landmark is the historic Hakui Castle ruins, a park offering panoramic views and a glimpse into the area's samurai past.

This description was AI-generated from the original Japanese listing and may contain inaccuracies. Please verify details with the source listing.

Summary

Bedrooms: 6
Parking: 1
Year built: 1972
Land size: 321 / 3,457sqft
House size: 127 / 1,371sqft

Short-Term Rental (Minpaku)

Transport

Nearby Konbini

Family Mart Family Mart — 16 min walk

Internet Connectivity

Natural Hazard Assessment

Hazard data is a subscriber feature

Know the flood, landslide & tsunami risks before you buy

View Plans
¥2,000,000

Ishikawa Prefecture, Hakui City, Shimodecho

石川県羽咋市島出町

Get Started

Sign in to save properties

Map & Street View

Map loading...

Location Accuracy Notice: Although we try to make the map accurate with coordinates or address details provided, the location data is provided by the agent. This map data should be used as reference for the surrounding area foremost.

Location Type Beds Price Land House View

* Sold properties shown for price comparison only. Prices reflect historical sale data.

Location Type Beds Rent/Month Land House View

* Rental prices shown are monthly rates. Contact property owner for current availability.