Back to results Servas Nakano Bridge 3LDK Apartment for Sale in Morioka

Verified Listing

This property was checked recently and confirmed to still be available. Tap for details.

Verified Listing

This property has been verified in the last month. Our system regularly checks listings to ensure they are still available.

Last verified: April 5, 2026

Servas Nakano Bridge 3LDK Apartment for Sale in Morioka
¥26,700,000

Nakanobashidori 1-chome, Morioka City, Iwate Prefecture

岩手県盛岡市中ノ橋通一丁目

Buy Move-in Ready Near Station Apartment Pet Friendly Renovated Reinforced Concrete

Know someone who would love this? Gift them a subscription

This property has more to show

Earthquake & flood hazard assessment
Purchase cost & tax estimates
Full AI-translated description

Trusted by property buyers worldwide

Start 3-Day Free Trial

$5/month after trial · Cancel anytime

Servas Nakano Bridge: A South-Facing 3LDK Apartment in Morioka

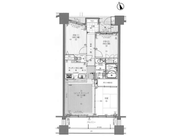
This 67.63 sqm apartment, located on the 4th floor of a 14-storey reinforced concrete building, offers a functional 3LDK layout. The property is currently vacant, and the agent encourages interested parties to freely inquire about arranging a viewing date. The layout comprises a 13.8-jo living-dining-kitchen area, two Western-style rooms (5-jo and 6-jo), and a 6-tatami mat Japanese-style room. The south-facing balcony provides 11.97 sqm of outdoor space.

The apartment has undergone several updates, including a water heater replacement completed in August 2018 and a gas stove replacement in January 2025. Further renovations are planned for 2026, including cylinder replacement, tatami mat surface renewal, and partial fusuma sliding door re-papering. The property is pet-friendly, subject to specific rules and regulations.

Conveniently situated in Morioka City, Iwate Prefecture, the building is a 3-minute walk from the Morioka Bus Center. Morioka Station on the JR Tohoku Main Line is approximately a 24-minute walk away. The building features an elevator, auto-lock security, and a delivery box. Monthly fees include a 12,300 yen management fee and a 14,900 yen repair reserve fund.

This description was AI-generated from the original Japanese listing and may contain inaccuracies. Please verify details with the source listing.

Summary

Bedrooms: 3
Year built: 2005
House size: 68 / 728sqft
Balcony size: 12 / 129sqft

Short-Term Rental (Minpaku)

Transport

CTS

New Chitose Airport — 345 km away

Nearby Konbini

Seven Eleven Seven Eleven — 1 min walk
Family Mart Family Mart — 2 min walk
Daily Yamazaki Daily Yamazaki — 3 min walk

Internet Connectivity

Natural Hazard Assessment

Hazard data is a subscriber feature

Know the flood, landslide & tsunami risks before you buy

View Plans
¥26,700,000
Purchase Cost & Tax Estimates
Subscribe
Agent fee (3% + tax)¥000,000
Acquisition tax¥000,000
Registration & stamp¥000,000
Property tax (annual)¥00,000/yr
Subscribe to view cost & tax estimates →
Nightly Rate
Occupancy Rate
Max operating days/year
Est. booked nights/year
Gross annual revenue
Expenses breakdown
Cleaning
Platform fees (3%)
Management (20%)
Supplies
Insurance
Utilities
Total expenses
Net annual income
Monthly equivalent

Actual revenue varies by location, property quality, season, and management. Adjust sliders to model different scenarios.

Renovation Budget
Annual Rental Income

Auto-filled from Airbnb estimate

Purchase price
Renovation
Transaction costs
Total investment
Property tax
Insurance
Maintenance
Annual yield
Break-even
5-year return
10-year return
0 yr5101520+

Estimates only. Actual returns depend on rental demand, management quality, renovation scope, and market conditions. Adjust sliders to model scenarios.

Nakanobashidori 1-chome, Morioka City, Iwate Prefecture

岩手県盛岡市中ノ橋通一丁目

Get Started

Sign in to save properties

Map & Street View

Map loading...

Location Accuracy Notice: Although we try to make the map accurate with coordinates or address details provided, the location data is provided by the agent. This map data should be used as reference for the surrounding area foremost.

Location Type Beds Price Land House View

* Sold properties shown for price comparison only. Prices reflect historical sale data.

Location Type Beds Rent/Month Land House View

* Rental prices shown are monthly rates. Contact property owner for current availability.