Back to results 4LDK Apartment for Sale in Tenri, Nara - 80.13 sqm
Added 7 days ago

Know someone who would love this? Gift them a subscription

¥30,200,000

奈良県天理市田井庄町

奈良県天理市田井庄町

Sign in to save properties

Work with our partners to help you search, evaluate, and purchase property in Japan.

Book a Consultation
Buy Near Station House Apartment Pet Friendly Parking Reinforced Concrete

Unlock the full description with a free trial

Includes AI translation, hazard data, cost estimates & nearby amenities

3 days free · cancel anytime

Start Free Trial

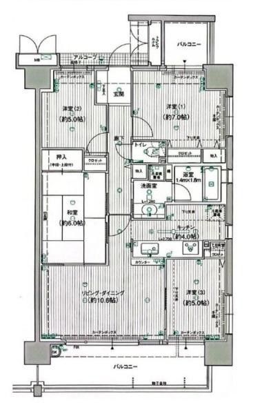
Spacious 4LDK Corner Apartment in Tenri City

This well-maintained 4LDK apartment, located on the 7th floor of the 10-story 'Royal Arc Tenri' building, offers a comfortable living space of 80.13 square meters. The corner unit enjoys excellent sunlight and views, featuring a south-facing balcony with a total balcony area of 16.34 square meters. The property is equipped with an auto-lock system for security, a delivery box for convenience, and an elevator. The interior features flooring throughout and a counter kitchen. All rooms have storage space, and the balcony spans two or more sides of the unit.

The apartment is situated in the Tenri City area of Nara Prefecture, just an 8-minute walk from Tenri Station on both the Kintetsu Tenri Line and the Sakurai Line. The neighborhood offers convenient access to daily amenities, including a convenience store just 86 meters away and a supermarket 565 meters from the property. The building has a total of 61 units and is managed by Mitsui Fudosan Residential Service. The property is constructed of reinforced concrete, built in March 2003. Parking is available for 2,000 yen per month, and pets are negotiable. The property uses city gas and public water.

This description was AI-generated from the original Japanese listing and may contain inaccuracies. Please verify details with the source listing.

Summary

Bedrooms: 4
Parking: 1
Year built: 2003
House size: 80 / 863sqft
Balcony size: 16 / 172sqft

Short-Term Rental (Minpaku)

Transport

ITM

Osaka International Airport — 41 km away

Nearby Konbini

Family Mart Family Mart — 3 min walk

Internet Connectivity

Natural Hazard Assessment

Flood Risk Low Risk
Landslide Risk Moderate
Tsunami Risk Low Risk
Earthquake Hazard Moderate

Unlock hazard data with a free trial

Flood, landslide, tsunami & earthquake risk for this property

3 days free · cancel anytime

Start Free Trial

Purchase Cost & Tax Estimates

Agent fees, acquisition tax, registration costs & annual property tax

Airbnb Revenue Estimate

Projected nightly rate, occupancy & net income for this property

Investment ROI

Annual yield, break-even timeline & 10-year return projection

Map & Street View

Map loading...

Location Accuracy Notice: Although we try to make the map accurate with coordinates or address details provided, the location data is provided by the agent. This map data should be used as reference for the surrounding area foremost.

Location Type Beds Price Land House View

* Sold properties shown for price comparison only. Prices reflect historical sale data.

Location Type Beds Rent/Month Land House View

* Rental prices shown are monthly rates. Contact property owner for current availability.