Back to results Traditional Wooden House on 1689 sqm Land in Takayama

Needs Verification

This listing hasn't been verified recently. Tap to request a priority check!

Know someone who would love this? Gift them a subscription

¥3,000,000

Asahimachi Nishi-bora, Takayama City, Gifu Prefecture

岐阜県高山市朝日町西洞

Sign in to save properties

Work with our partners to help you search, evaluate, and purchase property in Japan.

Book a Consultation
Buy Traditional House House Akiya Bank Corner Lot Gas Heating/Cooking Large Garden Parking Rural

Unlock the full description with a free trial

Includes AI translation, hazard data, cost estimates & nearby amenities

3 days free · cancel anytime

Start Free Trial

Traditional Japanese Home in the Scenic Highlands of Takayama

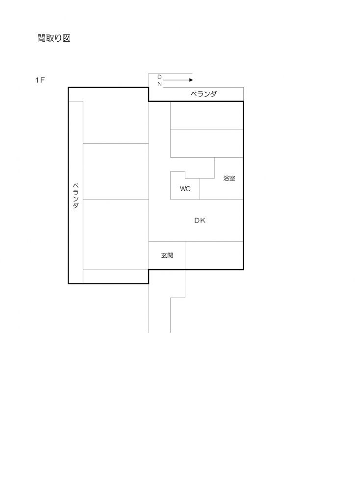
This property is a traditional Japanese detached house located in the serene residential neighborhood of Asahimachi Nishi-bora in Takayama City, Gifu Prefecture. Built in May 1974, this 51-year-old wooden structure offers a generous total floor area of 98.93 square meters spread over two stories. The home sits on a spacious 1,689 square meter corner plot, providing ample outdoor space and privacy. The property features a south-facing orientation, ensuring plenty of natural sunlight, and includes parking for two or more vehicles.

Key facilities within the home include a system kitchen, two toilets, and a bath with a reheating function, making it suitable for extended family living. Additional amenities include a monitor-equipped intercom system. The property is connected to city gas. According to the agent's special notes, all viewings and negotiations for this property must be arranged through the Takayama City Akiya Bank website.

This description was AI-generated from the original Japanese listing and may contain inaccuracies. Please verify details with the source listing.

Summary

Parking: 2
Year built: 1974
Land size: 1,689 / 18,180sqft
House size: 99 / 1,065sqft

Short-Term Rental (Minpaku)

Transport

Internet Connectivity

Natural Hazard Assessment

Flood Risk Low Risk
Landslide Risk Moderate
Tsunami Risk Low Risk
Earthquake Hazard Moderate

Unlock hazard data with a free trial

Flood, landslide, tsunami & earthquake risk for this property

3 days free · cancel anytime

Start Free Trial

Purchase Cost & Tax Estimates

Agent fees, acquisition tax, registration costs & annual property tax

Airbnb Revenue Estimate

Projected nightly rate, occupancy & net income for this property

Investment ROI

Annual yield, break-even timeline & 10-year return projection

Map & Street View

Map loading...

Location Accuracy Notice: Although we try to make the map accurate with coordinates or address details provided, the location data is provided by the agent. This map data should be used as reference for the surrounding area foremost.

Location Type Beds Price Land House View

* Sold properties shown for price comparison only. Prices reflect historical sale data.

Location Type Beds Rent/Month Land House View

* Rental prices shown are monthly rates. Contact property owner for current availability.