Back to results New 5SLDK House with Solar Panels in Saitama's Minuma Ward

Verified Listing

This property was checked recently and confirmed to still be available. Tap for details.

Verified Listing

This property has been verified in the last month. Our system regularly checks listings to ensure they are still available.

Last verified: April 3, 2026

¥69,800,000

Okuraminami, Minuma Ward, Saitama City, Saitama Prefecture

埼玉県さいたま市見沼区大字御蔵

Buy House New Build Solar Panels Ecocute Modern House Large Garden Parking Stadium

Know someone who would love this? Gift them a subscription

This property has more to show

Earthquake & flood hazard assessment
Purchase cost & tax estimates
Full AI-translated description

Trusted by property buyers worldwide

Start 3-Day Free Trial

$5/month after trial · Cancel anytime

Spacious Modern Family Home with Solar Panels in Saitama

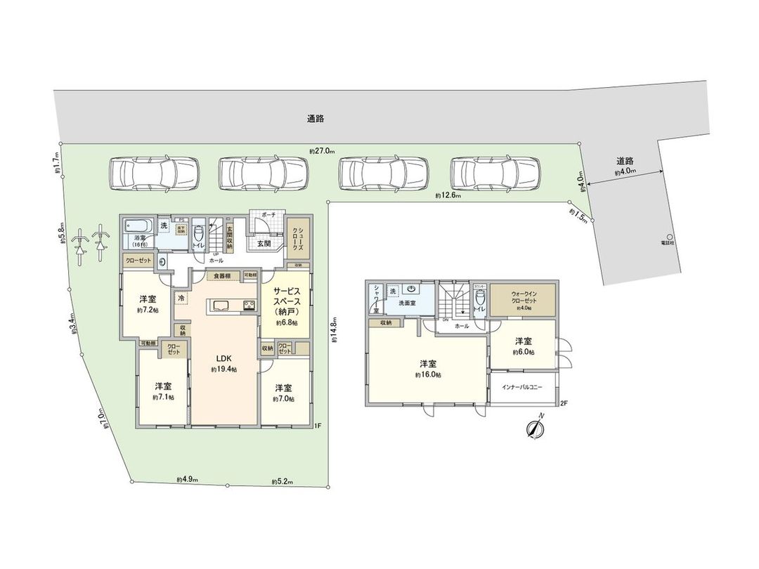
This newly built, custom-designed detached house, completed in March 2024, offers a generous 5SLDK layout with a total floor area of 160.47 sqm. The property sits on a substantial 267.32 sqm plot, providing ample outdoor space including an artificial turf garden. The approximately 19.4-tatami mat living room features a sloped ceiling, creating a bright and open atmosphere perfect for family life. The kitchen is designed for interaction with a face-to-face counter layout.

All bedrooms are spacious, each over 6 tatami mats in size, and include built-in storage such as walk-in closets and a shoe-in cloakroom. The approximately 16.0-tatami mat Western-style room on the second floor can serve as a second living room, making the home suitable for a semi-dual-generation household, especially as the second floor also has its own washroom and shower room. The property is certified as a Long-Term Excellent Housing. Key equipment includes a 7.7kW solar panel system, a high-capacity EcoCute electric water heater, and an all-electric setup with IH cooking. Four parking spaces are available (depending on vehicle type), and there are two outdoor water taps in the parking area and garden. The home also features an inner balcony and a system that allows doors to be unlocked from the second floor.

According to the agent's special notes, the property is located within a City Planning Act Article 29 development area in an urbanization control zone, meaning construction or reconstruction of buildings is permitted.

This description was AI-generated from the original Japanese listing and may contain inaccuracies. Please verify details with the source listing.

Summary

Bedrooms: 5
Parking: 4
Year built: 2024
Land size: 267 / 2,877sqft
House size: 160 / 1,727sqft

Short-Term Rental (Minpaku)

Transport

HND

Haneda Airport — 41 km away

Nearest Konbini

daily_yamazaki Daily Yamazaki — 6 min walk

Internet Connectivity

Natural Hazard Assessment

Hazard data is a subscriber feature

Know the flood, landslide & tsunami risks before you buy

View Plans
¥69,800,000
Purchase Cost & Tax Estimates
Subscribe
Agent fee (3% + tax)¥000,000
Acquisition tax¥000,000
Registration & stamp¥000,000
Property tax (annual)¥00,000/yr
Subscribe to view cost & tax estimates →
Nightly Rate
Occupancy Rate
Max operating days/year
Est. booked nights/year
Gross annual revenue
Expenses breakdown
Cleaning
Platform fees (3%)
Management (20%)
Supplies
Insurance
Utilities
Total expenses
Net annual income
Monthly equivalent

Actual revenue varies by location, property quality, season, and management. Adjust sliders to model different scenarios.

Renovation Budget
Annual Rental Income

Auto-filled from Airbnb estimate

Purchase price
Renovation
Transaction costs
Total investment
Property tax
Insurance
Maintenance
Annual yield
Break-even
5-year return
10-year return
0 yr5101520+

Estimates only. Actual returns depend on rental demand, management quality, renovation scope, and market conditions. Adjust sliders to model scenarios.

Okuraminami, Minuma Ward, Saitama City, Saitama Prefecture

埼玉県さいたま市見沼区大字御蔵

Get Started

Sign in to save properties

Map & Street View

Map loading...

Location Accuracy Notice: Although we try to make the map accurate with coordinates or address details provided, the location data is provided by the agent. This map data should be used as reference for the surrounding area foremost.

Location Type Beds Price Land House View

* Sold properties shown for price comparison only. Prices reflect historical sale data.

Location Type Beds Rent/Month Land House View

* Rental prices shown are monthly rates. Contact property owner for current availability.