Back to results New Build House in Suginami, Tokyo - 3SLDK with Sky Balcony

Verified Listing

This property was checked recently and confirmed to still be available. Tap for details.

Verified Listing

This property has been verified in the last month. Our system regularly checks listings to ensure they are still available.

Last verified: March 31, 2026

Know someone who would love this? Gift them a subscription

¥139,800,000

Miyamae 5-chome, Suginami-ku, Tokyo

東京都杉並区宮前5丁目

Sign in to save properties

Work with our partners to help you search, evaluate, and purchase property in Japan.

Book a Consultation
Buy Move-in Ready Garden House New Build Modern House Parking Suburban

Unlock the full description with a free trial

Includes AI translation, hazard data, cost estimates & nearby amenities

3 days free · cancel anytime

Start Free Trial

New Construction Detached House in Suginami's Tranquil Miyamae

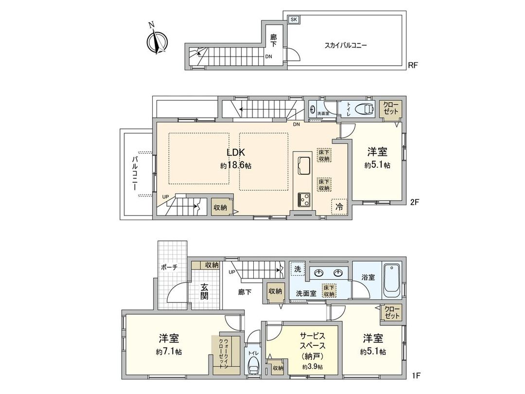
This newly built detached house in Suginami Ward's Miyamae 5-chome offers a modern and comfortable living environment. The property is a 2-story wooden structure with a total floor area of 107.86 sqm (approx. 32.62 tsubo) on a land area of 114.01 sqm (approx. 34.48 tsubo, including a set-back of about 1.37 sqm). The layout is a 3SLDK, where the 'S' denotes a service room or storage space. The house is scheduled for completion in March 2026 and is currently vacant.

The property features a bright living-dining-kitchen area with three-sided lighting, creating a spacious and relaxing atmosphere of approximately 18.6 tatami mats. It includes a sky balcony, a car space (subject to vehicle type), and a touchless key system. The smart home features include a TV monitor intercom that can be linked to a smartphone. Equipment highlights include gas hot water floor heating in the LD area, a functional face-to-face system kitchen equipped with a water purifier and dishwasher, a hotel-like two-bowl vanity unit, and a one-tsubo sized bath with a ventilation, heating, and drying system. There are washbasins and toilets on both the first and second floors, ample storage including a walk-in closet, energy-efficient double-pane glass, an energy-saving 'Eco-JOES' water heater, and a slop sink.

The location is within a quiet residential area in a First Category Low-Rise Exclusive Residential Zone. It is a 9-minute walk from Keio Inokashira Line's Kugayama Station, a stop for express trains. Daily conveniences are close at hand, with a supermarket within a 5-minute walk. The area is family-friendly, with Suginami Ward Takaidono Daini Elementary School about 100m away (a 2-minute walk) and Nishimiya Junior High School about 270m away (a 4-minute walk).

The surrounding Suginami area is a well-established residential part of Tokyo, known for its many parks and community feel. An interesting local fact is that the nearby Kugayama Station area has a reputation for being a literary hub, with several famous authors having lived there. For a major tourist attraction, the famous Ghibli Museum is located a few stations away on the Inokashira Line in Mitaka, offering a magical experience for fans of Studio Ghibli's animated films.

This description was AI-generated from the original Japanese listing and may contain inaccuracies. Please verify details with the source listing.

Summary

Bedrooms: 3
Parking: 1
Year built: 2026
Land size: 114 / 1,227sqft
House size: 108 / 1,161sqft

Short-Term Rental (Minpaku)

Transport

HND

Haneda Airport — 23 km away

Nearby Konbini

Poplar Poplar — 3 min walk

Internet Connectivity

Natural Hazard Assessment

Flood Risk Low Risk
Landslide Risk Moderate
Tsunami Risk Low Risk
Earthquake Hazard Moderate

Unlock hazard data with a free trial

Flood, landslide, tsunami & earthquake risk for this property

3 days free · cancel anytime

Start Free Trial

Purchase Cost & Tax Estimates

Agent fees, acquisition tax, registration costs & annual property tax

Airbnb Revenue Estimate

Projected nightly rate, occupancy & net income for this property

Investment ROI

Annual yield, break-even timeline & 10-year return projection

Map & Street View

Map loading...

Location Accuracy Notice: Although we try to make the map accurate with coordinates or address details provided, the location data is provided by the agent. This map data should be used as reference for the surrounding area foremost.

Location Type Beds Price Land House View

* Sold properties shown for price comparison only. Prices reflect historical sale data.

Location Type Beds Rent/Month Land House View

* Rental prices shown are monthly rates. Contact property owner for current availability.