Back to results 7LDK Detached House on 396sqm Land in Kakogawa, Hyogo

Needs Verification

This listing hasn't been verified recently. Tap to request a priority check!

Know someone who would love this? Gift them a subscription

¥22,200,000

Nishikanki-cho, Kakogawa City, Hyogo Prefecture

兵庫県加古川市西神吉町

Sign in to save properties

Work with our partners to help you search, evaluate, and purchase property in Japan.

Book a Consultation
Buy House Gas Heating/Cooking

Unlock the full description with a free trial

Includes AI translation, hazard data, cost estimates & nearby amenities

3 days free · cancel anytime

Start Free Trial

Spacious Family Home in Kakogawa with Generous Land and Traditional Layout

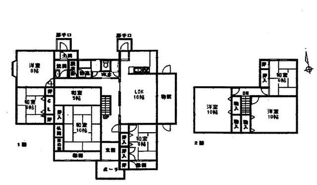
This substantial detached house, built in April 1990, offers a rare combination of generous space and a functional layout in the sought-after area of Kakogawa City, Hyogo Prefecture. The property sits on a large plot of 396.26 square meters (approximately 119.86 tsubo), providing ample outdoor space and privacy. The house itself is a sizable 233.22 square meters (approximately 70.54 tsubo) across two stories, featuring a traditional 7LDK layout ideal for a large or multi-generational family, offering multiple living, dining, and sleeping areas.

The property is equipped with essential utilities: propane gas, municipal water supply, sewerage, and electricity. A critical note on access details that the property fronts onto a public road to the south, which is a one-sided road with a width of 4.2 meters. The land is flat and designated as residential land within a City Planning Area of Urbanization Control. Parking is available on-site.

Kakogawa City is a vibrant part of the Hyogo Prefecture, known for its blend of urban convenience and natural beauty, with the Kakogawa River flowing through the city. An interesting local fact is that the city is famous for its production of high-quality "Banshu Soroban" (abacuses), a traditional calculating tool with a history dating back centuries. The area is well-connected, with the Sanyo Main Line providing access to major hubs. The closest major landmark is Himeji Castle, a UNESCO World Heritage site and one of Japan's most iconic and pristine feudal castles, located a short drive or train ride away.

This description was AI-generated from the original Japanese listing and may contain inaccuracies. Please verify details with the source listing.

Summary

Bedrooms: 7
Parking: 1
Year built: 1990
Land size: 396 / 4,265sqft
House size: 233 / 2,510sqft

Short-Term Rental (Minpaku)

Transport

KIX

Kansai International Airport — 56 km away

Nearby Konbini

Seven Eleven Seven Eleven — 6 min walk

Internet Connectivity

Natural Hazard Assessment

Flood Risk Low Risk
Landslide Risk Moderate
Tsunami Risk Low Risk
Earthquake Hazard Moderate

Unlock hazard data with a free trial

Flood, landslide, tsunami & earthquake risk for this property

3 days free · cancel anytime

Start Free Trial

Purchase Cost & Tax Estimates

Agent fees, acquisition tax, registration costs & annual property tax

Airbnb Revenue Estimate

Projected nightly rate, occupancy & net income for this property

Investment ROI

Annual yield, break-even timeline & 10-year return projection

Map & Street View

Map loading...

Location Accuracy Notice: Although we try to make the map accurate with coordinates or address details provided, the location data is provided by the agent. This map data should be used as reference for the surrounding area foremost.

Location Type Beds Price Land House View

* Sold properties shown for price comparison only. Prices reflect historical sale data.

Location Type Beds Rent/Month Land House View

* Rental prices shown are monthly rates. Contact property owner for current availability.