Back to results Spacious Residential Land for Sale in Kita Ward, Kyoto

Verified Listing

This property was checked recently and confirmed to still be available. Tap for details.

Verified Listing

This property has been verified in the last month. Our system regularly checks listings to ensure they are still available.

Last verified: April 15, 2026

Know someone who would love this? Gift them a subscription

¥43,800,000

Komatsubara Kitamachi, Kita Ward, Kyoto, Kyoto Prefecture

京都府京都市北区小松原北町

Listing No Longer Available

Sign in to save properties

Work with our partners to help you search, evaluate, and purchase property in Japan.

Book a Consultation
Sold Move-in Ready Garden Land Parking Suburban Quiet Area

Unlock the full description with a free trial

Includes AI translation, hazard data, cost estimates & nearby amenities

3 days free · cancel anytime

Start Free Trial

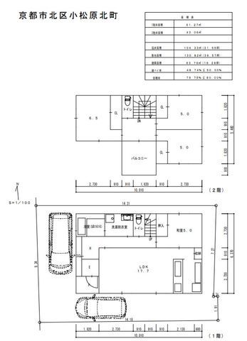
Spacious Residential Plot in Kyoto's Kita Ward

This vacant residential land in Kyoto's Kita Ward offers a generous canvas for building your ideal home. The plot spans 130.36 square meters (approximately 39.43 tsubo), originally sized to accommodate two detached houses, providing ample space and a sense of openness. The lot features a wide frontage of approximately 14 meters, facing a roughly 9-meter-wide road, ensuring excellent sunlight and easy vehicle access. The property's layout and floor plan offer high degrees of freedom, making it easy to envision a custom-designed residence that suits your lifestyle. The spacious site can accommodate parking for two vehicles and allows for garden creation or other outdoor uses.

The property is situated in a convenient and accessible neighborhood. It is within a 10-minute walk from two stations on the Keifuku Electric Railway Kitano Line: Tōji-in & Ritsumeikan University Kinugasa Campus Front Station and Kitano-Hakubaichō Station. The area offers daily amenities including a convenience store within 390 meters and a supermarket within 500 meters. Nearby facilities also include Kyoto Municipal Kinkaku Elementary School, the private Rakusei Junior High School, a general hospital, and Kinugasa Kindergarten.

According to agent notes, the current status of the property is vacant land. The agent encourages interested parties to feel free to inquire with their preferred dates for an actual viewing, which can be arranged free of charge. They also emphasize: "Is it okay to ask about such things?" There's no need for such hesitation! They pledge to support clients sincerely to help them make the optimal choice.

This description was AI-generated from the original Japanese listing and may contain inaccuracies. Please verify details with the source listing.

Summary

Parking: 2
Land size: 130 / 1,403sqft

Short-Term Rental (Minpaku)

Transport

ITM

Osaka International Airport — 38 km away

Nearest Konbini

family_mart Family Mart — 4 min walk

Internet Connectivity

Natural Hazard Assessment

Flood Risk Low Risk
Landslide Risk Moderate
Tsunami Risk Low Risk
Earthquake Hazard Moderate

Unlock hazard data with a free trial

Flood, landslide, tsunami & earthquake risk for this property

3 days free · cancel anytime

Start Free Trial

Map & Street View

Map loading...

Location Accuracy Notice: Although we try to make the map accurate with coordinates or address details provided, the location data is provided by the agent. This map data should be used as reference for the surrounding area foremost.

Location Type Beds Price Land House View

* Sold properties shown for price comparison only. Prices reflect historical sale data.

Location Type Beds Rent/Month Land House View

* Rental prices shown are monthly rates. Contact property owner for current availability.