Back to results 4SLDK Detached House for Sale in Yokohama's Hodogaya Ward

Needs Verification

This listing hasn't been verified recently. Tap to request a priority check!

Know someone who would love this? Gift them a subscription

¥98,000,000

Yabecho, Hodogaya Ward, Yokohama City, Kanagawa Prefecture

神奈川県横浜市戸塚区矢部町

Sign in to save properties

Work with our partners to help you search, evaluate, and purchase property in Japan.

Book a Consultation
Buy House Quiet Area Stadium

Unlock the full description with a free trial

Includes AI translation, hazard data, cost estimates & nearby amenities

3 days free · cancel anytime

Start Free Trial

Spacious Detached Home in Yokohama's Hodogaya Ward

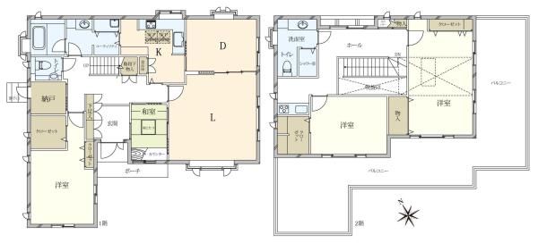
This detached house, built in May 1996, offers a generous living space of 166.72㎡ (approximately 50.43 tsubo) across two stories. The layout is a 4SLDK, providing four bedrooms alongside a living, dining, and kitchen area, ideal for family living. The property sits on a substantial plot of 330.44㎡ (approximately 99.95 tsubo), ensuring ample outdoor space and privacy.

Critical property details from the agent notes include the road access situation: the corner lot has frontage on two sides. To the southeast, a 6.5m wide public road provides 10.1m of frontage, while to the southwest, there is another 6.5m wide road. The property is not subject to a 'position designation'. Furthermore, the equipment includes city gas, public water supply, and a main sewer system. The property is also subject to restrictions under the City Planning Act and other regulations, specifically falling within a Category 1 Height District.

The location is highly convenient, situated within a 5-minute walk from Odoriba Station on the Yokohama Blue Line, offering direct access to central Yokohama. The area is designated under the City Planning Act as an urbanization area and a Category 1 Low-Rise Exclusive Residential Zone, ensuring a quiet, residential environment. The property is currently vacant and ready for occupancy.

The Hodogaya ward area provides a blend of residential calm and urban accessibility. An interesting local fact is that the nearby Kamariyayama area is known for its historical kiln sites, reflecting a deep ceramic tradition. The closest major landmark is the expansive Mitsuzawa Park, a popular sports and recreation complex featuring stadiums and ample green space, easily accessible from the property.

This description was AI-generated from the original Japanese listing and may contain inaccuracies. Please verify details with the source listing.

Summary

Bedrooms: 4
Parking: 1
Year built: 1996
Land size: 330 / 3,557sqft
House size: 167 / 1,795sqft

Short-Term Rental (Minpaku)

Transport

HND

Haneda Airport — 28 km away

Nearby Konbini

Seven Eleven Seven Eleven — 5 min walk

Internet Connectivity

Natural Hazard Assessment

Flood Risk Low Risk
Landslide Risk Moderate
Tsunami Risk Low Risk
Earthquake Hazard Moderate

Unlock hazard data with a free trial

Flood, landslide, tsunami & earthquake risk for this property

3 days free · cancel anytime

Start Free Trial

Purchase Cost & Tax Estimates

Agent fees, acquisition tax, registration costs & annual property tax

Airbnb Revenue Estimate

Projected nightly rate, occupancy & net income for this property

Investment ROI

Annual yield, break-even timeline & 10-year return projection

Map & Street View

Map loading...

Location Accuracy Notice: Although we try to make the map accurate with coordinates or address details provided, the location data is provided by the agent. This map data should be used as reference for the surrounding area foremost.

Location Type Beds Price Land House View

* Sold properties shown for price comparison only. Prices reflect historical sale data.

Location Type Beds Rent/Month Land House View

* Rental prices shown are monthly rates. Contact property owner for current availability.