Back to results 3SK Detached House for Sale in Kawagoe, Saitama
Added 6 days ago
¥140,000,000

Fujimicho, Kawagoe City, Saitama Prefecture

埼玉県川越市富士見町

Buy Move-in Ready Garden Near Station House Corner Lot Parking Suburban

Know someone who would love this? Gift them a subscription

This property has more to show

Earthquake & flood hazard assessment
Purchase cost & tax estimates
Full AI-translated description

Trusted by property buyers worldwide

Start 3-Day Free Trial

$5/month after trial · Cancel anytime

Spacious Detached House in Kawagoe, Saitama

This detached house is located in Fujimicho, Kawagoe City, Saitama Prefecture. The property is within a 10-minute walk from both the Tobu Tojo Line and JR Kawagoe Line's Kawagoe Station, offering convenient access to two train lines. The location is well-served by daily amenities, including a supermarket within a 5-minute walk, a convenience store within a 5-minute walk, and a drugstore within a 6-minute walk.

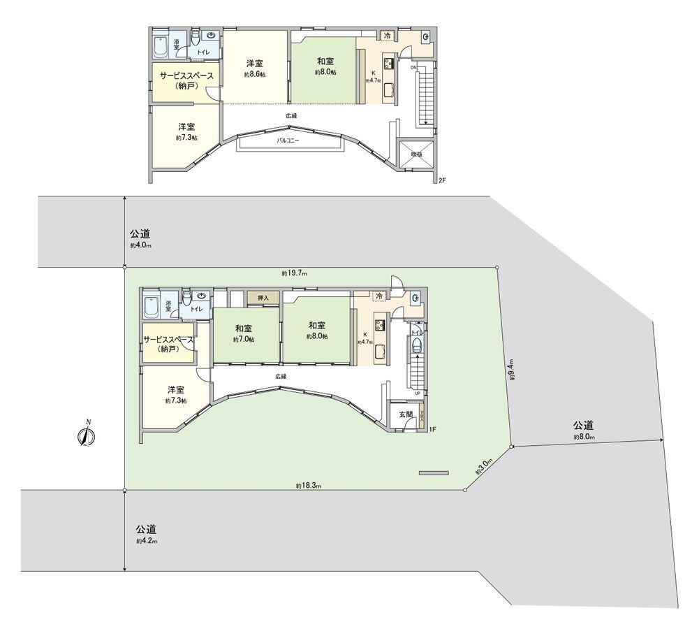
The property sits on a corner lot with frontage on three sides (south, east, and north), ensuring excellent sunlight, ventilation, and natural light. The land area is 230.42 sqm (approximately 69.7 tsubo) and the building area is 183.9 sqm (approximately 55.62 tsubo). The layout is a generous 3SK, with all rooms being 7.0 tatami mats or larger. The house features a south-facing balcony. Parking is available for two vehicles (subject to vehicle type); although it is tandem parking, vehicles can exit from both the south and north sides.

Key features and equipment include a TV monitor intercom. The property underwent exterior wall and roof work with Galvalume steel sheets in April 2021 (Reiwa 3). Utilities include city gas, public water supply, and public sewerage. The property is in a residential area near Kawagoe City Senba Elementary School (4-minute walk) and Kawagoe Daiichi Junior High School (12-minute walk). Fujimicho Park is just a 2-minute walk away.

This description was AI-generated from the original Japanese listing and may contain inaccuracies. Please verify details with the source listing.

Summary

Bedrooms: 3
Parking: 2
Year built: 2006
Land size: 230 / 2,480sqft
House size: 184 / 1,979sqft

Short-Term Rental (Minpaku)

Transport

HND

Haneda Airport — 47 km away

Nearby Konbini

Seven Eleven Seven Eleven — 4 min walk
Family Mart Family Mart — 7 min walk

Internet Connectivity

Natural Hazard Assessment

Hazard data is a subscriber feature

Know the flood, landslide & tsunami risks before you buy

View Plans
¥140,000,000
Purchase Cost & Tax Estimates
Subscribe
Agent fee (3% + tax)¥000,000
Acquisition tax¥000,000
Registration & stamp¥000,000
Property tax (annual)¥00,000/yr
Subscribe to view cost & tax estimates →
Nightly Rate
Occupancy Rate
Max operating days/year
Est. booked nights/year
Gross annual revenue
Expenses breakdown
Cleaning
Platform fees (3%)
Management (20%)
Supplies
Insurance
Utilities
Total expenses
Net annual income
Monthly equivalent

Actual revenue varies by location, property quality, season, and management. Adjust sliders to model different scenarios.

Renovation Budget
Annual Rental Income

Auto-filled from Airbnb estimate

Purchase price
Renovation
Transaction costs
Total investment
Property tax
Insurance
Maintenance
Annual yield
Break-even
5-year return
10-year return
0 yr5101520+

Estimates only. Actual returns depend on rental demand, management quality, renovation scope, and market conditions. Adjust sliders to model scenarios.

Fujimicho, Kawagoe City, Saitama Prefecture

埼玉県川越市富士見町

Get Started

Sign in to save properties

Map & Street View

Map loading...

Location Accuracy Notice: Although we try to make the map accurate with coordinates or address details provided, the location data is provided by the agent. This map data should be used as reference for the surrounding area foremost.

Location Type Beds Price Land House View

* Sold properties shown for price comparison only. Prices reflect historical sale data.

Location Type Beds Rent/Month Land House View

* Rental prices shown are monthly rates. Contact property owner for current availability.