Back to results New 2SLDK House in Meguro, Tokyo - Completion 2026

Needs Verification

This listing hasn't been verified recently. Tap to request a priority check!

Know someone who would love this? Gift them a subscription

¥158,000,000

Yagumo 2-chome, Meguro-ku, Tokyo

東京都目黒区八雲2丁目

Sign in to save properties

Work with our partners to help you search, evaluate, and purchase property in Japan.

Book a Consultation
Buy Near Station House New Build Gas Heating/Cooking Modern House

Unlock the full description with a free trial

Includes AI translation, hazard data, cost estimates & nearby amenities

3 days free · cancel anytime

Start Free Trial

Newly Built Detached House in Tokyo's Meguro Ward

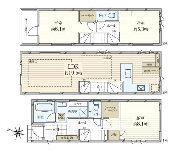
This newly constructed detached house, scheduled for completion in August 2026, offers a modern living space in the desirable residential area of Yagumo, Meguro, Tokyo. The property features a 2SLDK layout with a total floor area of 91.49 sqm (approx. 27.67 tsubo) spread over three stories, built on a land area of 65.12 sqm (approx. 19.69 tsubo). The house is constructed with a wooden frame and is currently in an unfinished state, with handover anticipated in late September 2026.

Critical property details from the agent notes include the road access situation: the property fronts a single 6-meter wide public road to the northwest, with a frontage of 4.1 meters, and is not subject to a designated location specification. The building confirmation number is 25UDI1K建02431. The property is equipped with city gas, public water supply, and main sewerage. It is subject to several urban planning regulations: it is located within a quasi-fire prevention zone, a Category 2 Height District, a cultural and educational district, and falls under the Jiyugaoka-dori Yagumo Area District Plan.

The location provides excellent access, being a 12-minute walk from Toritsu-daigaku Station on the Tokyu Toyoko Line and a 17-minute walk from the fashionable Jiyugaoka Station, served by both the Tokyu Toyoko and Oimachi Lines. The area around Jiyugaoka is renowned for its European-inspired cafes, boutique shops, and sophisticated atmosphere, often referred to as "Little Europe" in Tokyo. A notable nearby landmark is the historic Gotoh Museum, which houses a significant collection of Japanese and East Asian art, including national treasures.

This description was AI-generated from the original Japanese listing and may contain inaccuracies. Please verify details with the source listing.

Summary

Bedrooms: 2
Parking: 1
Year built: 2026
Land size: 65 / 701sqft
House size: 91 / 985sqft

Short-Term Rental (Minpaku)

Transport

HND

Haneda Airport — 12 km away

Nearby Konbini

Lawson Lawson — 2 min walk

Internet Connectivity

Natural Hazard Assessment

Flood Risk Low Risk
Landslide Risk Moderate
Tsunami Risk Low Risk
Earthquake Hazard Moderate

Unlock hazard data with a free trial

Flood, landslide, tsunami & earthquake risk for this property

3 days free · cancel anytime

Start Free Trial

Purchase Cost & Tax Estimates

Agent fees, acquisition tax, registration costs & annual property tax

Airbnb Revenue Estimate

Projected nightly rate, occupancy & net income for this property

Investment ROI

Annual yield, break-even timeline & 10-year return projection

Map & Street View

Map loading...

Location Accuracy Notice: Although we try to make the map accurate with coordinates or address details provided, the location data is provided by the agent. This map data should be used as reference for the surrounding area foremost.

Location Type Beds Price Land House View

* Sold properties shown for price comparison only. Prices reflect historical sale data.

Location Type Beds Rent/Month Land House View

* Rental prices shown are monthly rates. Contact property owner for current availability.