Back to results 2LDK Apartment for Sale in Tosu, Saga | 56.42 sqm

Needs Verification

This listing hasn't been verified recently. Tap to request a priority check!

Know someone who would love this? Gift them a subscription

¥7,800,000

Motomachi, Tosu City, Saga Prefecture

佐賀県鳥栖市元町

Sign in to save properties

Work with our partners to help you search, evaluate, and purchase property in Japan.

Book a Consultation
Buy Move-in Ready Near Station Apartment

Unlock the full description with a free trial

Includes AI translation, hazard data, cost estimates & nearby amenities

3 days free · cancel anytime

Start Free Trial

Spacious 2LDK Apartment in Tosu with Excellent Natural Light

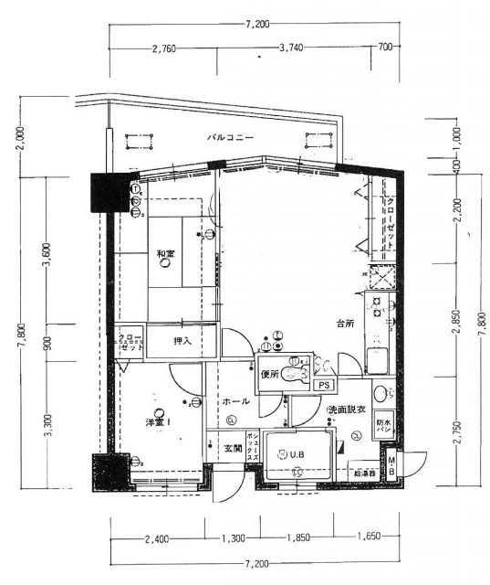
This well-maintained apartment is located on the 5th floor of an 11-story building in Tosu City, Saga Prefecture. The property offers a comfortable living space with a wall-core exclusive area of 56.42 sqm (approximately 17.06 tsubo), featuring a 2LDK layout that includes two bedrooms, a living room, and a dining-kitchen area. A balcony of 8.28 sqm provides additional outdoor space.

The building is constructed with a sturdy SRC (Steel Reinforced Concrete) structure and includes modern conveniences such as an auto-lock security system and an elevator. The apartment is equipped with a toilet featuring a bidet-style washlet, a shower-equipped vanity, an IH cooking heater, and a dedicated indoor space for a washing machine. Special notes from the agent highlight that the unit benefits from excellent natural light. The property is currently occupied, and the handover timing is negotiable. The management fee is 8,500 yen per month, with a repair reserve fund of 6,800 yen per month. There is no available parking space with this unit.

The apartment is situated in a convenient area of Tosu City. A notable local landmark is the Tosu Premium Outlets, one of the largest outlet shopping malls in Kyushu, offering a wide range of international and domestic brands. The property is within a 13-minute walk from JR Tosu Station on the Kagoshima Main Line, providing excellent access to major cities like Fukuoka and Kumamoto.

This description was AI-generated from the original Japanese listing and may contain inaccuracies. Please verify details with the source listing.

Summary

Bedrooms: 2
Year built: 1991
House size: 56 / 607sqft
Balcony size: 8 / 86sqft

Short-Term Rental (Minpaku)

Transport

FUK

Fukuoka Airport — 24 km away

Nearest Konbini

seven_eleven Seven Eleven — 4 min walk

Internet Connectivity

Natural Hazard Assessment

Flood Risk Low Risk
Landslide Risk Moderate
Tsunami Risk Low Risk
Earthquake Hazard Moderate

Unlock hazard data with a free trial

Flood, landslide, tsunami & earthquake risk for this property

3 days free · cancel anytime

Start Free Trial

Purchase Cost & Tax Estimates

Agent fees, acquisition tax, registration costs & annual property tax

Airbnb Revenue Estimate

Projected nightly rate, occupancy & net income for this property

Investment ROI

Annual yield, break-even timeline & 10-year return projection

Map & Street View

Map loading...

Location Accuracy Notice: Although we try to make the map accurate with coordinates or address details provided, the location data is provided by the agent. This map data should be used as reference for the surrounding area foremost.

Location Type Beds Price Land House View

* Sold properties shown for price comparison only. Prices reflect historical sale data.

Location Type Beds Rent/Month Land House View

* Rental prices shown are monthly rates. Contact property owner for current availability.