Back to results 5SLDK Reinforced Concrete House for Sale in Suginami, Tokyo

Verified Listing

This property was checked recently and confirmed to still be available. Tap for details.

Verified Listing

This property has been verified in the last month. Our system regularly checks listings to ensure they are still available.

Last verified: April 8, 2026

Know someone who would love this? Gift them a subscription

¥348,000,000

Momoi 1-chome, Suginami Ward, Tokyo

東京都杉並区桃井1丁目

Sign in to save properties

Work with our partners to help you search, evaluate, and purchase property in Japan.

Book a Consultation
Buy Move-in Ready Garden House Solar Panels Corner Lot Roof Terrace Aquarium Reinforced Concrete

Unlock the full description with a free trial

Includes AI translation, hazard data, cost estimates & nearby amenities

3 days free · cancel anytime

Start Free Trial

Spacious Reinforced Concrete Detached House in Suginami's Momoi

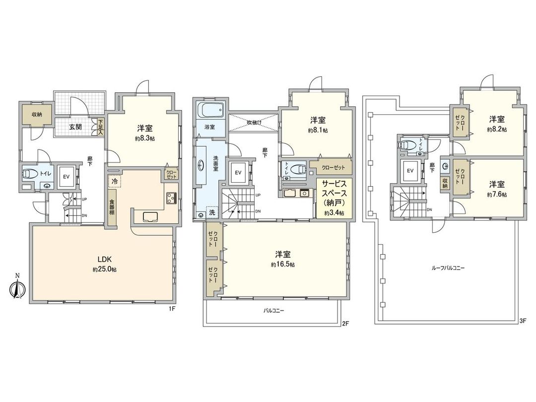
This substantial detached house, located in the quiet residential neighborhood of Momoi 1-chome, Suginami Ward, Tokyo, offers a generous living space of 201.12 sqm (approximately 60.83 tsubo) on a corner plot of 238.34 sqm (approximately 72.09 tsubo). Built in March 2006 by major contractor Taisei Corporation, the property is a robust three-story reinforced concrete structure. The layout is a functional 5SLDK, where the 'S' denotes a storage room, plus a car space for two vehicles (subject to vehicle type confirmation).

The home features a large, bright living-dining-kitchen (LDK) of approximately 25 tatami mats with two-sided windows for excellent sunlight and ventilation. The L-shaped system kitchen is designed for efficient workflow. The second floor includes a spacious Western-style room of about 16.5 tatami mats, and all rooms are equipped with storage and are at least 7 tatami mats in size. A notable feature is the expansive rooftop balcony on the third floor, measuring approximately 56.1 sqm. Each floor is equipped with a toilet, and a home elevator is installed for convenience. The property is all-electric and includes a solar power generation system. A large-scale renovation was completed at the end of October 2025.

The location is highly convenient, with Ogikubo Station (serving the JR Chuo Line, Sobu Line, Tokyo Metro Marunouchi Line, and Tozai Line) approximately a 15-minute walk away, providing access to multiple train lines. Daily amenities are within easy reach, including a Lawson Store 100 (2-minute walk), a My Basket supermarket (6-minute walk), a Seven-Eleven (6-minute walk), a drugstore (6-minute walk), and Momoi Daiichi Elementary School (5-minute walk). The property is situated in a Category I Low-Rise Exclusive Residential Zone on a corner lot. Important notes from the agent: The floor area ratio has been relaxed by 10% due to the corner lot regulations. If the building is fire-resistant or quasi-fire-resistant within the quasi-fire prevention zone, a further 10% relaxation applies. The property is currently vacant.

Viewings are conducted by appointment only. The agent notes: "We are holding property viewing sessions by appointment. Please feel free to contact us. Toll-free: 0120-133-304. Please note that staff are not stationed on-site. Please contact us in advance with your desired date and time before visiting. [Residential address] Suginami-ku, Momoi 1-23."

This description was AI-generated from the original Japanese listing and may contain inaccuracies. Please verify details with the source listing.

Summary

Bedrooms: 5
Parking: 2
Year built: 2006
Land size: 238 / 2,565sqft
House size: 201 / 2,165sqft
Balcony size: 56 / 603sqft

Short-Term Rental (Minpaku)

Transport

HND

Haneda Airport — 23 km away

Nearby Konbini

Lawson Store 100 Lawson Store 100 — 1 min walk

Internet Connectivity

Natural Hazard Assessment

Flood Risk Low Risk
Landslide Risk Moderate
Tsunami Risk Low Risk
Earthquake Hazard Moderate

Unlock hazard data with a free trial

Flood, landslide, tsunami & earthquake risk for this property

3 days free · cancel anytime

Start Free Trial

Purchase Cost & Tax Estimates

Agent fees, acquisition tax, registration costs & annual property tax

Airbnb Revenue Estimate

Projected nightly rate, occupancy & net income for this property

Investment ROI

Annual yield, break-even timeline & 10-year return projection

Map & Street View

Map loading...

Location Accuracy Notice: Although we try to make the map accurate with coordinates or address details provided, the location data is provided by the agent. This map data should be used as reference for the surrounding area foremost.

Location Type Beds Price Land House View

* Sold properties shown for price comparison only. Prices reflect historical sale data.

Location Type Beds Rent/Month Land House View

* Rental prices shown are monthly rates. Contact property owner for current availability.