Back to results New 4LDK All-Electric House in Chikugo City, Fukuoka
Marked sold 3 days ago
¥29,990,000

Kumano, Chikugo City, Fukuoka Prefecture

福岡県筑後市大字熊野

Sold House Quiet Area

Know someone who would love this? Gift them a subscription

This property has more to show

Earthquake & flood hazard assessment
Purchase cost & tax estimates
Full AI-translated description

Trusted by property buyers worldwide

Start 3-Day Free Trial

$5/month after trial · Cancel anytime

A New All-Electric Family Home in Chikugo City

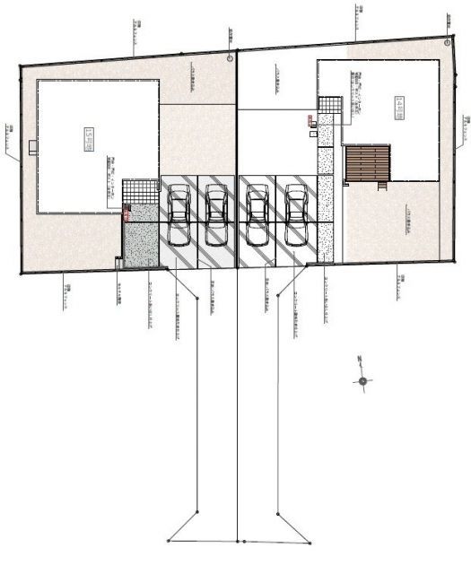
This brand new, 4LDK single-story house is currently under construction in the quiet residential neighborhood of Chikugo City, Fukuoka. The property is situated on a generous 332.46 sqm land parcel, which includes a 67.72 sqm access lane section. The home itself features a spacious 84.18 sqm floor area designed for modern, efficient living.

The property is equipped with a comprehensive all-electric system. Key features include an IH cooking heater, system kitchen with a counter kitchen, dishwasher and dish dryer, a bathroom with a shower/dresser, drying function, and reheatable bath feature, a washlet toilet, walk-in closet, shutters, double-paned glass, and a TV monitor intercom. The road frontage is on a 3-meter wide public road to the south.

Special notes highlight the property's excellent sunlight and its location in a quiet residential area. It comes with free parking for two vehicles. The property is within the school district for Hainuzuka Elementary School (approx. 10-minute walk) and Hainuzuka Junior High School (approx. 8-minute walk). Access to public transport is convenient, with the Nishi-Tetsu Bus "Gengano" stop just a 2-minute walk away, and JR Hainuzuka Station within a 22-minute walk.

The surrounding area of Chikugo City is part of the larger Fukuoka Prefecture, known for its rich history and agricultural production, particularly for its delicious strawberries. A significant local landmark is the beautiful Kōra Taisha Shrine, a historic Shinto shrine with deep cultural roots in the region, located a short drive away.

This description was AI-generated from the original Japanese listing and may contain inaccuracies. Please verify details with the source listing.

Summary

Bedrooms: 4
Parking: 2
Year built: 2026
Land size: 332 / 3,579sqft
House size: 84 / 906sqft

Short-Term Rental (Minpaku)

Transport

FUK

Fukuoka Airport — 40 km away

Nearby Konbini

Mini Stop Mini Stop — 12 min walk
Seven Eleven Seven Eleven — 13 min walk
Lawson Lawson — 16 min walk

Internet Connectivity

Natural Hazard Assessment

Hazard data is a subscriber feature

Know the flood, landslide & tsunami risks before you buy

View Plans
¥29,990,000

Kumano, Chikugo City, Fukuoka Prefecture

福岡県筑後市大字熊野

Get Started

Sign in to save properties

Map & Street View

Map loading...

Location Accuracy Notice: Although we try to make the map accurate with coordinates or address details provided, the location data is provided by the agent. This map data should be used as reference for the surrounding area foremost.

Location Type Beds Price Land House View

* Sold properties shown for price comparison only. Prices reflect historical sale data.

Location Type Beds Rent/Month Land House View

* Rental prices shown are monthly rates. Contact property owner for current availability.