Back to results 5LDK Apartment for Sale in Naha City, Okinawa - 90.11 sqm
Added 6 days ago

Know someone who would love this? Gift them a subscription

¥17,000,000

Oroku 1-chome, Naha City, Okinawa Prefecture

沖縄県那覇市小禄1丁目

Sign in to save properties

Work with our partners to help you search, evaluate, and purchase property in Japan.

Book a Consultation
Buy Move-in Ready Near Station Apartment Pet Friendly Parking Reinforced Concrete

Unlock the full description with a free trial

Includes AI translation, hazard data, cost estimates & nearby amenities

3 days free · cancel anytime

Start Free Trial

Property Overview: Ryusei Dai 2 Mansion, Naha City

This property is a 5LDK apartment located in Oroku, Naha City, Okinawa Prefecture, with a floor area of 90.11 square meters. The building is a reinforced concrete structure with a total of 5 units, situated on the first floor of a three-story building. The property was built in July 1971.

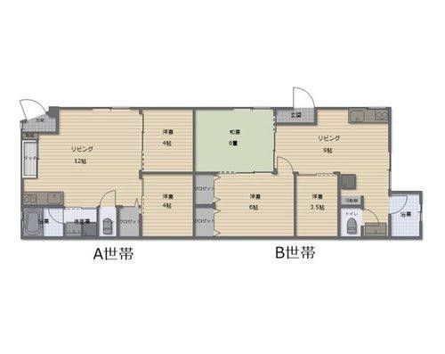
The property is currently occupied and consists of two units: Room 101 (2LDK) and Room 102 (3LDK), which are being used as a two-generation household. According to the agent, these two rooms can be renovated into a single unit. The property was renovated in August 2015, with interior renovations including walls and floors.

The property features include: gas type (other), public water supply, sewer drainage, two or more toilets, flooring, corner room, and a gas stove. The property has parking available and pets are negotiable. The land is under an old law leasehold with a monthly land rent of 6,750 yen, with a remaining lease period of 30 years and 10 months.

The location offers access to the Okinawa Urban Monorail (Yui Rail) from Onoyama Park Station (16 minutes on foot) and Oroku Station (19 minutes on foot). The property is in a first-class medium-to-high-rise residential zone.

This description was AI-generated from the original Japanese listing and may contain inaccuracies. Please verify details with the source listing.

Summary

Bedrooms: 5
Parking: 1
Year built: 1971
House size: 90 / 970sqft

Short-Term Rental (Minpaku)

Transport

OKA

Naha Airport — 4 km away

Nearby Konbini

Family Mart Family Mart — 7 min walk

Internet Connectivity

Natural Hazard Assessment

Flood Risk Low Risk
Landslide Risk Moderate
Tsunami Risk Low Risk
Earthquake Hazard Moderate

Unlock hazard data with a free trial

Flood, landslide, tsunami & earthquake risk for this property

3 days free · cancel anytime

Start Free Trial

Purchase Cost & Tax Estimates

Agent fees, acquisition tax, registration costs & annual property tax

Airbnb Revenue Estimate

Projected nightly rate, occupancy & net income for this property

Investment ROI

Annual yield, break-even timeline & 10-year return projection

Map & Street View

Map loading...

Location Accuracy Notice: Although we try to make the map accurate with coordinates or address details provided, the location data is provided by the agent. This map data should be used as reference for the surrounding area foremost.

Location Type Beds Price Land House View

* Sold properties shown for price comparison only. Prices reflect historical sale data.

Location Type Beds Rent/Month Land House View

* Rental prices shown are monthly rates. Contact property owner for current availability.