Back to results 4LDK Detached House for Sale in Owariasahi, Aichi

Verified Listing

This property was checked recently and confirmed to still be available. Tap for details.

Verified Listing

This property has been verified in the last month. Our system regularly checks listings to ensure they are still available.

Last verified: April 12, 2026

Know someone who would love this? Gift them a subscription

¥18,000,000

Asahigaoka, Asahigaoka-cho, Owariasahi City, Aichi Prefecture

愛知県尾張旭市旭ケ丘町旭ケ丘

Sign in to save properties

Work with our partners to help you search, evaluate, and purchase property in Japan.

Book a Consultation
Buy House Parking Rural Suburban Quiet Area Ghibli Park

Unlock the full description with a free trial

Includes AI translation, hazard data, cost estimates & nearby amenities

3 days free · cancel anytime

Start Free Trial

Detached House in Asahigaoka, Owariasahi City

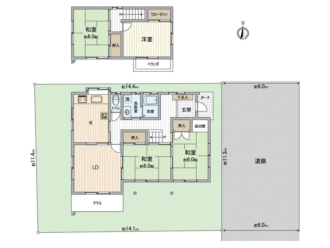
This property is a detached house located in Asahigaoka, Owariasahi City, Aichi Prefecture. The house has a total floor area of 91.9 square meters (approximately 27.79 tsubo) and sits on a land plot of 161.91 square meters (approximately 48.97 tsubo). Built in December 1981, it is a two-story wooden structure. The layout is a 4LDK configuration, offering four rooms plus a living, dining, and kitchen area.

The property is currently vacant. Access is available via the Meitetsu Seto Line, with Sango Station a 23-minute walk away and Owariasahi Station an 11-minute bus ride plus a 1-minute walk from the Asahigaoka-cho Nagabori bus stop. The front road has a width of over 6 meters. One car parking space is available, subject to the vehicle type. The land is designated as Category I Low-Rise Exclusive Residential Zone within a city planning area. The building-to-land ratio is 60% and the floor area ratio is 100%. Land rights are ownership, and the land category is residential.

The neighborhood offers convenient amenities within walking distance, including a supermarket (Baruro Shiroyama store) approximately 16 minutes away, a park (Okute Nishi Park) about 12 minutes away, a clinic (Arakawa Clinic) around 11 minutes away, and an elementary school (Asahigaoka Elementary School) within an 8-minute walk. Other nearby facilities include a Lawson convenience store and a Seven-Eleven.

This description was AI-generated from the original Japanese listing and may contain inaccuracies. Please verify details with the source listing.

Summary

Bedrooms: 4
Parking: 1
Year built: 1981
Land size: 162 / 1,743sqft
House size: 92 / 989sqft

Short-Term Rental (Minpaku)

Transport

Nearest Konbini

lawson Lawson — 7 min walk

Internet Connectivity

Natural Hazard Assessment

Flood Risk Low Risk
Landslide Risk Moderate
Tsunami Risk Low Risk
Earthquake Hazard Moderate

Unlock hazard data with a free trial

Flood, landslide, tsunami & earthquake risk for this property

3 days free · cancel anytime

Start Free Trial

Purchase Cost & Tax Estimates

Agent fees, acquisition tax, registration costs & annual property tax

Airbnb Revenue Estimate

Projected nightly rate, occupancy & net income for this property

Investment ROI

Annual yield, break-even timeline & 10-year return projection

Map & Street View

Map loading...

Location Accuracy Notice: Although we try to make the map accurate with coordinates or address details provided, the location data is provided by the agent. This map data should be used as reference for the surrounding area foremost.

Location Type Beds Price Land House View

* Sold properties shown for price comparison only. Prices reflect historical sale data.

Location Type Beds Rent/Month Land House View

* Rental prices shown are monthly rates. Contact property owner for current availability.