Back to results New Build House in Kokubunji, Tokyo - 3SLDK, 98.54 sqm

Verified Listing

This property was checked recently and confirmed to still be available. Tap for details.

Verified Listing

This property has been verified in the last month. Our system regularly checks listings to ensure they are still available.

Last verified: March 31, 2026

Know someone who would love this? Gift them a subscription

¥73,800,000

2-chome, Nishi-Motomachi, Kokubunji City, Tokyo

東京都国分寺市西元町2丁目

Sign in to save properties

Work with our partners to help you search, evaluate, and purchase property in Japan.

Book a Consultation
Buy Move-in Ready Garden House New Build Parking Suburban Quiet Area Sanrio Puroland

Unlock the full description with a free trial

Includes AI translation, hazard data, cost estimates & nearby amenities

3 days free · cancel anytime

Start Free Trial

New Construction Detached House in Kokubunji's Quiet Residential Area

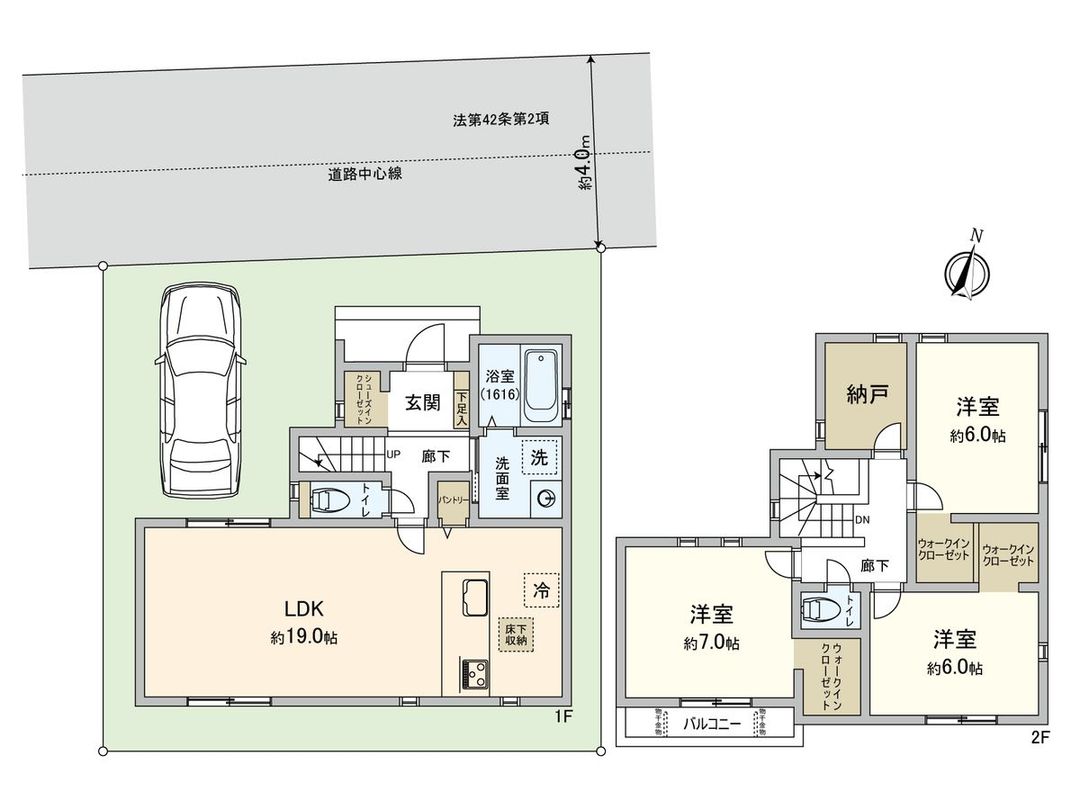
This newly built detached house, scheduled for completion in July 2026, is located in a quiet residential zone within the First Category Low-Rise Residential Exclusive District of Kokubunji City, Tokyo. The property offers a total floor area of 98.54 sqm (approximately 29.8 tsubo) on a land area of 104.37 sqm (approximately 31.57 tsubo), with an additional approximately 35.17 sqm of private road. The layout is a spacious 3SLDK, featuring a generous approximately 19-jo LDK (living-dining-kitchen).

Key features and equipment include a bathroom dryer, double-glazed windows, a TV monitor intercom, and a dishwasher. Each bedroom is equipped with a walk-in closet, and the home also includes a storage room and a shoe-in closet, providing ample storage space. All rooms are approximately 6 jo or larger. One car parking space is available (subject to vehicle type). The property is conveniently located within a 10-minute walk from JR Chuo Main Line Nishi-Kokubunji Station, a supermarket, and both elementary and junior high schools, making it an ideal environment for raising children.

This description was AI-generated from the original Japanese listing and may contain inaccuracies. Please verify details with the source listing.

Summary

Bedrooms: 3
Parking: 1
Year built: 2026
Land size: 104 / 1,123sqft
House size: 99 / 1,061sqft

Short-Term Rental (Minpaku)

Transport

HND

Haneda Airport — 32 km away

Nearby Konbini

Seven Eleven Seven Eleven — 4 min walk

Internet Connectivity

Natural Hazard Assessment

Flood Risk Low Risk
Landslide Risk Moderate
Tsunami Risk Low Risk
Earthquake Hazard Moderate

Unlock hazard data with a free trial

Flood, landslide, tsunami & earthquake risk for this property

3 days free · cancel anytime

Start Free Trial

Purchase Cost & Tax Estimates

Agent fees, acquisition tax, registration costs & annual property tax

Airbnb Revenue Estimate

Projected nightly rate, occupancy & net income for this property

Investment ROI

Annual yield, break-even timeline & 10-year return projection

Map & Street View

Map loading...

Location Accuracy Notice: Although we try to make the map accurate with coordinates or address details provided, the location data is provided by the agent. This map data should be used as reference for the surrounding area foremost.

Location Type Beds Price Land House View

* Sold properties shown for price comparison only. Prices reflect historical sale data.

Location Type Beds Rent/Month Land House View

* Rental prices shown are monthly rates. Contact property owner for current availability.