Back to results 5LDK Detached House for Sale in Fuchu, Hiroshima
Added 3 days ago
¥51,000,000

1-chome Kakago, Fuchu Town, Aki District, Hiroshima Prefecture

広島県安芸郡府中町鹿籠1丁目

Buy Move-in Ready Garden Near Station House Suburban Quiet Area

Know someone who would love this? Gift them a subscription

This property has more to show

Earthquake & flood hazard assessment
Purchase cost & tax estimates
Full AI-translated description

Trusted by property buyers worldwide

Start 3-Day Free Trial

$5/month after trial · Cancel anytime

Spacious 5LDK Family Home in Fuchu, Hiroshima

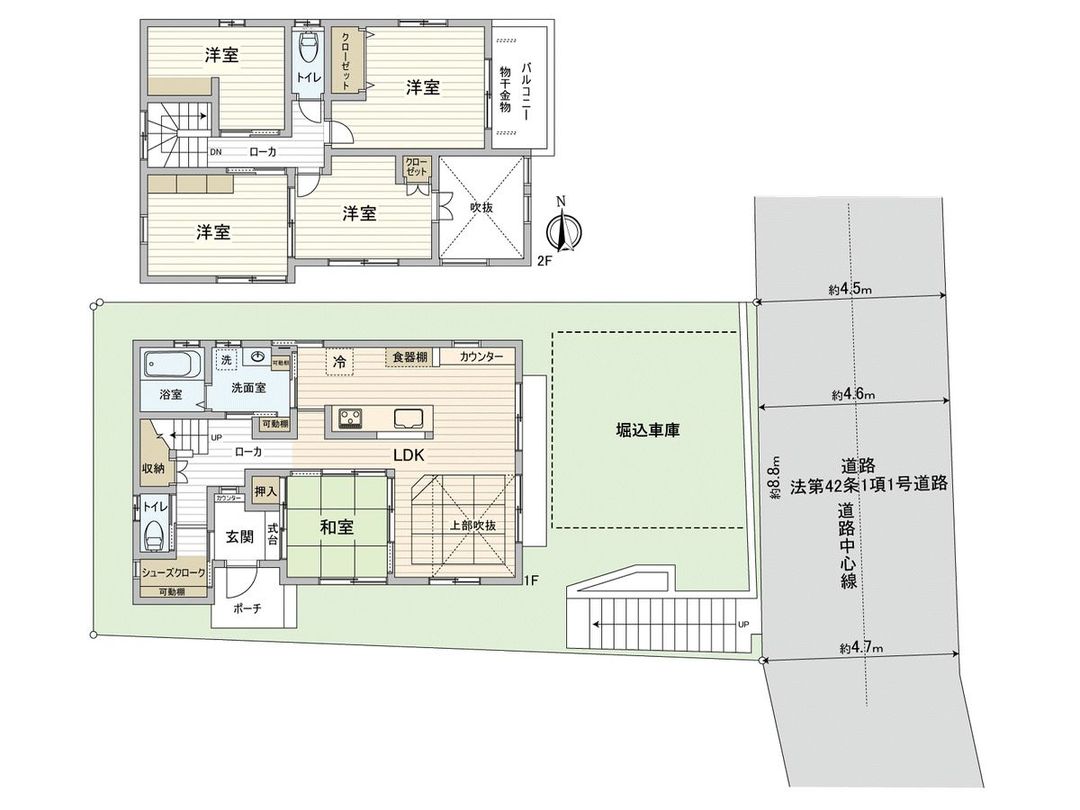
This detached house, built in January 2014, offers a comfortable and well-designed living space in the quiet residential area of Fuchu Town, Aki District, Hiroshima. The property features a generous total floor area of 105.57 sqm (approximately 31.93 tsubo) on a land plot of 141.26 sqm (approximately 42.73 tsubo). The two-story wooden structure is designed with family living and efficient movement in mind.

Key features of the building include an open and airy double-height ceiling (吹抜け) that enhances the sense of space. The use of wood and plastered walls throughout creates a warm, natural atmosphere. The property benefits from a road level difference, providing a feeling of openness. The entrance hall is designed with two-way access and includes a shoe closet, offering ample storage. The island kitchen is equipped with a three-burner hob, making it efficient for cooking and easy for multiple people to work and converse. The Japanese-style room (和室) can be integrated with the living-dining-kitchen (LDK) area. Conveniently, there is a toilet on each floor, and the LDK, washroom, and corridors are laid out to allow for excellent circulation and movement within the home. The space above the sunken garage (堀越車庫) can be utilized as a garden area, perfect for gardening or drying laundry.

The location is family-friendly, with Fuchu Minami Elementary School and Fuchu Midorigaoka Junior High School both approximately an 11-minute walk away, ensuring a safe and comfortable commute for children. Access is available via the Sanyo Main Line, with bus service from Hiroshima Station (16 minutes by bus to Kakago stop, then a 7-minute walk), or a 10-minute walk from Mukainada Station, and a 20-minute walk from Tenjingawa Station. Nearby amenities include supermarkets, parks, clinics, and convenience stores within walking distance.

This description was AI-generated from the original Japanese listing and may contain inaccuracies. Please verify details with the source listing.

Summary

Bedrooms: 5
Year built: 2014
Land size: 141 / 1,521sqft
House size: 106 / 1,136sqft

Short-Term Rental (Minpaku)

Transport

FUK

Fukuoka Airport — 209 km away

Nearby Konbini

Seven Eleven Seven Eleven — 4 min walk
Family Mart Family Mart — 8 min walk
Poplar Poplar — 8 min walk

Internet Connectivity

Natural Hazard Assessment

Hazard data is a subscriber feature

Know the flood, landslide & tsunami risks before you buy

View Plans
¥51,000,000
Purchase Cost & Tax Estimates
Subscribe
Agent fee (3% + tax)¥000,000
Acquisition tax¥000,000
Registration & stamp¥000,000
Property tax (annual)¥00,000/yr
Subscribe to view cost & tax estimates →
Nightly Rate
Occupancy Rate
Max operating days/year
Est. booked nights/year
Gross annual revenue
Expenses breakdown
Cleaning
Platform fees (3%)
Management (20%)
Supplies
Insurance
Utilities
Total expenses
Net annual income
Monthly equivalent

Actual revenue varies by location, property quality, season, and management. Adjust sliders to model different scenarios.

Renovation Budget
Annual Rental Income

Auto-filled from Airbnb estimate

Purchase price
Renovation
Transaction costs
Total investment
Property tax
Insurance
Maintenance
Annual yield
Break-even
5-year return
10-year return
0 yr5101520+

Estimates only. Actual returns depend on rental demand, management quality, renovation scope, and market conditions. Adjust sliders to model scenarios.

1-chome Kakago, Fuchu Town, Aki District, Hiroshima Prefecture

広島県安芸郡府中町鹿籠1丁目

Get Started

Sign in to save properties

Map & Street View

Map loading...

Location Accuracy Notice: Although we try to make the map accurate with coordinates or address details provided, the location data is provided by the agent. This map data should be used as reference for the surrounding area foremost.

Location Type Beds Price Land House View

* Sold properties shown for price comparison only. Prices reflect historical sale data.

Location Type Beds Rent/Month Land House View

* Rental prices shown are monthly rates. Contact property owner for current availability.