Back to results Modern 2022-Built House with Rooftop in Kishiwada, Osaka

Verified Listing

This property was checked recently and confirmed to still be available. Tap for details.

Verified Listing

This property has been verified in the last month. Our system regularly checks listings to ensure they are still available.

Last verified: April 4, 2026

Modern 2022-Built House with Rooftop in Kishiwada, Osaka

Know someone who would love this? Gift them a subscription

¥35,800,000

Harukinakamachi, Kishiwada, Osaka Prefecture

大阪府岸和田市春木中町

Sign in to save properties

Work with our partners to help you search, evaluate, and purchase property in Japan.

Book a Consultation
Buy House Suburban Near School

Unlock the full description with a free trial

Includes AI translation, hazard data, cost estimates & nearby amenities

3 days free · cancel anytime

Start Free Trial

Modern Two-Story House with Rooftop Terrace in Kishiwada

This recently built two-story detached house, constructed in January 2022, offers a modern and practical living space in the Kishiwada area of Osaka Prefecture. The property is conveniently located just an 8-minute walk from Haruki Station on the Nankai Main Line, providing easy access to public transport.

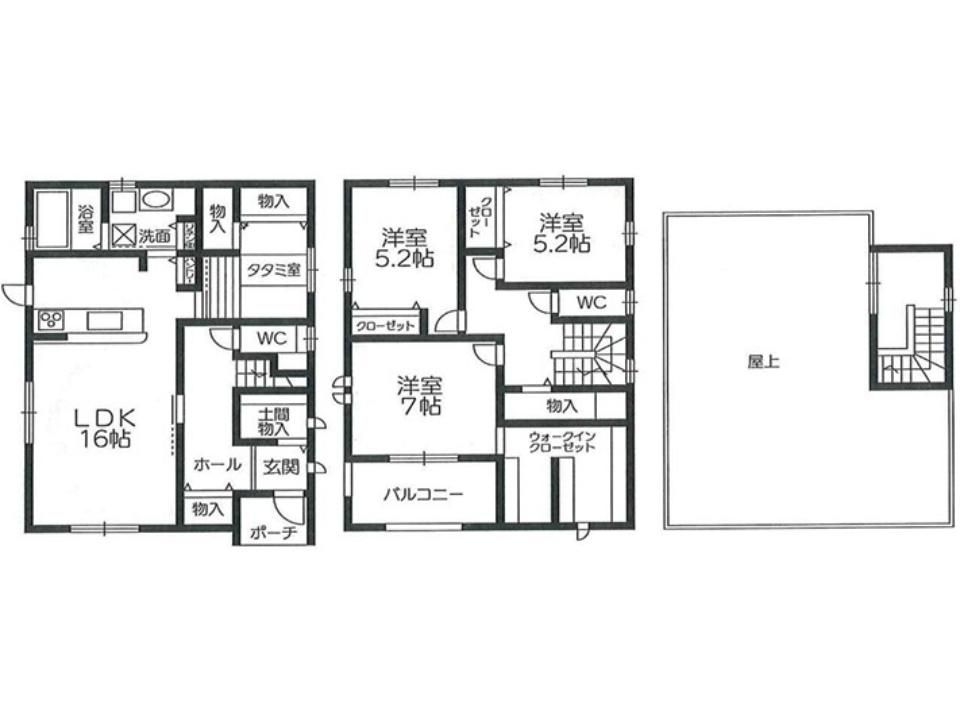
The interior layout is designed for family living, featuring a spacious approximately 16-jo (roughly 26 sqm) LDK (living, dining, kitchen) area. The plan includes three Western-style bedrooms, allowing for easy allocation of private rooms for family members. A versatile tatami space on the first floor adds flexibility for various uses. The house is noted for its abundant storage solutions, including an earthen floor storage area (土間収納) and a walk-in closet (WIC). An indoor space for a washing machine is provided, which can help extend the appliance's lifespan.

Key features and equipment of the property include a system kitchen, counter kitchen, IH cooktop, gas cooktop, bath with reheating function, bathroom dryer, washbasin with shower, washlet toilet seat, walk-in closet, storage in all rooms, TV monitor-equipped doorphone, and underfloor heating. The house is all-electric (オール電化), barrier-free, south-facing, and comes with a parking space. Other listed equipment includes public water supply, city gas, sewer system, dedicated bath, gas cooktop, three-burner stove, hot water supply, underfloor storage, indoor washing machine space, balcony, flooring, closets, shoe-in closet, pantry, two or more toilets, a rooftop terrace, and all rooms feature two-sided lighting and full flooring.

The property is situated in a residential environment with Kishiwada City Haruki Elementary School just a 2-minute walk (160m) away. Additional nearby amenities include Haruki Junior High School (9-minute walk), Sandy Kishiwada Haruki Store (5-minute walk), and La Park Kishiwada (9-minute walk). The lot exceeds 41 tsubo (approx. 137.10 sqm) and includes space for two or more cars (vehicle type dependent). The building has a seismic rating of 3. The property is currently vacant and ready for immediate handover.

This description was AI-generated from the original Japanese listing and may contain inaccuracies. Please verify details with the source listing.

Summary

Bedrooms: 3
Parking: 2
Year built: 2022
Land size: 137 / 1,476sqft
House size: 116 / 1,248sqft

Short-Term Rental (Minpaku)

Transport

Nearest Konbini

sunkus Sunkus — 6 min walk

Internet Connectivity

Natural Hazard Assessment

Flood Risk Low Risk
Landslide Risk Moderate
Tsunami Risk Low Risk
Earthquake Hazard Moderate

Unlock hazard data with a free trial

Flood, landslide, tsunami & earthquake risk for this property

3 days free · cancel anytime

Start Free Trial

Purchase Cost & Tax Estimates

Agent fees, acquisition tax, registration costs & annual property tax

Airbnb Revenue Estimate

Projected nightly rate, occupancy & net income for this property

Investment ROI

Annual yield, break-even timeline & 10-year return projection

Map & Street View

Map loading...

Location Accuracy Notice: Although we try to make the map accurate with coordinates or address details provided, the location data is provided by the agent. This map data should be used as reference for the surrounding area foremost.

Location Type Beds Price Land House View

* Sold properties shown for price comparison only. Prices reflect historical sale data.

Location Type Beds Rent/Month Land House View

* Rental prices shown are monthly rates. Contact property owner for current availability.