Welcome to the new beta version of our site. Updates are in progress.
teritoru
Book Consultation →
* teritoru is a licensed partner broker
Added 6 days ago
Buy House Move-in Ready Terrace Parking Modern House Suburban

A Modern Family Home in Fukuoka's Minami Ward

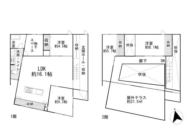
This spacious detached house, built in April 2013, offers a comfortable and well-equipped living environment in Fukuoka City. The property features a generous 4LDK layout, providing ample space for family life across a total floor area of 108.68㎡. The land size is a substantial 150.90㎡, offering plenty of outdoor space.

The property comes with a comprehensive range of facilities and equipment, including running water, sewer system, underfloor heating, an IH cooking heater, electricity, a bidet toilet with warm water, a reheating function, a system kitchen, a dishwasher, a terrace, a walk-in closet, and an intercom with a TV monitor. Special notes on the road access detail that the property faces a one-way public road to the southwest, with a width of 4 meters and a frontage of 13.2 meters. Parking is available for two vehicles.

Located in the Nonome 2-chome area of Fukuoka's Minami Ward, this residence is situated in a peaceful residential neighborhood. The area is well-connected, with the Nishitetsu Tenjin Ōmuta Line's Ōhashi Station within a 27-minute walk. An interesting local fact is that the nearby Ōhashi area is known for its historical significance as a former post-station town on the Nagasaki Kaidō road. The closest major landmark is the Fukuoka PayPay Dome, a multi-purpose stadium and major event venue located approximately 5 kilometers away.

Summary

Bedrooms: 4
Parking: 2
Year built: 2013
Land size: 151 / 1,624sqft
House size: 109 / 1,170sqft

Closest Railway Line / Station:

Tenjin Omuta Line / Ohashi (2.05 km)

Nearest konbini:

seven_eleven convenience store Seven Eleven - 4 minute(s) walk

Closest International Airport:

Fukuoka Airport (FUK) - 6 km away

¥50,000,000

Nonome 2-chome, Minami Ward, Fukuoka City, Fukuoka Prefecture

福岡県福岡市南区野多目2丁目

Sign in to save properties

Map & Street View

Map loading...

Location Accuracy Notice: Although we try to make the map accurate with coordinates or address details provided, the location data is provided by the agent. This map data should be used as reference for the surrounding area foremost.

Similar Properties

Minami, Fukuoka Prefecture

Buy House Move-in Ready Large Property Garden House Gas Heating/Cooking Parking Quiet Area
6
438m²
201m²
family_mart convenience store Family Mart - 5 min walk

Iizuka, Fukuoka Prefecture

Buy House Move-in Ready House New Build Modern House Parking
4
220m²
104m²
family_mart convenience store Family Mart - 4 min walk

Iizuka, Fukuoka Prefecture

Buy House Move-in Ready Near Station House New Build Corner Lot Modern House Parking
4
218m²
102m²
seven_eleven convenience store Seven Eleven - 3 min walk

Nishi, Fukuoka Prefecture

Buy House Move-in Ready Garden House Modern House Parking Suburban Quiet Area
3
326m²
94m²
seven_eleven convenience store Seven Eleven - 3 min walk

Minami, Fukuoka Prefecture

Buy House Move-in Ready House New Build Suburban Quiet Area
4
166m²
103m²
family_mart convenience store Family Mart - 7 min walk

Minami, Fukuoka Prefecture

Buy Apartment Move-in Ready Near Station Apartment Pet Friendly Modern House
3
78m²
seven_eleven convenience store Seven Eleven - 5 min walk

8 views left

Subscribe for unlimited access