Back to results Traditional Log-Frame 4DK House on 806 sqm Lot in Oi, Fukui

Needs Verification

This listing hasn't been verified recently. Tap to request a priority check!

Contact Agent

Honjo, Oi Town, Oi District, Fukui Prefecture

福井県大飯郡おおい町本郷

Buy Traditional House House Akiya Bank Corner Lot Needs Renovation Well Water Septic System Rural Quiet Area

Know someone who would love this? Gift them a subscription

This property has more to show

Earthquake & flood hazard assessment
Purchase cost & tax estimates
Full AI-translated description

Trusted by property buyers worldwide

Start 3-Day Free Trial

$5/month after trial · Cancel anytime

A Traditional Japanese Home with Log-Frame Construction in Oi, Fukui

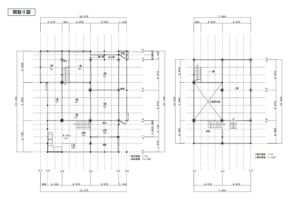
This property is a traditional Japanese house located in the "田の字" (ta no ji) style layout, featuring a classic log-frame construction. The home utilizes well water drawn from an on-site well, though it is not currently connected to the municipal water supply. The toilet is a pit latrine style, installed outside the main house. Prospective buyers should note that repairs are needed for the bath and toilet facilities, and some additional minor repairs are required, with the costs to be borne by the occupant.

According to the agent's notes, the property's surrounding amenities include the town hall at 1km, a clinic at 0.6km, a fire station at 8km, a nursery school at 0.45km, an elementary school at 0.6km, and a junior high school at 2.4km. The house itself is a 2-storey wooden structure with a generous total floor area of approximately 220.79 square meters, situated on a spacious 806 square meter corner lot. The layout is a 4DK, featuring a south-facing orientation, a system kitchen, two toilet areas, a bath with re-heating function, and a monitor-equipped intercom. It is suitable for multi-generational living and includes parking for two or more vehicles. The property is located in a quiet residential area with access to city gas.

The home is located in the Honjo area of Oi Town, Fukui Prefecture, a region known for its serene countryside and coastal scenery. An interesting local fact is that Oi Town is part of the Wakasa Bay area, famous for its high-quality seafood, particularly snow crab. The closest major landmark is the scenic Mihama Plateau, offering beautiful views of the surrounding mountains and the Sea of Japan, and is a popular spot for hiking and enjoying nature.

This description was AI-generated from the original Japanese listing and may contain inaccuracies. Please verify details with the source listing.

Summary

Bedrooms: 4
Parking: 2
Land size: 806 / 8,676sqft
House size: 221 / 2,377sqft

Short-Term Rental (Minpaku)

Transport

ITM

Osaka International Airport — 79 km away

Nearby Konbini

Family Mart Family Mart — 7 min walk
Mini Stop Mini Stop — 15 min walk
Lawson Lawson — 43 min walk

Internet Connectivity

Natural Hazard Assessment

Hazard data is a subscriber feature

Know the flood, landslide & tsunami risks before you buy

View Plans
Consultation required

Honjo, Oi Town, Oi District, Fukui Prefecture

福井県大飯郡おおい町本郷

Get Started

Sign in to save properties

Map & Street View

Map loading...

Location Accuracy Notice: Although we try to make the map accurate with coordinates or address details provided, the location data is provided by the agent. This map data should be used as reference for the surrounding area foremost.

Location Type Beds Price Land House View

* Sold properties shown for price comparison only. Prices reflect historical sale data.

Location Type Beds Rent/Month Land House View

* Rental prices shown are monthly rates. Contact property owner for current availability.