Back to results 2021 4LDK House in Itoshima with Solar & Long-Term Warranty

Needs Verification

This listing hasn't been verified recently. Tap to request a priority check!

Know someone who would love this? Gift them a subscription

¥39,800,000

Inadome, Shima, Itoshima City, Fukuoka Prefecture

福岡県糸島市志摩稲留

Sign in to save properties

Work with our partners to help you search, evaluate, and purchase property in Japan.

Book a Consultation
Buy Garden House Quiet Area

Unlock the full description with a free trial

Includes AI translation, hazard data, cost estimates & nearby amenities

3 days free · cancel anytime

Start Free Trial

Modern Family Home in Itoshima with Long-Term Quality Certification

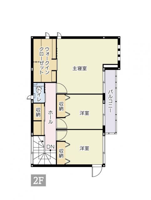
This contemporary single-family house, built in April 2021, offers a spacious 113.26 sqm (approximately 34.26 tsubo) of living space across two stories, set on a generous 180.12 sqm (approximately 54.48 tsubo) plot. The 4LDK layout provides ample room for family life. The property is equipped with comprehensive facilities: water supply, side ditches, air conditioning, an IH cooking heater, electricity, two toilets, a bath dryer with reheat function, a system kitchen, a dishwasher/dryer, lighting fixtures included, double-glazed windows, a 24-hour ventilation system, a garden, underfloor storage, a walk-in closet, a dimple key, a TV monitor intercom, and a fire alarm.

Special notes detail the road access: a one-sided road to the south, 6 meters wide, is a public road with a frontage of 12.7 meters. The property benefits from good sunlight and is situated in a quiet residential area. It includes parking for two vehicles at no additional cost. Further remarks highlight that Hakata is accessible by bus in about one hour. The home was constructed by Sekisui Heim using light-gauge steel framing and comes with significant warranties: a 30-year guarantee, a 60-year long-term support system, and a 10-year equipment warranty that is transferable. It is fitted with a solar power generation system for economical living and a 24-hour ventilation system that eliminates the need for air conditioning on the first floor. Additional features include a stainless steel roof, Long-Term Excellent Housing certification, all-electric appliances, and a location within a quiet subdivision noted for excellent sunlight and ventilation. The subdivision also includes a park.

The property is located in the Inadome area of Shima, Itoshima City, Fukuoka Prefecture. Itoshima is renowned for its beautiful coastline, agricultural produce, and relaxed lifestyle, blending rural charm with proximity to the city. An interesting local fact is that Itoshima is famous for its strawberries, particularly the "Amaou" variety, which are some of the most prized in Japan. The closest major landmark is the iconic Keya no Oto, a large, naturally formed sea cave and one of Japan's three great sea caves, located along the Itoshima coast and accessible for tours.

This description was AI-generated from the original Japanese listing and may contain inaccuracies. Please verify details with the source listing.

Summary

Bedrooms: 4
Parking: 2
Year built: 2021
Land size: 180 / 1,939sqft
House size: 113 / 1,219sqft

Short-Term Rental (Minpaku)

Transport

FUK

Fukuoka Airport — 26 km away

Nearby Konbini

Seven Eleven Seven Eleven — 12 min walk

Internet Connectivity

Natural Hazard Assessment

Flood Risk Low Risk
Landslide Risk Moderate
Tsunami Risk Low Risk
Earthquake Hazard Moderate

Unlock hazard data with a free trial

Flood, landslide, tsunami & earthquake risk for this property

3 days free · cancel anytime

Start Free Trial

Purchase Cost & Tax Estimates

Agent fees, acquisition tax, registration costs & annual property tax

Airbnb Revenue Estimate

Projected nightly rate, occupancy & net income for this property

Investment ROI

Annual yield, break-even timeline & 10-year return projection

Map & Street View

Map loading...

Location Accuracy Notice: Although we try to make the map accurate with coordinates or address details provided, the location data is provided by the agent. This map data should be used as reference for the surrounding area foremost.

Location Type Beds Price Land House View

* Sold properties shown for price comparison only. Prices reflect historical sale data.

Location Type Beds Rent/Month Land House View

* Rental prices shown are monthly rates. Contact property owner for current availability.