Back to results Spacious 3SLDK Reinforced Concrete House in Sapporo's Toyohira Ward

Verified Listing

This property was checked recently and confirmed to still be available. Tap for details.

Verified Listing

This property has been verified in the last month. Our system regularly checks listings to ensure they are still available.

Last verified: April 13, 2026

Know someone who would love this? Gift them a subscription

¥135,000,000

Tsukisamu Nishi 5-jo 8-chome, Toyohira-ku, Sapporo-shi, Hokkaido

北海道札幌市豊平区月寒西五条8丁目

Sign in to save properties

Work with our partners to help you search, evaluate, and purchase property in Japan.

Book a Consultation
Buy Move-in Ready Garden House Parking Suburban Quiet Area Stadium Reinforced Concrete

Unlock the full description with a free trial

Includes AI translation, hazard data, cost estimates & nearby amenities

3 days free · cancel anytime

Start Free Trial

Spacious Detached Home in Sapporo's Tsukisamu Area

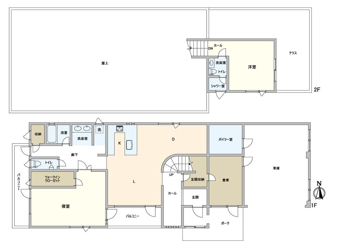
This substantial property, located in Sapporo's Toyohira Ward, offers a generous living space of 229.13 sqm (approx. 69.31 tsubo) on a large plot of 637.31 sqm (approx. 192.78 tsubo). Built in December 2005, the house is a two-story reinforced concrete structure designed with comfort and modern living in mind.

The home features a 3SLDK layout, where the 'S' denotes a service room or storage space. The living and dining area is notably spacious with high ceilings, creating an open and airy atmosphere. High-quality materials are used throughout, including marble for some of the interior flooring and wall finishes. The property incorporates a barrier-free design with minimal level changes for ease of movement.

Key equipment and features include underfloor heating, a dishwasher, and a touchless kitchen faucet. The exterior walls are finished with removable dry-system tiles. For energy efficiency, the house is fitted with high-insulation, gas-filled double-glazed windows and wooden sashes. A large terrace is situated on the second floor, providing outdoor space. The home is well-equipped with bathrooms, including a shower room, on both the first and second floors. The entrance and entrance hall convey a sense of luxury.

For vehicles, there is ample parking space, including a built-in garage. The paved driveway within the property is equipped with a road heating system. The front road has a width of over 6 meters.

The location is convenient, with Tsukisamu Chuo Station on the Sapporo Municipal Toho Subway Line approximately a 15-minute walk away. Nearby amenities include a supermarket, a park, a hospital, and an elementary school all within a short walking distance.

This description was AI-generated from the original Japanese listing and may contain inaccuracies. Please verify details with the source listing.

Summary

Bedrooms: 3
Parking: 1
Year built: 2005
Land size: 637 / 6,860sqft
House size: 229 / 2,466sqft

Short-Term Rental (Minpaku)

Transport

CTS

New Chitose Airport — 37 km away

Nearest Konbini

seicomart Seicomart — 4 min walk

Internet Connectivity

Natural Hazard Assessment

Flood Risk Low Risk
Landslide Risk Moderate
Tsunami Risk Low Risk
Earthquake Hazard Moderate

Unlock hazard data with a free trial

Flood, landslide, tsunami & earthquake risk for this property

3 days free · cancel anytime

Start Free Trial

Purchase Cost & Tax Estimates

Agent fees, acquisition tax, registration costs & annual property tax

Airbnb Revenue Estimate

Projected nightly rate, occupancy & net income for this property

Investment ROI

Annual yield, break-even timeline & 10-year return projection

Map & Street View

Map loading...

Location Accuracy Notice: Although we try to make the map accurate with coordinates or address details provided, the location data is provided by the agent. This map data should be used as reference for the surrounding area foremost.

Location Type Beds Price Land House View

* Sold properties shown for price comparison only. Prices reflect historical sale data.

Location Type Beds Rent/Month Land House View

* Rental prices shown are monthly rates. Contact property owner for current availability.