Back to results New Build 4LDK House in Nerima, Tokyo - South Oizumi

Verified Listing

This property was checked recently and confirmed to still be available. Tap for details.

Verified Listing

This property has been verified in the last month. Our system regularly checks listings to ensure they are still available.

Last verified: March 31, 2026

Know someone who would love this? Gift them a subscription

¥70,900,000

Minamioizumi 1-chome, Nerima-ku, Tokyo

東京都練馬区南大泉1丁目

Sign in to save properties

Work with our partners to help you search, evaluate, and purchase property in Japan.

Book a Consultation
Buy Move-in Ready Garden House New Build Solar Panels Parking Suburban

Unlock the full description with a free trial

Includes AI translation, hazard data, cost estimates & nearby amenities

3 days free · cancel anytime

Start Free Trial

New Construction Detached House in Nerima's South Oizumi

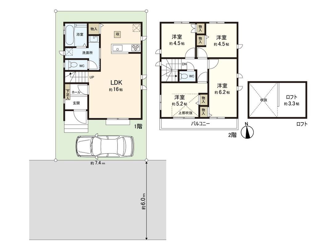
This newly built detached house in Nerima Ward's South Oizumi 1-chome offers a modern and flexible living space designed for contemporary lifestyles. Scheduled for completion in April 2026, the property features a land area of approximately 85.47 square meters and a building area of 84.87 square meters, arranged in a practical 4LDK layout. The house is designed to allow for floor plan modifications to suit different life stages, providing adaptability for growing families or changing needs.

Key features of the building include a south-facing balcony ensuring good sunlight exposure, and a room of approximately 5.2 tatami mats equipped with a loft and an upper-floor void space, adding character and extra storage. The property is equipped with a system kitchen that includes a dishwasher, and each room has its own storage space. The bathroom is fitted with a window for easy ventilation and natural light.

The location is within a quiet residential area with a favorable living environment. The property fronts a road with a width of over 6 meters. It is situated within a Category I Low-Rise Exclusive Residential Zone, ensuring a peaceful neighborhood. Conveniences are close at hand, with Inageya Nerima Minamioizumi Store supermarket approximately a 3-minute walk (220m) away, and a Seven-Eleven convenience store about a 5-minute walk (390m). The property also includes a parking space.

The area of Nerima is known for its spacious residential neighborhoods and parks. An interesting local fact is that Nerima Ward is famously the birthplace of the Japanese anime industry, with many pioneering studios established there in the post-war era. For a major tourist attraction, the historic and beautiful Shakujii Park, featuring a large pond, ancient temple ruins, and extensive walking paths, is located a short distance away and offers a serene escape from city life.

This description was AI-generated from the original Japanese listing and may contain inaccuracies. Please verify details with the source listing.

Summary

Bedrooms: 4
Parking: 1
Year built: 2026
Land size: 85 / 920sqft
House size: 85 / 914sqft

Short-Term Rental (Minpaku)

Transport

HND

Haneda Airport — 28 km away

Nearest Konbini

seven_eleven Seven Eleven — 4 min walk

Internet Connectivity

Natural Hazard Assessment

Flood Risk Low Risk
Landslide Risk Moderate
Tsunami Risk Low Risk
Earthquake Hazard Moderate

Unlock hazard data with a free trial

Flood, landslide, tsunami & earthquake risk for this property

3 days free · cancel anytime

Start Free Trial

Purchase Cost & Tax Estimates

Agent fees, acquisition tax, registration costs & annual property tax

Airbnb Revenue Estimate

Projected nightly rate, occupancy & net income for this property

Investment ROI

Annual yield, break-even timeline & 10-year return projection

Map & Street View

Map loading...

Location Accuracy Notice: Although we try to make the map accurate with coordinates or address details provided, the location data is provided by the agent. This map data should be used as reference for the surrounding area foremost.

Location Type Beds Price Land House View

* Sold properties shown for price comparison only. Prices reflect historical sale data.

Location Type Beds Rent/Month Land House View

* Rental prices shown are monthly rates. Contact property owner for current availability.