Back to results 1K Apartment for Sale in Tachikawa, Tokyo - Raseed Tachikawa Serencia

Needs Verification

This listing hasn't been verified recently. Tap to request a priority check!

Know someone who would love this? Gift them a subscription

¥18,200,000

1-chome Nishikicho, Tachikawa City, Tokyo

東京都立川市錦町1丁目

Sign in to save properties

Work with our partners to help you search, evaluate, and purchase property in Japan.

Book a Consultation
Buy Near Station Apartment Modern House Terrace Sanrio Puroland

Unlock the full description with a free trial

Includes AI translation, hazard data, cost estimates & nearby amenities

3 days free · cancel anytime

Start Free Trial

Modern Compact Living in Tachikawa: Raseed Tachikawa Serencia

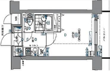
This property is a compact and modern apartment located in the vibrant city of Tachikawa, Tokyo. The unit features a 1K layout with a total private floor area of 21.39 square meters, offering an efficient living space suitable for singles or couples. A notable feature is the inclusion of a balcony, providing 3.87 square meters of additional outdoor space for relaxation or small-scale gardening.

The building itself is an 8-story reinforced concrete (RC) structure built in August 2009, ensuring modern construction standards. It is managed by a fully entrusted management company with a patrol-based superintendent system. Monthly fees include a management fee of 7,200 yen and a repair reserve fund of 8,795 yen. The property is currently tenanted, and the transaction is handled under an exclusive dedicated brokerage arrangement.

This description was AI-generated from the original Japanese listing and may contain inaccuracies. Please verify details with the source listing.

Summary

Year built: 2009
House size: 21 / 230sqft
Balcony size: 4 / 43sqft

Short-Term Rental (Minpaku)

Transport

HND

Haneda Airport — 36 km away

Nearby Konbini

Seven Eleven Seven Eleven — 3 min walk

Internet Connectivity

Natural Hazard Assessment

Flood Risk Low Risk
Landslide Risk Moderate
Tsunami Risk Low Risk
Earthquake Hazard Moderate

Unlock hazard data with a free trial

Flood, landslide, tsunami & earthquake risk for this property

3 days free · cancel anytime

Start Free Trial

Purchase Cost & Tax Estimates

Agent fees, acquisition tax, registration costs & annual property tax

Airbnb Revenue Estimate

Projected nightly rate, occupancy & net income for this property

Investment ROI

Annual yield, break-even timeline & 10-year return projection

Map & Street View

Map loading...

Location Accuracy Notice: Although we try to make the map accurate with coordinates or address details provided, the location data is provided by the agent. This map data should be used as reference for the surrounding area foremost.

Location Type Beds Price Land House View

* Sold properties shown for price comparison only. Prices reflect historical sale data.

Location Type Beds Rent/Month Land House View

* Rental prices shown are monthly rates. Contact property owner for current availability.