Back to results 3LDK Detached House for Sale in Kasuga, Fukuoka

Verified Listing

This property was checked recently and confirmed to still be available. Tap for details.

Verified Listing

This property has been verified in the last month. Our system regularly checks listings to ensure they are still available.

Last verified: April 13, 2026

Know someone who would love this? Gift them a subscription

¥35,800,000

7-chome, Shimoshiruisui Minami, Kasuga City, Fukuoka Prefecture

福岡県春日市下白水南7丁目

Sign in to save properties

Work with our partners to help you search, evaluate, and purchase property in Japan.

Book a Consultation
Buy Move-in Ready Garden House Corner Lot Parking Suburban Quiet Area

Unlock the full description with a free trial

Includes AI translation, hazard data, cost estimates & nearby amenities

3 days free · cancel anytime

Start Free Trial

Detached House in Kasuga City, Fukuoka

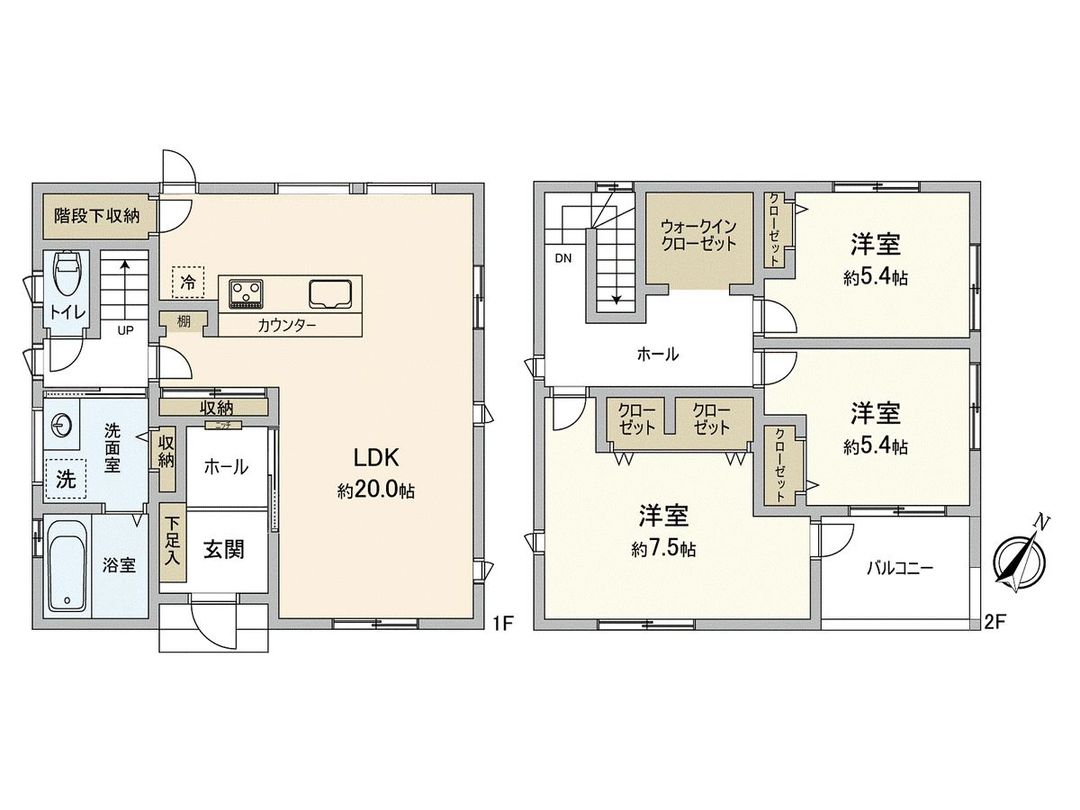
This detached house, located in Kasuga City, Fukuoka Prefecture, offers a comfortable living space with a total floor area of 100.19 sqm (approximately 30.3 tsubo) on a corner lot of 139.46 sqm (approximately 42.18 tsubo). Built in March 2013, it is a two-story wooden structure with a galvanized steel alloy sheet roof. The property is situated in a quiet residential neighborhood.

The layout is a 3LDK. A key feature is the spacious combined living, dining, and kitchen (LDK) area, which is over 20 tatami mats in size and features solid wood flooring. The kitchen is a counter-style design facing the living area and includes a dishwasher. A back entrance is conveniently located off the kitchen. All rooms are equipped with built-in storage, and there is additional under-stair storage in the kitchen area. On the second floor, you will find a walk-in family closet. An external storage shed is also present on the premises.

The property benefits from its corner location with frontage on both the southwest and southeast sides. Parking is available for two vehicles, with the potential for three depending on the car models. The exterior walls on the southwest and southeast sides are finished with galvanized steel (galvalume).

Access is convenient, with Hakata-Minami Station on the Hakata-Minami Line approximately a 10-minute walk away, and the Nishitetsu Bus stop "Kamishiruisui Jutchome" a 4-minute walk. Nearby amenities include a supermarket (Lumière Kasuga) within a 12-minute walk, a convenience store (Seven-Eleven) 3 minutes away, and Kasuga Nishi Elementary School within an 8-minute walk.

Special Notes: Structure: Two-story wooden building with alloy-plated steel sheet roofing. Other legal restrictions: The property is in a Building Standards Act Article 22 zone and a Category 1 15-meter height control district. The land is zoned as Category 1 Medium-to-High Rise Exclusive Residential District, within an urbanization promotion area. The building-to-land ratio is 60% with a floor area ratio of 200%. Road frontage is approximately 4.5 meters on both the southeast side (public road) and southwest side (public road).

This description was AI-generated from the original Japanese listing and may contain inaccuracies. Please verify details with the source listing.

Summary

Bedrooms: 3
Parking: 2
Year built: 2013
Land size: 139 / 1,501sqft
House size: 100 / 1,078sqft

Short-Term Rental (Minpaku)

Transport

FUK

Fukuoka Airport — 7 km away

Nearest Konbini

lawson Lawson — 4 min walk

Internet Connectivity

Natural Hazard Assessment

Flood Risk Low Risk
Landslide Risk Moderate
Tsunami Risk Low Risk
Earthquake Hazard Moderate

Unlock hazard data with a free trial

Flood, landslide, tsunami & earthquake risk for this property

3 days free · cancel anytime

Start Free Trial

Purchase Cost & Tax Estimates

Agent fees, acquisition tax, registration costs & annual property tax

Airbnb Revenue Estimate

Projected nightly rate, occupancy & net income for this property

Investment ROI

Annual yield, break-even timeline & 10-year return projection

Map & Street View

Map loading...

Location Accuracy Notice: Although we try to make the map accurate with coordinates or address details provided, the location data is provided by the agent. This map data should be used as reference for the surrounding area foremost.

Location Type Beds Price Land House View

* Sold properties shown for price comparison only. Prices reflect historical sale data.

Location Type Beds Rent/Month Land House View

* Rental prices shown are monthly rates. Contact property owner for current availability.