Back to results 2DK Single-Story House for Sale in Tannowa, Osaka

Verified Listing

This property was checked recently and confirmed to still be available. Tap for details.

Verified Listing

This property has been verified in the last month. Our system regularly checks listings to ensure they are still available.

Last verified: April 6, 2026

Know someone who would love this? Gift them a subscription

¥2,950,000

Tannowa 4237-8, Misaki Town, Sennan District, Osaka Prefecture

大阪府泉南郡岬町淡輪4237-8

Sign in to save properties

Work with our partners to help you search, evaluate, and purchase property in Japan.

Book a Consultation
Buy Renovation Project House Rural Quiet Area Eco Friendly

Unlock the full description with a free trial

Includes AI translation, hazard data, cost estimates & nearby amenities

3 days free · cancel anytime

Start Free Trial

Affordable Single-Story Home in Osaka's Minami Ward

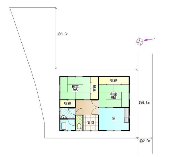
This property is a single-story wooden house built in July 1985, offering a 2DK layout with a total floor area of 60.88 square meters. It is situated on a 117.12 square meter plot of land in Tannowa, Misaki Town, Sennan District, Osaka Prefecture. The property is currently vacant and ready for viewing.

The home features a system kitchen with a counter and an IH cooktop. The bathroom is equipped with a reheating function and a dryer. Additional amenities include a shower-equipped vanity, a washlet toilet seat, a walk-in closet, storage in all rooms, a TV monitor-equipped doorphone, and underfloor heating. Key features of the property are that it is all-electric, barrier-free, south-facing, and includes parking.

The location offers convenient access to daily needs. Tannowa Station on the Nankai Main Line is approximately a 14-minute walk away, providing train connectivity. Tannowa Elementary School is within a 700-meter radius, about a 9-minute walk. The property is also noted to be eligible for a free renovation estimate.

This description was AI-generated from the original Japanese listing and may contain inaccuracies. Please verify details with the source listing.

Summary

Bedrooms: 2
Year built: 1985
Land size: 117 / 1,261sqft
House size: 61 / 655sqft

Short-Term Rental (Minpaku)

Transport

KIX

Kansai International Airport — 12 km away

Nearby Konbini

Seven Eleven Seven Eleven — 16 min walk

Internet Connectivity

Natural Hazard Assessment

Flood Risk Low Risk
Landslide Risk Moderate
Tsunami Risk Low Risk
Earthquake Hazard Moderate

Unlock hazard data with a free trial

Flood, landslide, tsunami & earthquake risk for this property

3 days free · cancel anytime

Start Free Trial

Purchase Cost & Tax Estimates

Agent fees, acquisition tax, registration costs & annual property tax

Airbnb Revenue Estimate

Projected nightly rate, occupancy & net income for this property

Investment ROI

Annual yield, break-even timeline & 10-year return projection

Map & Street View

Map loading...

Location Accuracy Notice: Although we try to make the map accurate with coordinates or address details provided, the location data is provided by the agent. This map data should be used as reference for the surrounding area foremost.

Location Type Beds Price Land House View

* Sold properties shown for price comparison only. Prices reflect historical sale data.

Location Type Beds Rent/Month Land House View

* Rental prices shown are monthly rates. Contact property owner for current availability.