Welcome to the new beta version of our site. Updates are in progress.
teritoru
Book Consultation →
* teritoru is a licensed partner broker

Verified Listing

This property has been verified in the last three months. Our system regularly checks listings to ensure they are still available.

Last verified: December 1, 2025

Buy Business Gas Heating/cooking Near Station Suburban

Commercial Property in Nonoichi City

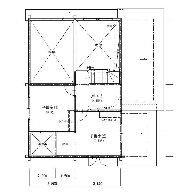
This commercial property in Nonoichi City, Ishikawa Prefecture, offers a prime location for businesses looking to establish a presence in the area. The building features a steel-frame structure with a total floor area of 200.11 square meters spread over two stories. Built in April 1974, the property sits on a 296.24-square-meter plot in a secondary residential zone, providing a balance of commercial and residential surroundings.

The property is conveniently located within a 4-minute walk from Kanazawa Institute of Technology Station, making it easily accessible for employees and clients alike. Nonoichi City is known for its blend of urban convenience and natural beauty, with the nearby Tedori River offering scenic walking paths and recreational opportunities.

One interesting fact about the area is its proximity to the historic city of Kanazawa, just a short drive away. Kanazawa is famous for its well-preserved Edo-era districts, Kenrokuen Garden (one of Japan's three great gardens), and the 21st Century Museum of Contemporary Art. This commercial property benefits from being close to both local amenities and major cultural attractions.

Summary

Year built: 1974
Land size: 296 / 3,189sqft
House size: 200 / 2,154sqft

Closest Railway Line / Station:

Ishikawa Line / Nonoichi Koudaimae (0.48 km)

Nearest konbini:

family_mart convenience store Family Mart - 3 minute(s) walk

Closest International Airport:

Chubu Centrair International Airport (NGO) - 187 km away

¥45,000,000

Takamachi, Nonoichi City, Ishikawa Prefecture

石川県野々市市高橋町

Book a Consult

Sign in to save properties

View Original Listing: Requires subscription. Japanese language usually needed.

Book a Consult: Consultation with an English-speaking broker.

Map & Street View

Map loading...

Location Accuracy Notice: Although we try to make the map accurate with coordinates or address details provided, the location data is provided by the agent. This map data should be used as reference for the surrounding area foremost.

Similar Properties

Kanazawa, Ishikawa Prefecture

Buy House Move-in Ready House New Build Parking Suburban Quiet Area
3
104m²
94m²
seven_eleven convenience store Seven Eleven - 13 min walk

Kanazawa, Ishikawa Prefecture

Buy House Move-in Ready House New Build Modern House Parking Suburban Quiet Area
3
115m²
92m²
circle_k convenience store Circle K - 4 min walk

Kanazawa, Ishikawa Prefecture

Buy House Move-in Ready House New Build Ecocute Parking
4
142m²
105m²
lawson convenience store Lawson - 2 min walk

Hakusan, Ishikawa Prefecture

Buy House Move-in Ready Garden House Gas Heating/Cooking Modern House Parking Quiet Area
3
336m²
125m²
seven_eleven convenience store Seven Eleven - 29 min walk

Kanazawa, Ishikawa Prefecture

Buy House Move-in Ready House New Build Parking Suburban Quiet Area
3
126m²
101m²
lawson convenience store Lawson - 2 min walk

Kanazawa, Ishikawa Prefecture

Buy House Move-in Ready Garden Near Station House Solar Panels Ecocute Renovated Parking Storage Shed Suburban Quiet Area
3
496m²
110m²
seven_eleven convenience store Seven Eleven - 7 min walk

8 views left

Subscribe for unlimited access