Back to results Spacious 6SLDK Detached House in Fukuoka's Nishi Ward
Added 4 days ago
¥150,000,000

1-chome Toyohama, Nishi Ward, Fukuoka City, Fukuoka Prefecture

福岡県福岡市西区豊浜1丁目

Buy Move-in Ready Garden House Parking Suburban Quiet Area Eco Friendly Stadium

Know someone who would love this? Gift them a subscription

Spacious Detached House in a Quiet Residential Area of Fukuoka

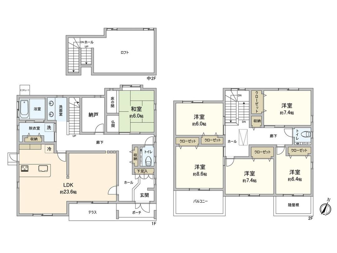
This detached house, located in the quiet residential neighborhood of Toyohama 1-chome in Fukuoka City's Nishi Ward, offers a generous living space of 187 sqm (approximately 56.56 tsubo) on a 248.14 sqm (approximately 75.06 tsubo) plot. Built in December 2010 by Showa Construction as a custom-built home, the property features a 6SLDK layout, where the 'S' denotes a storage/service room.

The house is designed for bright, comfortable living. The south-facing living-dining-kitchen (LDK) area is over 20 tatami mats in size, ensuring a luminous interior. The first-floor living room and hallway boast a high ceiling of approximately 3.4 meters. On the second floor, there are three south-facing Western-style rooms, with the north-eastern room featuring a sloped ceiling for an open feel. A convenient loft space on the intermediate floor provides additional storage, complemented by a useful storage room ideal for remote work or ironing, and a capacious attic storage area. The south side of the property includes a terrace and a garden.

Key equipment and features include an all-electric home system, an EV charging outlet, a face-to-face system kitchen with an integrated water purifier faucet and a dishwasher/dryer, a bathroom ventilation dryer, a double-bowl vanity unit for convenience, and toilets on each floor. The property can accommodate parking for up to three cars (depending on the vehicle type). It is situated on a south-facing road in a low-rise exclusive residential zone.

The location offers excellent daily convenience. A supermarket (Marukyo Atago store) is within a 10-minute walk, as are Toyohama Park (approx. 3 minutes), Fukuoka City Atago Elementary School (approx. 7 minutes), and Fukuoka City Nekohama Junior High School (approx. 9 minutes). Access to public transport is via a 6-minute bus ride from the Subway Airport Line's Muromi Station to the Atago Community Center stop, followed by a 7-minute walk.

Special Agent Notes: The agent is holding pre-booked viewing sessions. As staff are not permanently stationed on-site, interested parties must contact the agent in advance to arrange a suitable date and time for a viewing, which can also be scheduled on weekdays. The company's sales staff will provide explanations of the property. The agent, Mr. Muneno, warmly awaits inquiries. The property address is 1-15-6 Toyohama, Nishi Ward, Fukuoka City. Please note again that staff are not stationed on-site; prior inquiry is required for viewings.

This description was AI-generated from the original Japanese listing and may contain inaccuracies. Please verify details with the source listing.

Summary

Bedrooms: 6
Parking: 3
Year built: 2010
Land size: 248 / 2,671sqft
House size: 187 / 2,013sqft

Short-Term Rental (Minpaku)

Transport

FUK

Fukuoka Airport — 10 km away

Nearby Konbini

Mini Stop Mini Stop — 4 min walk
Family Mart Family Mart — 11 min walk
Seven Eleven Seven Eleven — 12 min walk
Lawson Lawson — 12 min walk

Internet Connectivity

Natural Hazard Assessment

Preview: Hazard data is free for your first 3 property views. Subscribe for unlimited access.

Checking hazard zones...
No hazard zones detected at this location
View official MLIT DisaPortal map

Data: MLIT DisaPortal · Flood, landslide, tsunami & storm surge zones · USGS Earthquake Catalog

¥150,000,000

Estimates only. Actual costs vary by property, municipality, and transaction details.

Nightly Rate
Occupancy Rate
Max operating days/year
Est. booked nights/year
Gross annual revenue
Expenses breakdown
Cleaning
Platform fees (3%)
Management (20%)
Supplies
Insurance
Utilities
Total expenses
Net annual income
Monthly equivalent

Actual revenue varies by location, property quality, season, and management. Adjust sliders to model different scenarios.

Renovation Budget
Annual Rental Income

Auto-filled from Airbnb estimate

Purchase price
Renovation
Transaction costs
Total investment
Property tax
Insurance
Maintenance
Annual yield
Break-even
5-year return
10-year return
0 yr5101520+

Estimates only. Actual returns depend on rental demand, management quality, renovation scope, and market conditions. Adjust sliders to model scenarios.

1-chome Toyohama, Nishi Ward, Fukuoka City, Fukuoka Prefecture

福岡県福岡市西区豊浜1丁目

Get Started

Sign in to save properties

Map & Street View

Map loading...

Location Accuracy Notice: Although we try to make the map accurate with coordinates or address details provided, the location data is provided by the agent. This map data should be used as reference for the surrounding area foremost.

Location Type Beds Price Land House View

* Sold properties shown for price comparison only. Prices reflect historical sale data.

Location Type Beds Rent/Month Land House View

* Rental prices shown are monthly rates. Contact property owner for current availability.