Back to results 【No.624】Renovated and convenient location

Verified Listing

This property was checked recently and confirmed to still be available. Tap for details.

Verified Listing

This property has been verified in the last month. Our system regularly checks listings to ensure they are still available.

Last verified: April 26, 2026

Know someone who would love this? Gift them a subscription

Contact Agent

Celebratory Town, Tochigi City, Prefecture

栃木県栃木市祝町

Sign in to save properties

Work with our partners to help you search, evaluate, and purchase property in Japan.

Book a Consultation
Buy Land Renovated

【No.624】Renovated and convenient location

Summary

Year built: 1966
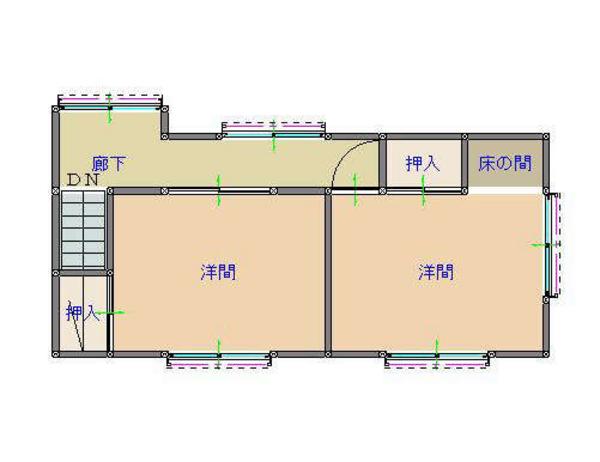
Land size: 440 / 4,735sqft
House size: 88 / 945sqft

Short-Term Rental (Minpaku)

Transport

NRT

Narita International Airport — 90 km away

Nearest Konbini

seven_eleven Seven Eleven — 2 min walk

Internet Connectivity

Natural Hazard Assessment

Flood Risk Low Risk
Landslide Risk Moderate
Tsunami Risk Low Risk
Earthquake Hazard Moderate

Unlock hazard data with a free trial

Flood, landslide, tsunami & earthquake risk for this property

3 days free · cancel anytime

Start Free Trial

Purchase Cost & Tax Estimates

Agent fees, acquisition tax, registration costs & annual property tax

Map & Street View

Map loading...

Location Accuracy Notice: Although we try to make the map accurate with coordinates or address details provided, the location data is provided by the agent. This map data should be used as reference for the surrounding area foremost.

Location Type Beds Price Land House View

* Sold properties shown for price comparison only. Prices reflect historical sale data.

Location Type Beds Rent/Month Land House View

* Rental prices shown are monthly rates. Contact property owner for current availability.