Back to results 4LDK Detached House for Sale in Moka, Tochigi with Garden
New Today
¥16,000,000

Sakura 3-chome, Moka City, Tochigi Prefecture

栃木県真岡市さくら3丁目

Buy Move-in Ready Garden House Large Garden Parking Suburban Quiet Area

Know someone who would love this? Gift them a subscription

This property has more to show

Earthquake & flood hazard assessment
Purchase cost & tax estimates
Full AI-translated description

Trusted by property buyers worldwide

Start 3-Day Free Trial

$5/month after trial · Cancel anytime

Detached House in Moka, Tochigi with Spacious Garden and Parking

This detached house, built in December 2005, is located in a quiet residential area of Moka City, Tochigi Prefecture. The property is within an 18-minute walk from the Moka Railway's Kugeta Station, providing convenient train access.

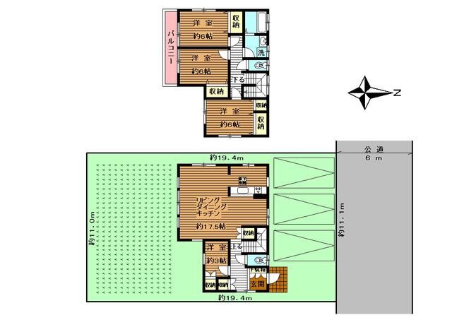
The property features a land area of 216.04 sqm (approximately 65.35 tsubo) and a total building area of 102.68 sqm (approximately 31.06 tsubo). The layout is a 4LDK, comprising four Western-style rooms measuring 6, 6, 6, and 3 tatami mats respectively, along with a 17.5-tatami mat living, dining, and kitchen area. The house is a two-story wooden structure.

Key facilities and equipment include a municipal water supply, sewer system, a bath with a re-heating function, an automatic bath system, a counter kitchen, a garden, and underfloor storage. The property is situated on a flat, regularly shaped plot of land. Road access is from the north side via a 6-meter wide public road, with a frontage of 11.1 meters. Setback requirements have already been met.

Special notes highlight the quiet residential neighborhood and the provision of free parking for three vehicles. The south side of the property features a spacious artificial turf garden. The interior of the house is noted to be clean and well-maintained. The sale is conducted under an exclusive dedicated agency agreement, and the seller disclaims liability for non-conformities in the contract.

This description was AI-generated from the original Japanese listing and may contain inaccuracies. Please verify details with the source listing.

Summary

Bedrooms: 4
Parking: 3
Year built: 2005
Land size: 216 / 2,325sqft
House size: 103 / 1,105sqft

Short-Term Rental (Minpaku)

Transport

NRT

Narita International Airport — 78 km away

Nearby Konbini

Family Mart Family Mart — 8 min walk
Seven Eleven Seven Eleven — 13 min walk

Internet Connectivity

Natural Hazard Assessment

Hazard data is a subscriber feature

Know the flood, landslide & tsunami risks before you buy

View Plans
¥16,000,000
Purchase Cost & Tax Estimates
Subscribe
Agent fee (3% + tax)¥000,000
Acquisition tax¥000,000
Registration & stamp¥000,000
Property tax (annual)¥00,000/yr
Subscribe to view cost & tax estimates →
Nightly Rate
Occupancy Rate
Max operating days/year
Est. booked nights/year
Gross annual revenue
Expenses breakdown
Cleaning
Platform fees (3%)
Management (20%)
Supplies
Insurance
Utilities
Total expenses
Net annual income
Monthly equivalent

Actual revenue varies by location, property quality, season, and management. Adjust sliders to model different scenarios.

Renovation Budget
Annual Rental Income

Auto-filled from Airbnb estimate

Purchase price
Renovation
Transaction costs
Total investment
Property tax
Insurance
Maintenance
Annual yield
Break-even
5-year return
10-year return
0 yr5101520+

Estimates only. Actual returns depend on rental demand, management quality, renovation scope, and market conditions. Adjust sliders to model scenarios.

Sakura 3-chome, Moka City, Tochigi Prefecture

栃木県真岡市さくら3丁目

Get Started

Sign in to save properties

Map & Street View

Map loading...

Location Accuracy Notice: Although we try to make the map accurate with coordinates or address details provided, the location data is provided by the agent. This map data should be used as reference for the surrounding area foremost.

Location Type Beds Price Land House View

* Sold properties shown for price comparison only. Prices reflect historical sale data.

Location Type Beds Rent/Month Land House View

* Rental prices shown are monthly rates. Contact property owner for current availability.