Back to results New 2025 4LDK House in Iwaki, Fukushima with 2-Car Parking

Needs Verification

This listing hasn't been verified recently. Tap to request a priority check!

Know someone who would love this? Gift them a subscription

¥30,800,000

Shimokawa, Izumicho, Iwaki City, Fukushima Prefecture

福島県いわき市泉町下川字谷地川

Sign in to save properties

Work with our partners to help you search, evaluate, and purchase property in Japan.

Book a Consultation
Buy House Septic System Beach Access

Unlock the full description with a free trial

Includes AI translation, hazard data, cost estimates & nearby amenities

3 days free · cancel anytime

Start Free Trial

A Modern Wooden Home in Iwaki, Fukushima

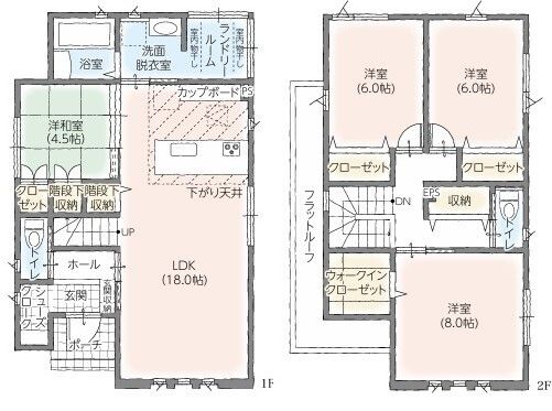
This newly built detached house, completed in March 2025, offers a spacious and well-equipped living environment in Iwaki City, Fukushima Prefecture. The property sits on a generous 172.55 sqm plot of land and features a total floor area of 110.96 sqm arranged in a comfortable 4LDK layout across two stories. The home is situated in a Quasi-Industrial Zone within a City Planning Area, ensuring a stable and regulated environment.

The property is exceptionally well-appointed. Key equipment and facilities include a septic tank, an IH cooking heater, hot water supply, two toilets with warm-water washing bidet seats, a bathroom dryer, a reheat function for the bath, a counter kitchen, a dishwasher/dryer, underfloor storage, a walk-in closet, ample storage space, and an intercom with a TV monitor. Special notes highlight the home's excellent sunlight exposure and parking space for two vehicles.

Iwaki City is a vibrant coastal municipality known for its beautiful beaches, such as Yotsukura Beach, and the iconic Spa Resort Hawaiians, a large-scale hot spring and Polynesian-themed leisure complex that is a major regional attraction. The area offers a unique blend of natural scenery and local culture, making it an appealing place to establish a home.

This description was AI-generated from the original Japanese listing and may contain inaccuracies. Please verify details with the source listing.

Summary

Bedrooms: 4
Parking: 2
Year built: 2025
Land size: 173 / 1,857sqft
House size: 111 / 1,194sqft

Short-Term Rental (Minpaku)

Transport

NRT

Narita International Airport — 137 km away

Nearby Konbini

Seven Eleven Seven Eleven — 7 min walk

Internet Connectivity

Natural Hazard Assessment

Flood Risk Low Risk
Landslide Risk Moderate
Tsunami Risk Low Risk
Earthquake Hazard Moderate

Unlock hazard data with a free trial

Flood, landslide, tsunami & earthquake risk for this property

3 days free · cancel anytime

Start Free Trial

Purchase Cost & Tax Estimates

Agent fees, acquisition tax, registration costs & annual property tax

Airbnb Revenue Estimate

Projected nightly rate, occupancy & net income for this property

Investment ROI

Annual yield, break-even timeline & 10-year return projection

Map & Street View

Map loading...

Location Accuracy Notice: Although we try to make the map accurate with coordinates or address details provided, the location data is provided by the agent. This map data should be used as reference for the surrounding area foremost.

Location Type Beds Price Land House View

* Sold properties shown for price comparison only. Prices reflect historical sale data.

Location Type Beds Rent/Month Land House View

* Rental prices shown are monthly rates. Contact property owner for current availability.