Back to results 4LDK House for Sale in Shiraoka, Saitama - 95.63 sqm

Needs Verification

This listing hasn't been verified recently. Tap to request a priority check!

Know someone who would love this? Gift them a subscription

¥18,500,000

Nishi 3-chome, Shiraoka City, Saitama Prefecture

埼玉県白岡市西3丁目

Sign in to save properties

Work with our partners to help you search, evaluate, and purchase property in Japan.

Book a Consultation
Buy Move-in Ready Garden Near Station House Parking Suburban Near Shopping Quiet Area

Unlock the full description with a free trial

Includes AI translation, hazard data, cost estimates & nearby amenities

3 days free · cancel anytime

Start Free Trial

Spacious 4LDK Family Home in Shiraoka City, Saitama

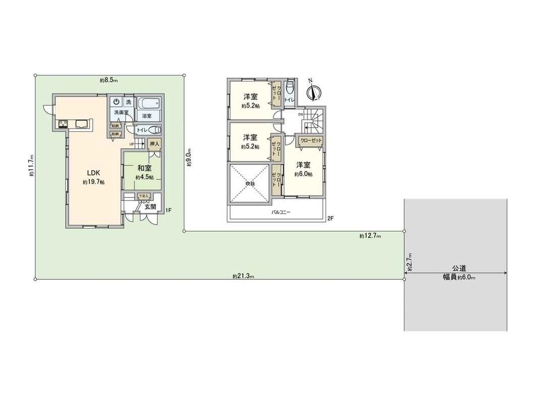
This well-presented two-story wooden house, built in March 2009, offers a comfortable and spacious living environment in the quiet residential area of Shiraoka City, Saitama Prefecture. The property features a generous 4LDK layout with a total floor area of 95.63 sqm (approximately 28.92 tsubo) on a land plot of 134.62 sqm (approximately 40.72 tsubo). The living, dining, and kitchen area is a highlight, offering a spacious approximately 19.7-jo (tatami mat) area with a high ceiling and a loft space above, creating an open and relaxing atmosphere. The home also includes a Japanese-style room of about 4.5 jo. All rooms are equipped with storage space, and the south-facing balcony adds to the appeal.

Key features include a car parking space (subject to vehicle type) and the benefit of a wide 6-meter front road, which enhances the sense of openness. The property is conveniently located within a 10-minute walk of supermarkets, convenience stores, and drugstores, making daily shopping easy. The nearest station, Shiraoka Station on the JR Tohoku Main Line, is approximately a 20-minute walk away.

Critical information from the agent's notes: The property is located in a designated Article 22 area. Furthermore, while city gas piping is available in the front road, it has not been connected to the premises. A separate cost will be required for connection at the time of installation.

The surrounding area of Shiraoka offers a blend of suburban tranquility and accessibility. An interesting local fact is that the city is known for its production of 'Shiraoka Melons,' a prized and sweet variety of musk melon. For a major tourist attraction, residents can enjoy day trips to the historic city of Kawagoe, often called "Little Edo" for its beautifully preserved old merchant houses and iconic bell tower, located within Saitama Prefecture.

This description was AI-generated from the original Japanese listing and may contain inaccuracies. Please verify details with the source listing.

Summary

Bedrooms: 4
Parking: 1
Year built: 2009
Land size: 135 / 1,449sqft
House size: 96 / 1,029sqft

Short-Term Rental (Minpaku)

Transport

HND

Haneda Airport — 53 km away

Nearby Konbini

Seven Eleven Seven Eleven — 2 min walk

Internet Connectivity

Natural Hazard Assessment

Flood Risk Low Risk
Landslide Risk Moderate
Tsunami Risk Low Risk
Earthquake Hazard Moderate

Unlock hazard data with a free trial

Flood, landslide, tsunami & earthquake risk for this property

3 days free · cancel anytime

Start Free Trial

Purchase Cost & Tax Estimates

Agent fees, acquisition tax, registration costs & annual property tax

Airbnb Revenue Estimate

Projected nightly rate, occupancy & net income for this property

Investment ROI

Annual yield, break-even timeline & 10-year return projection

Map & Street View

Map loading...

Location Accuracy Notice: Although we try to make the map accurate with coordinates or address details provided, the location data is provided by the agent. This map data should be used as reference for the surrounding area foremost.

Location Type Beds Price Land House View

* Sold properties shown for price comparison only. Prices reflect historical sale data.

Location Type Beds Rent/Month Land House View

* Rental prices shown are monthly rates. Contact property owner for current availability.