Back to results 6DK Detached House for Sale in Manno, Kagawa - Large Corner Lot

Needs Verification

This listing hasn't been verified recently. Tap to request a priority check!

¥5,800,000

1587-1 Yoshino, Manno Town, Nakatado District, Kagawa Prefecture

香川県仲多度郡まんのう町吉野1587-1

Buy House Akiya Bank Corner Lot Large Garden Parking Rural Quiet Area

Know someone who would love this? Gift them a subscription

This property has more to show

Earthquake & flood hazard assessment
Purchase cost & tax estimates
Full AI-translated description

Trusted by property buyers worldwide

Start 3-Day Free Trial

$5/month after trial · Cancel anytime

Spacious 6DK Family Home in a Quiet Residential Area of Manno, Kagawa

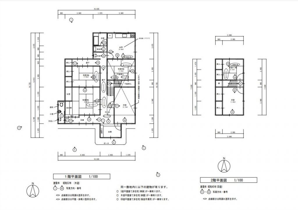
This substantial property, registered as "Yoshino (Registration No. 50)", is a detached house for sale located in a quiet, south-facing residential neighborhood in Manno Town, Kagawa Prefecture. Built in January 1977, the 49-year-old wooden structure offers a generous total floor area of 151.14 square meters across two storeys, set on a large corner plot of land measuring 757.56 square meters.

The layout is a spacious 6DK, providing six rooms plus a dining-kitchen area, making it ideal for a large family or even multi-generational living. The property includes parking for two or more vehicles. Key equipment and features include city gas, a system kitchen, two toilets (one with a re-heating function for the bath), and a monitor-equipped intercom. The agent's special notes direct interested parties to find further details at: https://www.town.manno.lg.jp/akiya/4805.html.

The property is situated in the Yoshino district, approximately a 14-minute walk from the Hachiman bus stop. The current status is vacant, and the handover date is negotiable. The sale price is set at 5.8 million yen.

Manno Town in Kagawa Prefecture is known for its serene rural landscapes and traditional charm. An interesting local fact is that the town is home to the famous Manno Pond (Manno-ike), which is one of Japan's oldest and largest irrigation reservoirs, originally constructed over 1,200 years ago. The area offers a peaceful lifestyle while being within reasonable reach of major attractions like the historic Ritsurin Garden in Takamatsu, a celebrated strolling garden designated as a Special Place of Scenic Beauty.

This description was AI-generated from the original Japanese listing and may contain inaccuracies. Please verify details with the source listing.

Summary

Bedrooms: 6
Parking: 2
Year built: 1977
Land size: 758 / 8,154sqft
House size: 151 / 1,627sqft

Short-Term Rental (Minpaku)

Transport

KIX

Kansai International Airport — 130 km away

Nearby Konbini

Lawson Lawson — 36 min walk

Internet Connectivity

Natural Hazard Assessment

Hazard data is a subscriber feature

Know the flood, landslide & tsunami risks before you buy

View Plans
¥5,800,000
Purchase Cost & Tax Estimates
Subscribe
Agent fee (3% + tax)¥000,000
Acquisition tax¥000,000
Registration & stamp¥000,000
Property tax (annual)¥00,000/yr
Subscribe to view cost & tax estimates →
Nightly Rate
Occupancy Rate
Max operating days/year
Est. booked nights/year
Gross annual revenue
Expenses breakdown
Cleaning
Platform fees (3%)
Management (20%)
Supplies
Insurance
Utilities
Total expenses
Net annual income
Monthly equivalent

Actual revenue varies by location, property quality, season, and management. Adjust sliders to model different scenarios.

Renovation Budget
Annual Rental Income

Auto-filled from Airbnb estimate

Purchase price
Renovation
Transaction costs
Total investment
Property tax
Insurance
Maintenance
Annual yield
Break-even
5-year return
10-year return
0 yr5101520+

Estimates only. Actual returns depend on rental demand, management quality, renovation scope, and market conditions. Adjust sliders to model scenarios.

1587-1 Yoshino, Manno Town, Nakatado District, Kagawa Prefecture

香川県仲多度郡まんのう町吉野1587-1

Get Started

Sign in to save properties

Map & Street View

Map loading...

Location Accuracy Notice: Although we try to make the map accurate with coordinates or address details provided, the location data is provided by the agent. This map data should be used as reference for the surrounding area foremost.

Location Type Beds Price Land House View

* Sold properties shown for price comparison only. Prices reflect historical sale data.

Location Type Beds Rent/Month Land House View

* Rental prices shown are monthly rates. Contact property owner for current availability.