Back to results Modern 3SLDK Wooden House for Sale in Kishiwada, Osaka

Needs Verification

This listing hasn't been verified recently. Tap to request a priority check!

Modern 3SLDK Wooden House for Sale in Kishiwada, Osaka

Know someone who would love this? Gift them a subscription

¥20,000,000

Oinomachi, Kishiwada, Osaka Prefecture

大阪府岸和田市尾生町

Sign in to save properties

Work with our partners to help you search, evaluate, and purchase property in Japan.

Book a Consultation
Buy House Akiya Bank Modern House Parking Quiet Area

Unlock the full description with a free trial

Includes AI translation, hazard data, cost estimates & nearby amenities

3 days free · cancel anytime

Start Free Trial

Spacious Modern Wooden House in Kishiwada, Osaka

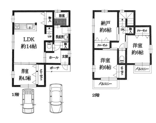
This property is a detached house for sale located in Kishiwada City, Osaka Prefecture. The house was built in September 2015, making it a relatively modern construction. It features a wooden structure and stands on two stories above ground. The total floor area is a generous 94.39 square meters (approximately 28.55 tsubo), arranged in a 3SLDK layout, providing three bedrooms, a living room, dining room, and kitchen. The land area is 101.45 square meters (approx. 30.68 tsubo) with a building-to-land ratio of 60% and a floor area ratio of 200%. The land is flat and classified as residential land within a City Planning Area (Urbanization Promotion Area) and a Category I Medium-to-High-Rise Exclusive Residential Zone. The property has ownership rights.

According to agent notes, the current status is vacant (akiya). The handover timing is negotiable. The property includes a parking space. The road frontage is to the east, with a width of 5 meters on a public road, and there is a setback. There are no legal restrictions on rebuilding. The transaction form is general intermediary. Important notes specify that inquiries about the property must be made directly to the real estate company listed as the 'Information Provider Company' on the property details page. Furthermore, floor plans prioritize the actual current condition of the property.

The area of Kishiwada is famous for its vibrant Danjiri Festival, a thrilling event where large, ornate wooden floats are pulled through the streets at high speeds. For a major tourist attraction, the historic Kishiwada Castle, with its impressive stone walls and keep, is a must-visit landmark in the city, offering a glimpse into the region's samurai past.

This description was AI-generated from the original Japanese listing and may contain inaccuracies. Please verify details with the source listing.

Summary

Bedrooms: 3
Parking: 1
Year built: 2015
Land size: 101 / 1,092sqft
House size: 94 / 1,016sqft

Short-Term Rental (Minpaku)

Transport

KIX

Kansai International Airport — 16 km away

Nearby Konbini

Lawson Lawson — 4 min walk

Internet Connectivity

Natural Hazard Assessment

Flood Risk Low Risk
Landslide Risk Moderate
Tsunami Risk Low Risk
Earthquake Hazard Moderate

Unlock hazard data with a free trial

Flood, landslide, tsunami & earthquake risk for this property

3 days free · cancel anytime

Start Free Trial

Purchase Cost & Tax Estimates

Agent fees, acquisition tax, registration costs & annual property tax

Airbnb Revenue Estimate

Projected nightly rate, occupancy & net income for this property

Investment ROI

Annual yield, break-even timeline & 10-year return projection

Map & Street View

Map loading...

Location Accuracy Notice: Although we try to make the map accurate with coordinates or address details provided, the location data is provided by the agent. This map data should be used as reference for the surrounding area foremost.

Location Type Beds Price Land House View

* Sold properties shown for price comparison only. Prices reflect historical sale data.

Location Type Beds Rent/Month Land House View

* Rental prices shown are monthly rates. Contact property owner for current availability.