Back to results New 3LDK House in Mita, Minato-ku, Tokyo
Added 3 days ago

Know someone who would love this? Gift them a subscription

¥338,000,000

東京都港区三田5丁目

東京都港区三田5丁目

Sign in to save properties

Work with our partners to help you search, evaluate, and purchase property in Japan.

Book a Consultation
Buy Near Station House New Build Parking City Center Disneyland Stadium Aquarium

Unlock the full description with a free trial

Includes AI translation, hazard data, cost estimates & nearby amenities

3 days free · cancel anytime

Start Free Trial

Newly Built 3LDK Home in Mita, Minato-ku

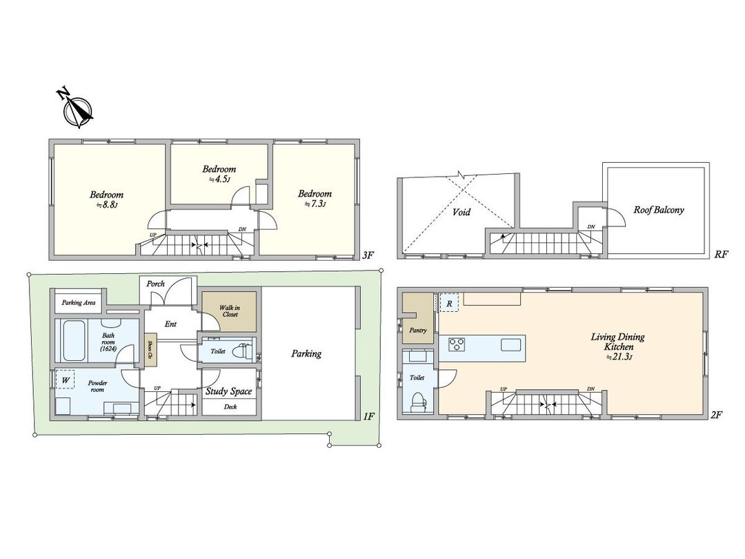
This is a newly constructed detached house located in Mita 5-chome, Minato-ku, Tokyo. The property offers a 3LDK layout with a total floor area of 127.72 square meters on a land area of 64.58 square meters. The building is a three-story wooden structure, scheduled for completion in September 2026.

The property features a spacious LDK of over 20 jo, a study, a walk-in closet (WIC), and a roof balcony. The kitchen is equipped with a pantry, and the unit bathroom is a 1624 size model (LIXIL Sparge). A parking space is available (subject to vehicle size). The property is within a 7-minute walk from Shirokane-Takanawa Station on the Tokyo Metro Namboku Line and Toei Mita Line, and a 15-minute walk from Azabu-Juban Station on the Namboku and Oedo Lines.

This description was AI-generated from the original Japanese listing and may contain inaccuracies. Please verify details with the source listing.

Summary

Bedrooms: 3
Parking: 1
Year built: 2026
Land size: 65 / 695sqft
House size: 128 / 1,375sqft

Short-Term Rental (Minpaku)

Transport

HND

Haneda Airport — 11 km away

Nearby Konbini

Lawson Lawson — 2 min walk

Internet Connectivity

Natural Hazard Assessment

Flood Risk Low Risk
Landslide Risk Moderate
Tsunami Risk Low Risk
Earthquake Hazard Moderate

Unlock hazard data with a free trial

Flood, landslide, tsunami & earthquake risk for this property

3 days free · cancel anytime

Start Free Trial

Purchase Cost & Tax Estimates

Agent fees, acquisition tax, registration costs & annual property tax

Airbnb Revenue Estimate

Projected nightly rate, occupancy & net income for this property

Investment ROI

Annual yield, break-even timeline & 10-year return projection

Map & Street View

Map loading...

Location Accuracy Notice: Although we try to make the map accurate with coordinates or address details provided, the location data is provided by the agent. This map data should be used as reference for the surrounding area foremost.

Location Type Beds Price Land House View

* Sold properties shown for price comparison only. Prices reflect historical sale data.

Location Type Beds Rent/Month Land House View

* Rental prices shown are monthly rates. Contact property owner for current availability.