Back to results Residential Land for Sale in Hirosaki, Aomori
New Today
¥9,750,000

Hirosaki City, Aomori Prefecture

青森県弘前市大字田茂木町

Buy Land Suburban Quiet Area

Know someone who would love this? Gift them a subscription

This property has more to show

Earthquake & flood hazard assessment
Purchase cost & tax estimates
Full AI-translated description

Trusted by property buyers worldwide

Start 3-Day Free Trial

$5/month after trial · Cancel anytime

Land for Sale in Hirosaki, Aomori Prefecture

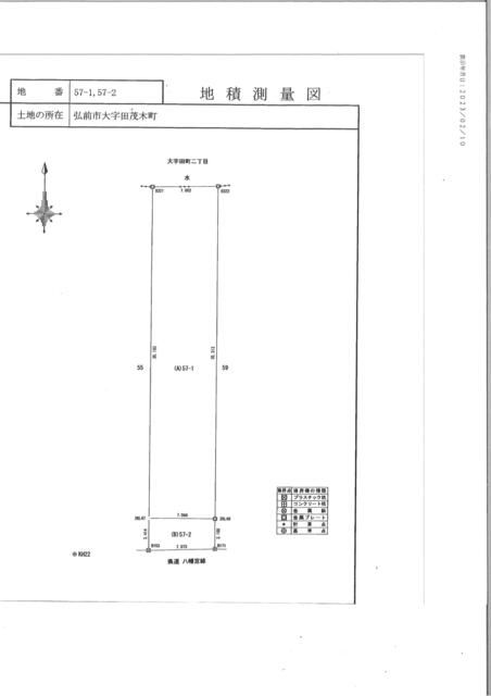
This residential plot of land is located in Hirosaki City, Aomori Prefecture. The property is a vacant lot, ready for immediate construction and handover. The land area is 247.91 square meters (approximately 74.99 tsubo). It is situated in a designated urbanization area under the city planning act, zoned as a Category I Exclusive Residential District. The building coverage ratio is 60% and the floor area ratio is 200%.

The property fronts a single road to the south. The road is a public road with a width of 8 meters, and the property's frontage along this road is 7 meters. The land is flat with no slope. The only facility mentioned is a connection to the public water supply system. A special note indicates the property is alongside a planned road development project.

In terms of location, the nearest train station is Chuo-Hirosaki Station on the Konan Railway Ōwani Line, approximately a 22-minute walk away. The Hirosaki City Tokimin Elementary School is 875 meters away, and Hirosaki City Daiichi Junior High School is 504 meters away.

This description was AI-generated from the original Japanese listing and may contain inaccuracies. Please verify details with the source listing.

Summary

Land size: 248 / 2,669sqft

Short-Term Rental (Minpaku)

Transport

CTS

New Chitose Airport — 261 km away

Nearest Konbini

circle_k Circle K — 8 min walk

Internet Connectivity

Natural Hazard Assessment

Hazard data is a subscriber feature

Know the flood, landslide & tsunami risks before you buy

View Plans
¥9,750,000
Purchase Cost & Tax Estimates
Subscribe
Agent fee (3% + tax)¥000,000
Acquisition tax¥000,000
Registration & stamp¥000,000
Property tax (annual)¥00,000/yr
Subscribe to view cost & tax estimates →
Nightly Rate
Occupancy Rate
Max operating days/year
Est. booked nights/year
Gross annual revenue
Expenses breakdown
Cleaning
Platform fees (3%)
Management (20%)
Supplies
Insurance
Utilities
Total expenses
Net annual income
Monthly equivalent

Actual revenue varies by location, property quality, season, and management. Adjust sliders to model different scenarios.

Renovation Budget
Annual Rental Income

Auto-filled from Airbnb estimate

Purchase price
Renovation
Transaction costs
Total investment
Property tax
Insurance
Maintenance
Annual yield
Break-even
5-year return
10-year return
0 yr5101520+

Estimates only. Actual returns depend on rental demand, management quality, renovation scope, and market conditions. Adjust sliders to model scenarios.

Hirosaki City, Aomori Prefecture

青森県弘前市大字田茂木町

Get Started

Sign in to save properties

Map & Street View

Map loading...

Location Accuracy Notice: Although we try to make the map accurate with coordinates or address details provided, the location data is provided by the agent. This map data should be used as reference for the surrounding area foremost.

Location Type Beds Price Land House View

* Sold properties shown for price comparison only. Prices reflect historical sale data.

Location Type Beds Rent/Month Land House View

* Rental prices shown are monthly rates. Contact property owner for current availability.