Back to results 3LDK Detached House for Sale in Kameoka, Kyoto

Verified Listing

This property was checked recently and confirmed to still be available. Tap for details.

Verified Listing

This property has been verified in the last month. Our system regularly checks listings to ensure they are still available.

Last verified: April 8, 2026

Know someone who would love this? Gift them a subscription

¥24,800,000

Chiyokawa Town Kobayashi Maeda, Kameoka City, Kyoto Prefecture

京都府亀岡市千代川町小林前田

Sign in to save properties

Work with our partners to help you search, evaluate, and purchase property in Japan.

Book a Consultation
Buy House Parking Suburban Quiet Area

Unlock the full description with a free trial

Includes AI translation, hazard data, cost estimates & nearby amenities

3 days free · cancel anytime

Start Free Trial

Detached House in Kameoka, Kyoto with Two-Car Parking

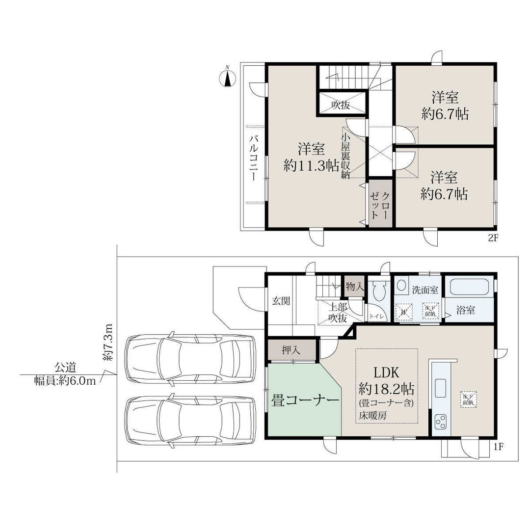
This detached house is located in Kameoka City, Kyoto Prefecture, offering a comfortable 3LDK layout with a total floor area of 96.92 square meters. The property is situated on a flat plot of land with a land size of 101.92 square meters. Built in February 2004, the house is 23 years old and features a lightweight steel frame construction with two storeys.

The property includes a two-car parking space at no extra cost. Key interior features, as seen in the provided photos, include a system kitchen equipped with a dishwasher/dryer and a unit bath. The entrance area features a double-height ceiling (吹抜け). The front road is a public road over 6 meters wide.

According to the agent's special notes, the property is currently occupied. The notes state: "居住中実際に見てみたい無料ご希望のお日にちなど、お気軽にお問合せください," which translates to: "The property is currently occupied. If you wish to see it in person, please feel free to contact us with your preferred date for a free viewing."

For transportation, JR Sanin Main Line Narikawa Station is approximately a 15-minute walk away, and JR Sanin Main Line Chiyokawa Station is about a 20-minute walk. The property is located in the Chiyokawa Town Kobayashi area of Kameoka City.

This description was AI-generated from the original Japanese listing and may contain inaccuracies. Please verify details with the source listing.

Summary

Bedrooms: 3
Parking: 2
Year built: 2004
Land size: 102 / 1,097sqft
House size: 97 / 1,043sqft

Short-Term Rental (Minpaku)

Transport

ITM

Osaka International Airport — 30 km away

Nearest Konbini

mini_stop Mini Stop — 2 min walk

Internet Connectivity

Natural Hazard Assessment

Flood Risk Low Risk
Landslide Risk Moderate
Tsunami Risk Low Risk
Earthquake Hazard Moderate

Unlock hazard data with a free trial

Flood, landslide, tsunami & earthquake risk for this property

3 days free · cancel anytime

Start Free Trial

Purchase Cost & Tax Estimates

Agent fees, acquisition tax, registration costs & annual property tax

Airbnb Revenue Estimate

Projected nightly rate, occupancy & net income for this property

Investment ROI

Annual yield, break-even timeline & 10-year return projection

Map & Street View

Map loading...

Location Accuracy Notice: Although we try to make the map accurate with coordinates or address details provided, the location data is provided by the agent. This map data should be used as reference for the surrounding area foremost.

Location Type Beds Price Land House View

* Sold properties shown for price comparison only. Prices reflect historical sale data.

Location Type Beds Rent/Month Land House View

* Rental prices shown are monthly rates. Contact property owner for current availability.