Back to results New 4LDK House in Akita City with 3 Parking Spaces

Needs Verification

This listing hasn't been verified recently. Tap to request a priority check!

Know someone who would love this? Gift them a subscription

¥20,500,000

Yokomori 2-chome, Akita City, Akita Prefecture

秋田県秋田市横森2丁目

Sign in to save properties

Work with our partners to help you search, evaluate, and purchase property in Japan.

Book a Consultation
Buy House Bamboo Grove Quiet Area

Unlock the full description with a free trial

Includes AI translation, hazard data, cost estimates & nearby amenities

3 days free · cancel anytime

Start Free Trial

A Modern New Build in the Quiet Neighborhoods of Akita City

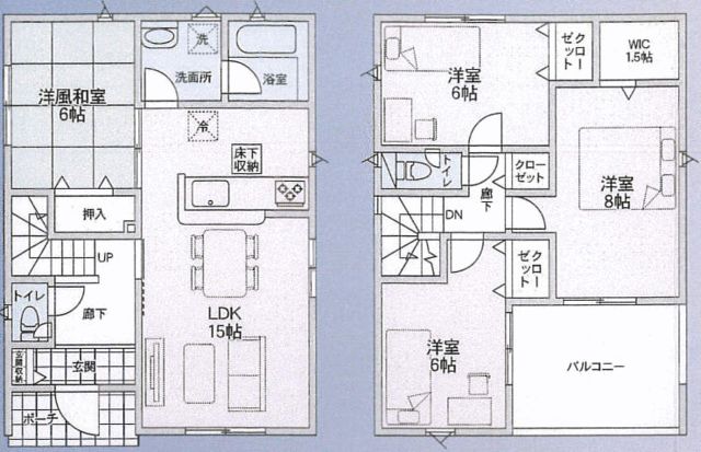
This newly constructed detached house, scheduled for completion in September 2025, offers a spacious and well-equipped living environment in Akita City. The property features a generous land area of 148.14 sqm and a total floor area of 105.29 sqm, arranged over two stories. The layout is a comfortable 4LDK, providing ample room for family life.

The home comes with a comprehensive list of facilities. These include city gas, water supply, and sewer systems. For comfort and convenience, it is equipped with air conditioning, two toilets with warm-water washlet functions, a bathroom dryer, a reheating function for the bath, and a shampoo dresser. The kitchen is a modern system kitchen with a counter design. Additional features include a roof balcony, underfloor storage, and an intercom with a TV monitor.

Special notes detail the property's access and surroundings. It faces south onto a 4-meter wide public road, with a frontage of 8.9 meters. The area is described as a quiet residential neighborhood, and the property includes parking space for three vehicles.

The area of Akita City is rich in history and culture, famously known for the Akita Kanto Festival, a spectacular event where performers balance long bamboo poles adorned with lanterns. A major landmark nearby is the historic Senshu Park, built on the ruins of Kubota Castle, offering beautiful seasonal scenery and a glimpse into the region's samurai past.

This description was AI-generated from the original Japanese listing and may contain inaccuracies. Please verify details with the source listing.

Summary

Bedrooms: 4
Parking: 3
Year built: 2025
Land size: 148 / 1,595sqft
House size: 105 / 1,133sqft

Short-Term Rental (Minpaku)

Transport

CTS

New Chitose Airport — 365 km away

Nearby Konbini

Family Mart Family Mart — 11 min walk

Internet Connectivity

Natural Hazard Assessment

Flood Risk Low Risk
Landslide Risk Moderate
Tsunami Risk Low Risk
Earthquake Hazard Moderate

Unlock hazard data with a free trial

Flood, landslide, tsunami & earthquake risk for this property

3 days free · cancel anytime

Start Free Trial

Purchase Cost & Tax Estimates

Agent fees, acquisition tax, registration costs & annual property tax

Airbnb Revenue Estimate

Projected nightly rate, occupancy & net income for this property

Investment ROI

Annual yield, break-even timeline & 10-year return projection

Map & Street View

Map loading...

Location Accuracy Notice: Although we try to make the map accurate with coordinates or address details provided, the location data is provided by the agent. This map data should be used as reference for the surrounding area foremost.

Location Type Beds Price Land House View

* Sold properties shown for price comparison only. Prices reflect historical sale data.

Location Type Beds Rent/Month Land House View

* Rental prices shown are monthly rates. Contact property owner for current availability.