Back to results 68 Tsubo Residential Land for Sale in Shibata, Niigata

Needs Verification

This listing hasn't been verified recently. Tap to request a priority check!

Know someone who would love this? Gift them a subscription

¥5,800,000

5 Chome Central Town, Shibata City, Niigata Prefecture

新潟県新発田市中央町5丁目

Sign in to save properties

Work with our partners to help you search, evaluate, and purchase property in Japan.

Book a Consultation
Buy Land Suburban Quiet Area Castle Town

Unlock the full description with a free trial

Includes AI translation, hazard data, cost estimates & nearby amenities

3 days free · cancel anytime

Start Free Trial

Prime Residential Land in Shibata City, Niigata

This 225.29㎡ (approximately 68.15 tsubo) plot of land is located in the central district of Shibata City, Niigata Prefecture. The property is situated in a flat, residential area designated as Category I Residential Zone, offering a peaceful living environment with a building-to-land ratio of 60% and a floor area ratio of 200%. The land is currently vacant and ready for construction.

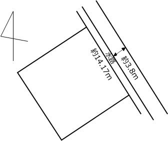
Critical agent notes provide essential information for potential buyers. The property's current status is vacant land, and interested parties are encouraged to contact the agent to arrange a viewing at their preferred date. Importantly, the agent's remarks detail specific legal and procedural requirements: The property is subject to the Landscape Act and is located in a quasi-fire prevention district. Crucially, it does not fulfill the road frontage obligation. Therefore, permission from the specific administrative authority based on Article 43, Paragraph 2, Item 2 of the Building Standards Act is required for construction. Furthermore, consent for installing an access bridge over the adjacent waterway and permission to use public property are necessary. All costs related to these procedures and construction work will be borne by the buyer. As the land is currently not subdivided, subdivision and handover will occur after the contract is signed. Additionally, all costs for bringing water, gas, and sewer lines onto the property are the buyer's responsibility.

The location offers excellent convenience, with Shibata City Hall, Shibata Station, supermarkets, and drugstores all within a 1km radius. The area provides a balanced lifestyle, close to nature with mountains, the sea, and rivers a short drive away, while still having access to comprehensive medical facilities. An interesting local fact is that Shibata is known for its well-preserved samurai district and the historic Shibata Castle, a reconstructed three-story keep that is a popular tourist attraction and a symbol of the city's rich feudal history.

This description was AI-generated from the original Japanese listing and may contain inaccuracies. Please verify details with the source listing.

Summary

Land size: 225 / 2,425sqft

Short-Term Rental (Minpaku)

Transport

NRT

Narita International Airport — 260 km away

Nearby Konbini

Lawson Lawson — 4 min walk

Internet Connectivity

Natural Hazard Assessment

Flood Risk Low Risk
Landslide Risk Moderate
Tsunami Risk Low Risk
Earthquake Hazard Moderate

Unlock hazard data with a free trial

Flood, landslide, tsunami & earthquake risk for this property

3 days free · cancel anytime

Start Free Trial

Purchase Cost & Tax Estimates

Agent fees, acquisition tax, registration costs & annual property tax

Airbnb Revenue Estimate

Projected nightly rate, occupancy & net income for this property

Investment ROI

Annual yield, break-even timeline & 10-year return projection

Map & Street View

Map loading...

Location Accuracy Notice: Although we try to make the map accurate with coordinates or address details provided, the location data is provided by the agent. This map data should be used as reference for the surrounding area foremost.

Location Type Beds Price Land House View

* Sold properties shown for price comparison only. Prices reflect historical sale data.

Location Type Beds Rent/Month Land House View

* Rental prices shown are monthly rates. Contact property owner for current availability.